Account: M6432186
April 4, 2026
| Account | Parcel | Account Type | Tax Year | Buildings | Actual Value | Local Govt Assessed Value | School Assessed Value |
|---|---|---|---|---|---|---|---|
| M6432186 | 147331206007 | Residential | 2026 | 1 | 19,369 | 1,210 | 1,370 |
| Legal |
|---|
| LOC 4SP8-7 IMPS ONLY MH L7 BLK8 SPACIOUS LIV 4 FRONTIER |
| Subdivision | Block | Lot | Land Economic Area |
|---|---|---|---|
| Property Address | Property City | Section | Township | Range |
|---|---|---|---|---|
| 807 PLUM AVE | LOCHBUIE | 31 | 01 | 65 |
| Account | Parcel | Account Type | Tax Year | Buildings | Actual Value | Local Govt Assessed Value | School Assessed Value |
|---|---|---|---|---|---|---|---|
| M6432186 | 147331206007 | Residential | 2026 | 1 | 19,369 | 1,210 | 1,370 |
| Account | Owner Name | Address |
|---|---|---|
| M6432186 | MORTENSEN DYLAN | 3496 COUNTY ROAD 61 KEENESBURG, CO 806438613 |
| Account | Parcel | Account Type | Tax Year | Buildings | Actual Value | Local Govt Assessed Value | School Assessed Value |
|---|---|---|---|---|---|---|---|
| M6432186 | 147331206007 | Residential | 2026 | 1 | 19,369 | 1,210 | 1,370 |
| Reception | Rec Date | Type | Grantor | Grantee | Doc Fee | Sale Date | Sale Price |
|---|---|---|---|---|---|---|---|
| 4962253 | 05-24-2024 | MHTL | LACOE JENNIFER | LACOE DANIEL | 0.00 | 05-24-2024 | 1 |
| 4964544 | 06-06-2024 | MHTL | LACOE DANIEL | NEW VISION INVESTMENTS LLC | 0.00 | 06-05-2024 | 1 |
| 4970096 | 07-09-2024 | MHTL | NEW VISION INVESTMENTS LLC | MORTENSEN DYLAN | 0.00 | 06-21-2024 | 210,000 |
| 5011002 | 02-13-2025 | MHN | MORTENSEN DYLAN | MORTENSEN DYLAN | 0.00 | 06-21-2024 | 0 |
*If the hyperlink for the reception number does not work, try a manual search in the Clerk and Recorder records. Use the Grantor or Grantee in your search.
| Account | Parcel | Account Type | Tax Year | Buildings | Actual Value | Local Govt Assessed Value | School Assessed Value |
|---|---|---|---|---|---|---|---|
| M6432186 | 147331206007 | Residential | 2026 | 1 | 19,369 | 1,210 | 1,370 |
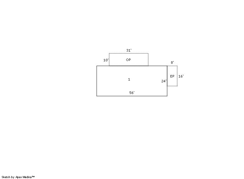
Building 1
| AccountNo | Building ID | Occupancy |
|---|---|---|
| M6432186 | 1 | Manufactured Home |
| ID | Type | NBHD | Occupancy | % Complete | Bedrooms | Baths |
|---|---|---|---|---|---|---|
| 1 | Manufactured Hm | 4L0001 | Manufactured Home | 100 | 3 | 2.00 |
| ID | Exterior | Roof Cover | Interior | HVAC | Perimeter | Units | Unit Type | Make |
|---|---|---|---|---|---|---|---|---|
| 1 | Metal Siding | Metal Ribbed | Paneling | Forced Air | NA | 0 | NA | Frontier |
| ID | Square Ft | Condo SF | Total Basement SF | Finished Basement SF | Garage SF | Carport SF | Balcony SF | Porch SF |
|---|---|---|---|---|---|---|---|---|
| 1 | 1,344 | 0 | 0 | 0 | 0 | 0 | 0 | 128 |
| ID | Built As | Square Ft | Year Built | Stories | Length | Width |
|---|---|---|---|---|---|---|
| 1.00 | Mnfctrd Home 1 Story | 1,344 | 1973 | 1 | 56 | 24 |
| ID | Detail Type | Description | Units |
|---|---|---|---|
| 1 | Add On | MH Evaporative Cooler | 1.00 |
| 1 | Fixture | Full Bath | 2.00 |
| 1 | Porch | Encl Solid Wall | 128.00 |
| 1 | Porch | Slab Roof Ceil | 310.00 |
| Account | Parcel | Account Type | Tax Year | Buildings | Actual Value | Local Govt Assessed Value | School Assessed Value |
|---|---|---|---|---|---|---|---|
| M6432186 | 147331206007 | Residential | 2026 | 1 | 19,369 | 1,210 | 1,370 |
| Type | Code | Description | Actual Value | Local Govt Assessed Value | School Assessed Value | Acres | Land SqFt |
|---|---|---|---|---|---|---|---|
| Improvement | 9290M | EXEMPT ALL OTHER RESIDENTIAL | 19,369 | 1,210 | 1,370 | 0.000 | 0 |
| Totals | - | - | 19,369 | 1,210 | 1,370 | 0.000 | 0 |
Comparable sales for your Residential or Commercial property may be found using our SALES SEARCH TOOL
Values are updated annually on May 1st for Real Property and June 15th for Personal Property and Oil and Gas.
| Account | Parcel | Account Type | Tax Year | Buildings | Actual Value | Local Govt Assessed Value | School Assessed Value |
|---|---|---|---|---|---|---|---|
| M6432186 | 147331206007 | Residential | 2026 | 1 | 19,369 | 1,210 | 1,370 |
| Tax Area | District ID | District Name | Local Govt Mill Levy |
School Mill Levy |
Estimated Taxes |
|---|---|---|---|---|---|
| 0318 | 0700 | AIMS JUNIOR COLLEGE | 6.313 | 0.000 | $7.64 |
| 0318 | 0302 | CENTRAL COLORADO WATER (CCW) | 0.980 | 0.000 | $1.19 |
| 0318 | 0309 | CENTRAL COLORADO WATER SUBDISTRICT (CCS) | 1.462 | 0.000 | $1.77 |
| 0318 | 1050 | HIGH PLAINS LIBRARY | 3.044 | 0.000 | $3.68 |
| 0318 | 0509 | HUDSON FIRE | 12.237 | 0.000 | $14.81 |
| 0318 | 0419 | LOCHBUIE TOWN | 6.443 | 0.000 | $7.80 |
| 0318 | 0203 | SCHOOL DIST RE3J-KEENESBURG | 0.000 | 15.822 | $21.68 |
| 0318 | 0100 | WELD COUNTY | 15.956 | 0.000 | $19.31 |
| Total | - | - | 46.435 | 15.822 | $77.86 |
The estimate of tax is based on the prior year mill levy and the 2025 projected assessment rates. Mill levies and tax estimates will be updated yearly on December 22nd for the current year. Additional information can be found at https://assessor.weld.gov



