Account: M8951828

April 1, 2026

Account Parcel Account Type Tax Year Buildings Actual Value Local Govt Assessed Value School Assessed Value
M8951828 147310125001 Residential 2026 1 89,505 5,590 6,310

Legal
HUD ALL BLK74 EXC HWY (SWARTS MOBILE HOME PARK)

Subdivision Block Lot Land Economic Area
HUDSON TOWN 74

Property Address Property City Section Township Range
218 GRAPE ST 8 HUDSON 10 01 65




Account Parcel Account Type Tax Year Buildings Actual Value Local Govt Assessed Value School Assessed Value
M8951828 147310125001 Residential 2026 1 89,505 5,590 6,310

Account Owner Name Address
M8951828 ALVARADO JARED MICHAEL 218 GRAPE ST SPC 8 HUDSON, CO 806422103


Account Parcel Account Type Tax Year Buildings Actual Value Local Govt Assessed Value School Assessed Value
M8951828 147310125001 Residential 2026 1 89,505 5,590 6,310

Reception Rec Date Type Grantor Grantee Doc Fee Sale Date Sale Price
4351321 11-09-2017 MHTL CMH HOMES INC HUBBARD VICTORIA 0.00 11-08-2017 68,511
4775018 11-10-2021 MHTL HUBBARD VICTORIA LONE TREE HOME SALES LLC 0.00 08-11-2021 52,000
4798877 02-01-2022 MHTL LONE TREE HOME SALES LLC ALVARADO JARED MICHAEL 0.00 12-09-2021 89,900



Account Parcel Account Type Tax Year Buildings Actual Value Local Govt Assessed Value School Assessed Value
M8951828 147310125001 Residential 2026 1 89,505 5,590 6,310

Building 1

AccountNo Building ID Occupancy
M8951828 1 Manufactured Home


ID Type NBHD Occupancy % Complete Bedrooms Baths
1 Manufactured Hm 5H0015 Manufactured Home 100 3 2.00


ID Exterior Roof Cover Interior HVAC Perimeter Units Unit Type Make
1 Hardboard Sheet Shingle Comp Drywall Forced Air 144 0 NA Clayton


ID Square Ft Condo SF Total Basement SF Finished Basement SF Garage SF Carport SF Balcony SF Porch SF
1 1,232 0 0 0 0 0 40 0


Built As Details for Building 1
ID Built As Square Ft Year Built Stories Length Width
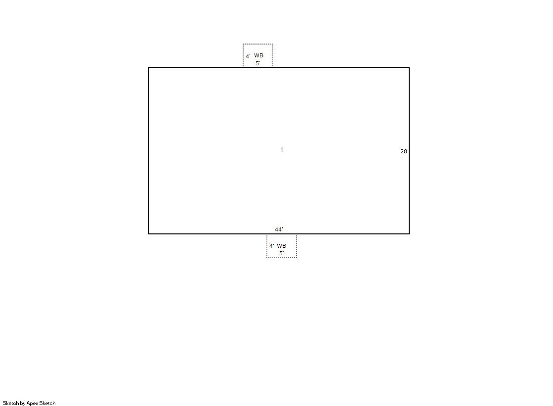
1.00 Mnfctrd Home 1 Story 1,232 2017 1 44 28


Additional Details for Building 1
ID Detail Type Description Units
1 Balcony Wood Wood Fin 40.00
1 Fixture Full Bath 2.00





Account Parcel Account Type Tax Year Buildings Actual Value Local Govt Assessed Value School Assessed Value
M8951828 147310125001 Residential 2026 1 89,505 5,590 6,310

Type Code Description Actual Value Local Govt Assessed Value School Assessed Value Acres Land SqFt
Improvement 1235 MANUFACTURED HOUSING-IMPRVMT 89,505 5,590 6,310 0.000 0
Totals - - 89,505 5,590 6,310 0.000 0


Account Parcel Account Type Tax Year Buildings Actual Value Local Govt Assessed Value School Assessed Value
M8951828 147310125001 Residential 2026 1 89,505 5,590 6,310

Tax Area District ID District Name Local Govt
Mill Levy
School
Mill Levy
Estimated
Taxes
0307 0700 AIMS JUNIOR COLLEGE 6.313 0.000 $35.29
0307 0302 CENTRAL COLORADO WATER (CCW) 0.980 0.000 $5.48
0307 0309 CENTRAL COLORADO WATER SUBDISTRICT (CCS) 1.462 0.000 $8.17
0307 1050 HIGH PLAINS LIBRARY 3.044 0.000 $17.02
0307 0509 HUDSON FIRE 12.237 0.000 $68.40
0307 0413 HUDSON TOWN 30.343 0.000 $169.62
0307 0301 NORTHERN COLORADO WATER (NCW) 1.000 0.000 $5.59
0307 0203 SCHOOL DIST RE3J-KEENESBURG 0.000 15.822 $99.84
0307 0100 WELD COUNTY 15.956 0.000 $89.19
Total - - 71.335 15.822 $498.60


The estimate of tax is based on the prior year mill levy and the 2025 projected assessment rates. Mill levies and tax estimates will be updated yearly on December 22nd for the current year. Additional information can be found at https://assessor.weld.gov










Select Reports to Print: