Account: R0036391
April 5, 2026
| Account | Parcel | Account Type | Tax Year | Buildings | Actual Value | Local Govt Assessed Value | School Assessed Value |
|---|---|---|---|---|---|---|---|
| R0036391 | 147136005028 | Residential | 2026 | 2 | 464,376 | 29,030 | 32,740 |
| Legal |
|---|
| LOC LOCF5-28 L28 BLK5 LOCHWOOD FARMS PUD 1ST FILING |
| Subdivision | Block | Lot | Land Economic Area |
|---|---|---|---|
| LOCHWOOD FARMS PUD 1ST FG | 5 | 28 | LOCHWOOD LOTS |
| Property Address | Property City | Section | Township | Range |
|---|---|---|---|---|
| 605 PINYON CIR | LOCHBUIE | 36 | 01 | 66 |
| Account | Parcel | Account Type | Tax Year | Buildings | Actual Value | Local Govt Assessed Value | School Assessed Value |
|---|---|---|---|---|---|---|---|
| R0036391 | 147136005028 | Residential | 2026 | 2 | 464,376 | 29,030 | 32,740 |
| Account | Owner Name | Address |
|---|---|---|
| R0036391 | JAMES DAVID C | 605 PINYON CIR LOCHBUIE, CO 806035700 |
| R0036391 | JAMES JULIE J |
| Account | Parcel | Account Type | Tax Year | Buildings | Actual Value | Local Govt Assessed Value | School Assessed Value |
|---|---|---|---|---|---|---|---|
| R0036391 | 147136005028 | Residential | 2026 | 2 | 464,376 | 29,030 | 32,740 |
| Reception | Rec Date | Type | Grantor | Grantee | Doc Fee | Sale Date | Sale Price |
|---|---|---|---|---|---|---|---|
| 02086843 | 02-02-1987 | QCN | 0.00 | 01-01-1900 | 0 | ||
| 2158012 | NA | SUB | SUBDIVISION | LOCKWOOD FARMS PUD FG #1 | 0.00 | NA | 0 |
| 2279675 | 03-02-1992 | SPWD | WELD COUNTY ASSOCIATES | SPANJER CHAD DEAN | 3.30 | 02-27-1992 | 33,000 |
| 2466009 | 12-04-1995 | QCN | SPANJER CHAD DEAN | SPANJER DAVID E | 0.00 | 12-04-1995 | 0 |
| 2962352 | 06-19-2002 | PTD | SPANJER DAVID E | MORTGAGE ELECTRONIC REGISTRATION SYS INC | 0.00 | 06-19-2002 | 0 |
| 3060425 | 05-07-2003 | SWD | MORTGAGE ELECTRONIC REGISTRATION SYS INC | JAMES DAVID C & JULIE J | 13.83 | 04-10-2003 | 138,300 |
*If the hyperlink for the reception number does not work, try a manual search in the Clerk and Recorder records. Use the Grantor or Grantee in your search.
| Account | Parcel | Account Type | Tax Year | Buildings | Actual Value | Local Govt Assessed Value | School Assessed Value |
|---|---|---|---|---|---|---|---|
| R0036391 | 147136005028 | Residential | 2026 | 2 | 464,376 | 29,030 | 32,740 |
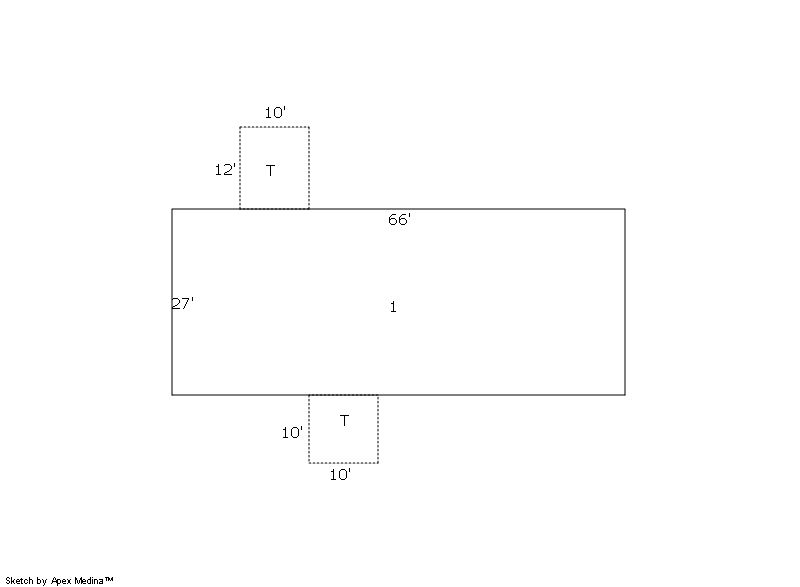
Building 1
| AccountNo | Building ID | Occupancy |
|---|---|---|
| R0036391 | 1 | Single Family Residential |
| ID | Type | NBHD | Occupancy | % Complete | Bedrooms | Baths |
|---|---|---|---|---|---|---|
| 1 | Manufactured Hm | 4L1003 | Single Family Residential | 100 | 3 | 2.00 |
| ID | Exterior | Roof Cover | Interior | HVAC | Perimeter | Units | Unit Type | Make |
|---|---|---|---|---|---|---|---|---|
| 1 | Vinyl Siding | Shingle Comp | Drywall | Forced Air | 0 | 0 | NA | Unknown |
| ID | Square Ft | Condo SF | Total Basement SF | Finished Basement SF | Garage SF | Carport SF | Balcony SF | Porch SF |
|---|---|---|---|---|---|---|---|---|
| 1 | 1,782 | 0 | 0 | 0 | 0 | 0 | 0 | 220 |
| ID | Built As | Square Ft | Year Built | Stories | Length | Width |
|---|---|---|---|---|---|---|
| 1.00 | Mnfctrd Home 1 Story | 1,782 | 1988 | 1 | 66 | 27 |
| ID | Detail Type | Description | Units |
|---|---|---|---|
| 1 | Add On | MH Swamp Cooler | 1.00 |
| 1 | Fixture | Full Bath | 2.00 |
| 1 | Porch | Open Slab | 220.00 |
Building 2
| AccountNo | Building ID | Occupancy |
|---|---|---|
| R0036391 | 2 | Equipment Building |
| ID | Type | NBHD | Occupancy | % Complete | Bedrooms | Baths |
|---|---|---|---|---|---|---|
| 2 | Out Building | NA | Equipment Building | 100 | 0 | 0.00 |
| ID | Exterior | Roof Cover | Interior | HVAC | Perimeter | Units | Unit Type | Make |
|---|---|---|---|---|---|---|---|---|
| 2 | NA | NA | NA | None | 140 | 0 | NA | NA |
| ID | Square Ft | Condo SF | Total Basement SF | Finished Basement SF | Garage SF | Carport SF | Balcony SF | Porch SF |
|---|---|---|---|---|---|---|---|---|
| 2 | 1,200 | 0 | 0 | 0 | 0 | 0 | 0 | 0 |
| ID | Built As | Square Ft | Year Built | Stories | Length | Width |
|---|---|---|---|---|---|---|
| 2.00 | Equipment Building | 1,200 | 2007 | 1 | 40 | 30 |
No Additional Details for Building 2
| Account | Parcel | Account Type | Tax Year | Buildings | Actual Value | Local Govt Assessed Value | School Assessed Value |
|---|---|---|---|---|---|---|---|
| R0036391 | 147136005028 | Residential | 2026 | 2 | 464,376 | 29,030 | 32,740 |
| Type | Code | Description | Actual Value | Local Govt Assessed Value | School Assessed Value | Acres | Land SqFt |
|---|---|---|---|---|---|---|---|
| Improvement | 1212 | SINGLE FAMILY RESIDENTIAL IMPROVEMENTS | 309,205 | 19,330 | 21,800 | 0.000 | 0 |
| Land | 1112 | SINGLE FAMILY RESIDENTIAL-LAND | 155,171 | 9,700 | 10,940 | 1.000 | 43,570 |
| Totals | - | - | 464,376 | 29,030 | 32,740 | 1.000 | 43,570 |
Comparable sales for your Residential or Commercial property may be found using our SALES SEARCH TOOL
Values are updated annually on May 1st for Real Property and June 15th for Personal Property and Oil and Gas.
| Account | Parcel | Account Type | Tax Year | Buildings | Actual Value | Local Govt Assessed Value | School Assessed Value |
|---|---|---|---|---|---|---|---|
| R0036391 | 147136005028 | Residential | 2026 | 2 | 464,376 | 29,030 | 32,740 |
| Tax Area | District ID | District Name | Local Govt Mill Levy |
School Mill Levy |
Estimated Taxes |
|---|---|---|---|---|---|
| 0318 | 0700 | AIMS JUNIOR COLLEGE | 6.313 | 0.000 | $183.27 |
| 0318 | 0302 | CENTRAL COLORADO WATER (CCW) | 0.980 | 0.000 | $28.45 |
| 0318 | 0309 | CENTRAL COLORADO WATER SUBDISTRICT (CCS) | 1.462 | 0.000 | $42.44 |
| 0318 | 1050 | HIGH PLAINS LIBRARY | 3.044 | 0.000 | $88.37 |
| 0318 | 0509 | HUDSON FIRE | 12.237 | 0.000 | $355.24 |
| 0318 | 0419 | LOCHBUIE TOWN | 6.443 | 0.000 | $187.04 |
| 0318 | 0203 | SCHOOL DIST RE3J-KEENESBURG | 0.000 | 15.822 | $518.01 |
| 0318 | 0100 | WELD COUNTY | 15.956 | 0.000 | $463.20 |
| Total | - | - | 46.435 | 15.822 | $1,866.02 |
The estimate of tax is based on the prior year mill levy and the 2025 projected assessment rates. Mill levies and tax estimates will be updated yearly on December 22nd for the current year. Additional information can be found at https://assessor.weld.gov



