Account: R0039792

April 4, 2026

Account Parcel Account Type Tax Year Buildings Actual Value Local Govt Assessed Value School Assessed Value
R0039792 095903102018 Residential 2026 1 416,296 26,020 29,350

Legal
GR 4WBW-6 L6 FOURTH REPLAT OF WEBER WEST

Subdivision Block Lot Land Economic Area
WEBER WEST 4TH RPLT 6 WEBER WEST

Property Address Property City Section Township Range
4912 W 2ND STREET RD GREELEY 03 05 66




Account Parcel Account Type Tax Year Buildings Actual Value Local Govt Assessed Value School Assessed Value
R0039792 095903102018 Residential 2026 1 416,296 26,020 29,350

Account Owner Name Address
R0039792 JOHNSON BRAD E 4912 W 2ND STREET RD GREELEY, CO 806344327
R0039792 JOHNSON KRISTI L


Account Parcel Account Type Tax Year Buildings Actual Value Local Govt Assessed Value School Assessed Value
R0039792 095903102018 Residential 2026 1 416,296 26,020 29,350

Reception Rec Date Type Grantor Grantee Doc Fee Sale Date Sale Price
02251410 05-28-1991 WD WEBER RICHARD D GREENER DANIEL M & PATRICIA L 42.00 05-23-1991 420,000
02260447 08-22-1991 WD GREENER DANIEL M & PATRICIA L PIERUCCINI MICHAEL & NANCY E 3.20 08-20-1991 32,000
2250777 NA SUB SUBDIVISION WEBER WEST 4TH RPLT 0.00 NA 0
2289793 05-29-1992 WD PIERUCCINI MICHAEL N & NANCY E JOHNSON BRAD E & KRISTI L 10.77 05-26-1992 107,700



Account Parcel Account Type Tax Year Buildings Actual Value Local Govt Assessed Value School Assessed Value
R0039792 095903102018 Residential 2026 1 416,296 26,020 29,350

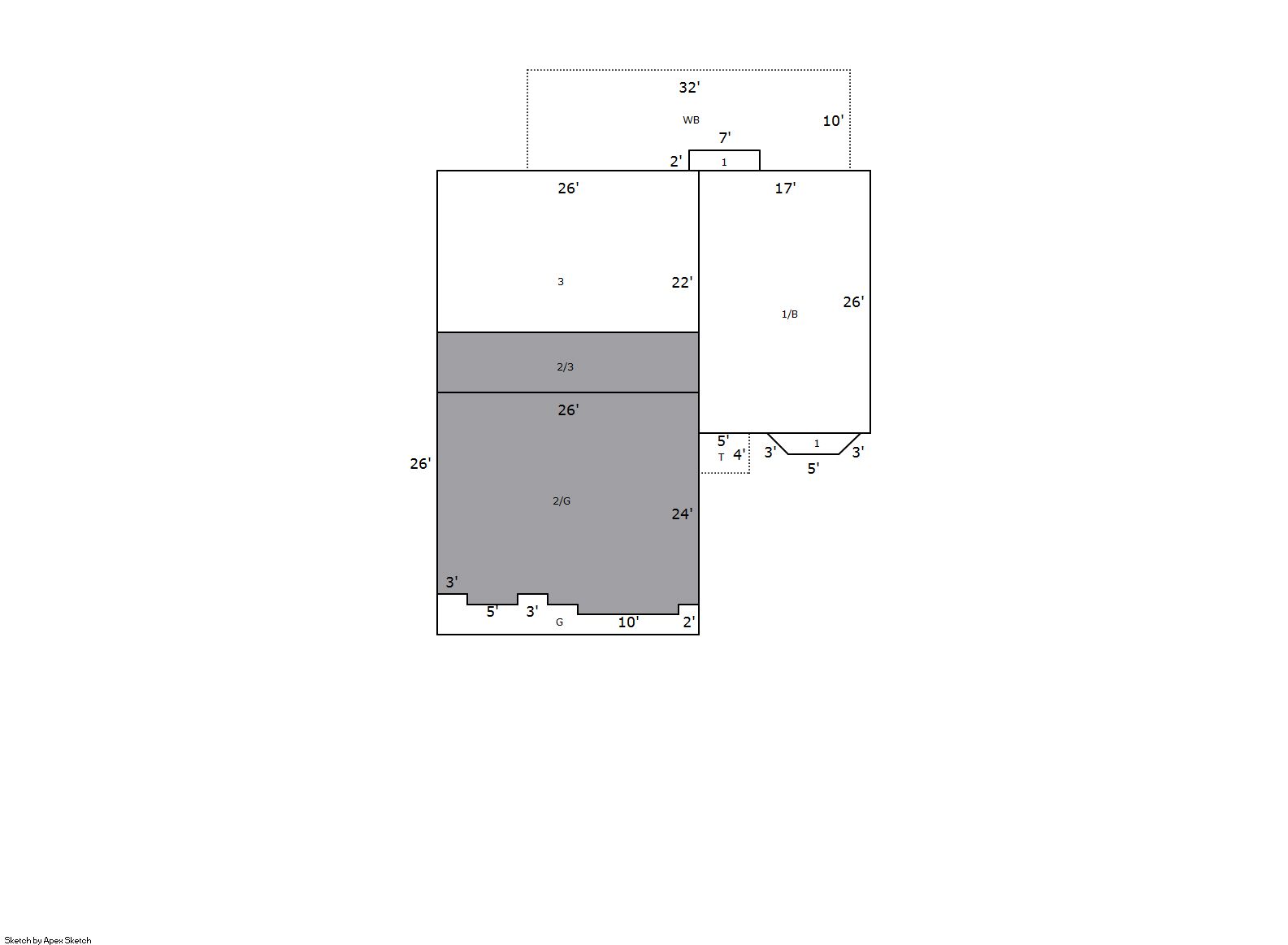
Building 1

AccountNo Building ID Occupancy
R0039792 1 Single Family Residential


ID Type NBHD Occupancy % Complete Bedrooms Baths
1 Residential 2G3011 Single Family Residential 100 3 3.00


ID Exterior Roof Cover Interior HVAC Perimeter Units Unit Type Make
1 Frame Hardboard Composition Shingle Drywall Central Air to Air 300 0 NA NA


ID Square Ft Condo SF Total Basement SF Finished Basement SF Garage SF Carport SF Balcony SF Porch SF
1 1,749 0 442 0 624 0 320 20


Built As Details for Building 1
ID Built As Square Ft Year Built Stories Length Width
1.00 Split Level 1,749 1992 1 0 0


Additional Details for Building 1
ID Detail Type Description Units
1 Add On Fireplace Wood 1.00
1 Balcony Wood Wood Fin 320.00
1 Basement Total Basement SF 442.00
1 Fixture Full Bath 2.00
1 Fixture Half Bath 1.00
1 Garage Attached 624.00
1 Porch Open Slab 20.00
1 Rough In Rough In 1.00





Account Parcel Account Type Tax Year Buildings Actual Value Local Govt Assessed Value School Assessed Value
R0039792 095903102018 Residential 2026 1 416,296 26,020 29,350

Type Code Description Actual Value Local Govt Assessed Value School Assessed Value Acres Land SqFt
Improvement 1212 SINGLE FAMILY RESIDENTIAL IMPROVEMENTS 331,296 20,710 23,360 0.000 0
Land 1112 SINGLE FAMILY RESIDENTIAL-LAND 85,000 5,310 5,990 0.208 9,078
Totals - - 416,296 26,020 29,350 0.208 9,078


Account Parcel Account Type Tax Year Buildings Actual Value Local Govt Assessed Value School Assessed Value
R0039792 095903102018 Residential 2026 1 416,296 26,020 29,350

Tax Area District ID District Name Local Govt
Mill Levy
School
Mill Levy
Estimated
Taxes
0600 0700 AIMS JUNIOR COLLEGE 6.313 0.000 $164.26
0600 0411 GREELEY CITY 11.274 0.000 $293.35
0600 1050 HIGH PLAINS LIBRARY 3.044 0.000 $79.20
0600 0301 NORTHERN COLORADO WATER (NCW) 1.000 0.000 $26.02
0600 0206 SCHOOL DIST 6-GREELEY 0.000 47.615 $1,397.50
0600 0100 WELD COUNTY 15.956 0.000 $415.18
Total - - 37.587 47.615 $2,375.51


The estimate of tax is based on the prior year mill levy and the 2025 projected assessment rates. Mill levies and tax estimates will be updated yearly on December 22nd for the current year. Additional information can be found at https://assessor.weld.gov










Select Reports to Print: