Account: R0041789
April 5, 2026
| Account | Parcel | Account Type | Tax Year | Buildings | Actual Value | Local Govt Assessed Value | School Assessed Value |
|---|---|---|---|---|---|---|---|
| R0041789 | 095903403008 | Residential | 2026 | 1 | 407,581 | 25,470 | 28,730 |
| Legal |
|---|
| GR RWMW3-8 L8 BLK3 REPLAT WESTMOOR WEST |
| Subdivision | Block | Lot | Land Economic Area |
|---|---|---|---|
| WESTMOOR WEST RPLT | 3 | 8 | WESTMOOR |
| Property Address | Property City | Section | Township | Range |
|---|---|---|---|---|
| 4946 W 5TH ST | GREELEY | 03 | 05 | 66 |
| Account | Parcel | Account Type | Tax Year | Buildings | Actual Value | Local Govt Assessed Value | School Assessed Value |
|---|---|---|---|---|---|---|---|
| R0041789 | 095903403008 | Residential | 2026 | 1 | 407,581 | 25,470 | 28,730 |
| Account | Owner Name | Address |
|---|---|---|
| R0041789 | MCLERAN ARTHUR D | 4946 W 5TH ST GREELEY, CO 806341242 |
| Account | Parcel | Account Type | Tax Year | Buildings | Actual Value | Local Govt Assessed Value | School Assessed Value |
|---|---|---|---|---|---|---|---|
| R0041789 | 095903403008 | Residential | 2026 | 1 | 407,581 | 25,470 | 28,730 |
| Reception | Rec Date | Type | Grantor | Grantee | Doc Fee | Sale Date | Sale Price |
|---|---|---|---|---|---|---|---|
| 2086664 | NA | SUB | SUBDIVISION | WESTMOOR WEST RPLT | 0.00 | NA | 0 |
| 2224781 | 08-24-1990 | WD | WEBER RICHARD D | HASKETT RANDY G | 7.05 | 08-24-1990 | 70,500 |
| 2254943 | 07-01-1991 | WD | HASKETT RANDY G | CHAPMAN BRADLEY J & ANN M | 7.70 | 06-26-1991 | 77,000 |
| 2486161 | 04-16-1996 | WD | CHAPMAN BRADLEY J & ANN M | MIDDLETON SCOTT ALLEN & TONYA ANN | 12.00 | 04-15-1996 | 120,000 |
| 2929665 | 03-01-2002 | WD | MIDDLETON SCOTT ALLEN & TONYA ANN | BOROUMAND NOMAN | 15.25 | 02-28-2002 | 152,500 |
| 4313015 | 06-23-2017 | WD | BOROUMAND NOMAN | MCLERAN ARTHUR D | 28.00 | 06-23-2017 | 280,000 |
*If the hyperlink for the reception number does not work, try a manual search in the Clerk and Recorder records. Use the Grantor or Grantee in your search.
| Account | Parcel | Account Type | Tax Year | Buildings | Actual Value | Local Govt Assessed Value | School Assessed Value |
|---|---|---|---|---|---|---|---|
| R0041789 | 095903403008 | Residential | 2026 | 1 | 407,581 | 25,470 | 28,730 |
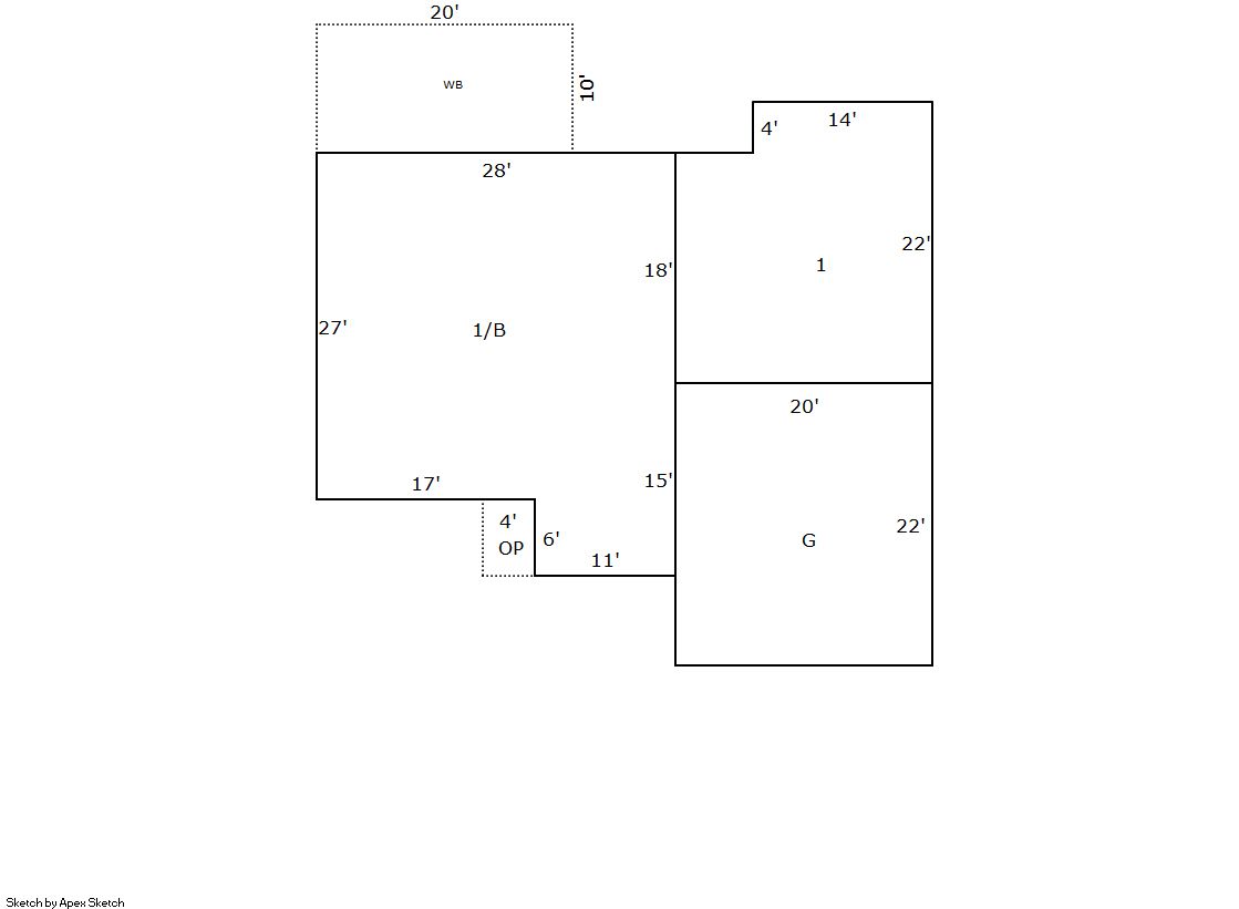
Building 1
| AccountNo | Building ID | Occupancy |
|---|---|---|
| R0041789 | 1 | Single Family Residential |
| ID | Type | NBHD | Occupancy | % Complete | Bedrooms | Baths |
|---|---|---|---|---|---|---|
| 1 | Residential | 2G3011 | Single Family Residential | 100 | 3 | 2.00 |
| ID | Exterior | Roof Cover | Interior | HVAC | Perimeter | Units | Unit Type | Make |
|---|---|---|---|---|---|---|---|---|
| 1 | Frame Siding | Composition Shingle | Drywall | Central Air to Air | 170 | 0 | NA | NA |
| ID | Square Ft | Condo SF | Total Basement SF | Finished Basement SF | Garage SF | Carport SF | Balcony SF | Porch SF |
|---|---|---|---|---|---|---|---|---|
| 1 | 1,238 | 0 | 822 | 822 | 440 | 0 | 200 | 24 |
| ID | Built As | Square Ft | Year Built | Stories | Length | Width |
|---|---|---|---|---|---|---|
| 1.00 | Ranch 1 Story | 1,238 | 1990 | 1 | 0 | 0 |
| ID | Detail Type | Description | Units |
|---|---|---|---|
| 1 | Add On | Fireplace Gas | 1.00 |
| 1 | Balcony | Wood Wood Fin | 200.00 |
| 1 | Basement | Finished | 822.00 |
| 1 | Basement | Total Basement SF | 822.00 |
| 1 | Fixture | Full Bath | 2.00 |
| 1 | Garage | Attached | 440.00 |
| 1 | Porch | Slab Roof Ceil | 24.00 |
| 1 | Rough In | Rough In | 1.00 |
| Account | Parcel | Account Type | Tax Year | Buildings | Actual Value | Local Govt Assessed Value | School Assessed Value |
|---|---|---|---|---|---|---|---|
| R0041789 | 095903403008 | Residential | 2026 | 1 | 407,581 | 25,470 | 28,730 |
| Type | Code | Description | Actual Value | Local Govt Assessed Value | School Assessed Value | Acres | Land SqFt |
|---|---|---|---|---|---|---|---|
| Improvement | 1212 | SINGLE FAMILY RESIDENTIAL IMPROVEMENTS | 322,581 | 20,160 | 22,740 | 0.000 | 0 |
| Land | 1112 | SINGLE FAMILY RESIDENTIAL-LAND | 85,000 | 5,310 | 5,990 | 0.174 | 7,559 |
| Totals | - | - | 407,581 | 25,470 | 28,730 | 0.174 | 7,559 |
Comparable sales for your Residential or Commercial property may be found using our SALES SEARCH TOOL
Values are updated annually on May 1st for Real Property and June 15th for Personal Property and Oil and Gas.
| Account | Parcel | Account Type | Tax Year | Buildings | Actual Value | Local Govt Assessed Value | School Assessed Value |
|---|---|---|---|---|---|---|---|
| R0041789 | 095903403008 | Residential | 2026 | 1 | 407,581 | 25,470 | 28,730 |
| Tax Area | District ID | District Name | Local Govt Mill Levy |
School Mill Levy |
Estimated Taxes |
|---|---|---|---|---|---|
| 0600 | 0700 | AIMS JUNIOR COLLEGE | 6.313 | 0.000 | $160.79 |
| 0600 | 0411 | GREELEY CITY | 11.274 | 0.000 | $287.15 |
| 0600 | 1050 | HIGH PLAINS LIBRARY | 3.044 | 0.000 | $77.53 |
| 0600 | 0301 | NORTHERN COLORADO WATER (NCW) | 1.000 | 0.000 | $25.47 |
| 0600 | 0206 | SCHOOL DIST 6-GREELEY | 0.000 | 47.615 | $1,367.98 |
| 0600 | 0100 | WELD COUNTY | 15.956 | 0.000 | $406.40 |
| Total | - | - | 37.587 | 47.615 | $2,325.32 |
The estimate of tax is based on the prior year mill levy and the 2025 projected assessment rates. Mill levies and tax estimates will be updated yearly on December 22nd for the current year. Additional information can be found at https://assessor.weld.gov


