Account: R0042201

April 4, 2026

Account Parcel Account Type Tax Year Buildings Actual Value Local Govt Assessed Value School Assessed Value
R0042201 095926334006 Residential 2026 1 430,644 26,920 30,360

Legal
WHP5 L6 BLK1 WEST HILL-N-PARK 5TH FG

Subdivision Block Lot Land Economic Area
WEST HILL N PARK 5TH FG 1 6 HILL N PARK

Property Address Property City Section Township Range
4607 MESA VERDE DR WELD 26 05 66




Account Parcel Account Type Tax Year Buildings Actual Value Local Govt Assessed Value School Assessed Value
R0042201 095926334006 Residential 2026 1 430,644 26,920 30,360

Account Owner Name Address
R0042201 OROZCO ANTONIO 4607 MESA VERDE DR GREELEY, CO 806349296
R0042201 LEIBA LUZ E


Account Parcel Account Type Tax Year Buildings Actual Value Local Govt Assessed Value School Assessed Value
R0042201 095926334006 Residential 2026 1 430,644 26,920 30,360

Reception Rec Date Type Grantor Grantee Doc Fee Sale Date Sale Price
1706661 12-22-1976 COZ WELD COUNTY ZONING CASE: Z-167* ZONING R-5 0.00 NA 0
2779904 NA SUB SUBDIVISION WEST HILL N PARK 5TH FG 0.00 NA 0
2807901 11-20-2000 WD J E R LIFESTYLE HOMES INC 11.50 11-16-2000 115,000
2963836 06-25-2002 WD LIFESTYLE HOMES INC OROZCO ANTONIO & LEIBA LUZ E 19.43 06-21-2002 194,300



Account Parcel Account Type Tax Year Buildings Actual Value Local Govt Assessed Value School Assessed Value
R0042201 095926334006 Residential 2026 1 430,644 26,920 30,360

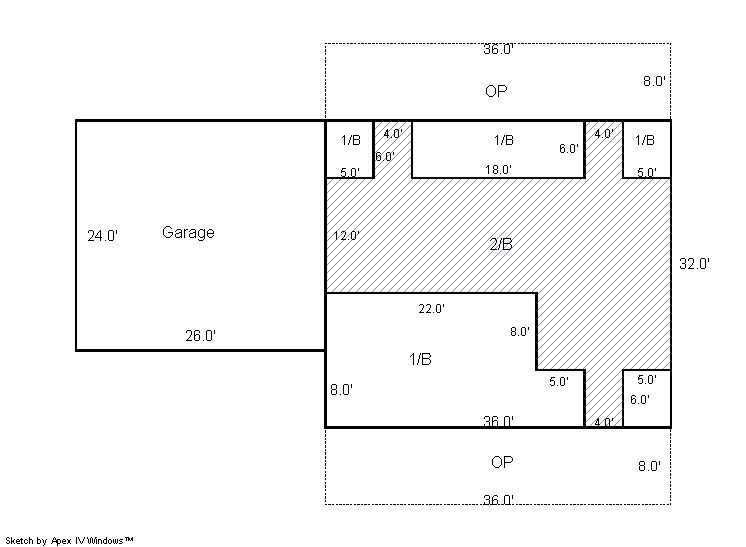
Building 1

AccountNo Building ID Occupancy
R0042201 1 Single Family Residential


ID Type NBHD Occupancy % Complete Bedrooms Baths
1 Residential 2R0056 Single Family Residential 100 3 3.00


ID Exterior Roof Cover Interior HVAC Perimeter Units Unit Type Make
1 Frame Hardboard Composition Shingle Drywall Forced Air 0 0 NA NA


ID Square Ft Condo SF Total Basement SF Finished Basement SF Garage SF Carport SF Balcony SF Porch SF
1 1,768 0 1,152 0 624 0 0 576


Built As Details for Building 1
ID Built As Square Ft Year Built Stories Length Width
1.00 2 Story 1,768 2001 1 0 0


Additional Details for Building 1
ID Detail Type Description Units
1 Add On Fireplace Gas 1.00
1 Basement Total Basement SF 1152.00
1 Fixture Full Bath 2.00
1 Fixture Half Bath 1.00
1 Garage Attached 624.00
1 Porch Slab Roof Ceil 576.00
1 Rough In Rough In 1.00





Account Parcel Account Type Tax Year Buildings Actual Value Local Govt Assessed Value School Assessed Value
R0042201 095926334006 Residential 2026 1 430,644 26,920 30,360

Type Code Description Actual Value Local Govt Assessed Value School Assessed Value Acres Land SqFt
Improvement 1212 SINGLE FAMILY RESIDENTIAL IMPROVEMENTS 350,644 21,920 24,720 0.000 0
Land 1112 SINGLE FAMILY RESIDENTIAL-LAND 80,000 5,000 5,640 0.350 15,393
Totals - - 430,644 26,920 30,360 0.350 15,393


Account Parcel Account Type Tax Year Buildings Actual Value Local Govt Assessed Value School Assessed Value
R0042201 095926334006 Residential 2026 1 430,644 26,920 30,360

Tax Area District ID District Name Local Govt
Mill Levy
School
Mill Levy
Estimated
Taxes
5728 0700 AIMS JUNIOR COLLEGE 6.313 0.000 $169.95
5728 0510 FRONT RANGE FIRE RESCUE FIRE PROTECTION DISTRICT 11.483 0.000 $309.12
5728 1050 HIGH PLAINS LIBRARY 3.044 0.000 $81.94
5728 0301 NORTHERN COLORADO WATER (NCW) 1.000 0.000 $26.92
5728 0206 SCHOOL DIST 6-GREELEY 0.000 47.615 $1,445.59
5728 0100 WELD COUNTY 15.956 0.000 $429.54
5728 1200 WEST GREELEY CONSERVATION 0.414 0.000 $11.14
Total - - 38.21 47.615 $2,474.20


The estimate of tax is based on the prior year mill levy and the 2025 projected assessment rates. Mill levies and tax estimates will be updated yearly on December 22nd for the current year. Additional information can be found at https://assessor.weld.gov










Select Reports to Print: