Account: R0042901

April 4, 2026

Account Parcel Account Type Tax Year Buildings Actual Value Local Govt Assessed Value School Assessed Value
R0042901 095926334013 Residential 2026 1 374,947 23,430 26,430

Legal
WHP5 L13 BLK1 WEST HILL-N-PARK 5TH FG

Subdivision Block Lot Land Economic Area
WEST HILL N PARK 5TH FG 1 13 HILL N PARK

Property Address Property City Section Township Range
4431 MESA VERDE DR WELD 26 05 66




Account Parcel Account Type Tax Year Buildings Actual Value Local Govt Assessed Value School Assessed Value
R0042901 095926334013 Residential 2026 1 374,947 23,430 26,430

Account Owner Name Address
R0042901 ARMSTRONG JAMES H 4431 MESA VERDE DR GREELEY, CO 806349295
R0042901 GESKE ELIZABETH M


Account Parcel Account Type Tax Year Buildings Actual Value Local Govt Assessed Value School Assessed Value
R0042901 095926334013 Residential 2026 1 374,947 23,430 26,430

Reception Rec Date Type Grantor Grantee Doc Fee Sale Date Sale Price
1706661 12-22-1976 COZ WELD COUNTY ZONING CASE: Z-167* ZONING R-5 0.00 NA 0
2779904 NA SUB SUBDIVISION WEST HILL N PARK 5TH FG 0.00 NA 0
2828306 02-27-2001 WD J E R LIFESTYLE HOMES INC 11.50 02-22-2001 115,000
3025078 01-20-2003 QCN LIFESTYLE HOMES INC CLARKSON LAND LLC 0.00 01-20-2003 0
3105912 09-12-2003 WD CLARKSON LAND LLC LIFESTYLE HOMES INC 12.50 09-08-2003 125,000
3175851 05-03-2004 WD LIFESTYLE HOMES INC LOYA ALBERTO 16.50 04-27-2004 165,000
3433534 11-08-2006 PTD LOYA ALBERTO WELLS FARGO BANK N A 0.00 11-08-2006 0
3462731 03-19-2007 SWD WELLS FARGO BANK N A ARMSTRONG JAMES H & 12.60 01-19-2007 126,000



Account Parcel Account Type Tax Year Buildings Actual Value Local Govt Assessed Value School Assessed Value
R0042901 095926334013 Residential 2026 1 374,947 23,430 26,430

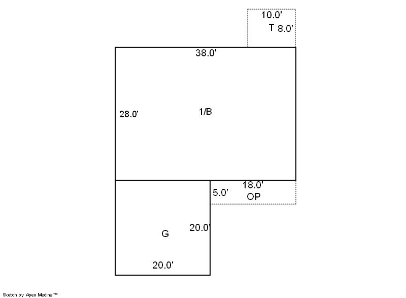
Building 1

AccountNo Building ID Occupancy
R0042901 1 Single Family Residential


ID Type NBHD Occupancy % Complete Bedrooms Baths
1 Residential 2R0056 Single Family Residential 100 3 2.00


ID Exterior Roof Cover Interior HVAC Perimeter Units Unit Type Make
1 Frame Hardboard Composition Shingle Drywall Central Air to Air 0 0 NA NA


ID Square Ft Condo SF Total Basement SF Finished Basement SF Garage SF Carport SF Balcony SF Porch SF
1 1,064 0 1,064 0 400 432 0 80


Built As Details for Building 1
ID Built As Square Ft Year Built Stories Length Width
1.00 Ranch 1 Story 1,064 2004 1 0 0


Additional Details for Building 1
ID Detail Type Description Units
1 Basement Total Basement SF 1064.00
1 Carport Carport 432.00
1 Fixture Full Bath 2.00
1 Garage Attached 400.00
1 Porch Open Slab 80.00
1 Porch Slab Roof Ceil 90.00
1 Rough In Rough In 1.00





Account Parcel Account Type Tax Year Buildings Actual Value Local Govt Assessed Value School Assessed Value
R0042901 095926334013 Residential 2026 1 374,947 23,430 26,430

Type Code Description Actual Value Local Govt Assessed Value School Assessed Value Acres Land SqFt
Improvement 1212 SINGLE FAMILY RESIDENTIAL IMPROVEMENTS 294,947 18,430 20,790 0.000 0
Land 1112 SINGLE FAMILY RESIDENTIAL-LAND 80,000 5,000 5,640 0.350 15,371
Totals - - 374,947 23,430 26,430 0.350 15,371


Account Parcel Account Type Tax Year Buildings Actual Value Local Govt Assessed Value School Assessed Value
R0042901 095926334013 Residential 2026 1 374,947 23,430 26,430

Tax Area District ID District Name Local Govt
Mill Levy
School
Mill Levy
Estimated
Taxes
5728 0700 AIMS JUNIOR COLLEGE 6.313 0.000 $147.91
5728 0510 FRONT RANGE FIRE RESCUE FIRE PROTECTION DISTRICT 11.483 0.000 $269.05
5728 1050 HIGH PLAINS LIBRARY 3.044 0.000 $71.32
5728 0301 NORTHERN COLORADO WATER (NCW) 1.000 0.000 $23.43
5728 0206 SCHOOL DIST 6-GREELEY 0.000 47.615 $1,258.46
5728 0100 WELD COUNTY 15.956 0.000 $373.85
5728 1200 WEST GREELEY CONSERVATION 0.414 0.000 $9.70
Total - - 38.21 47.615 $2,153.72


The estimate of tax is based on the prior year mill levy and the 2025 projected assessment rates. Mill levies and tax estimates will be updated yearly on December 22nd for the current year. Additional information can be found at https://assessor.weld.gov










Select Reports to Print: