Account: R0043001

April 5, 2026

Account Parcel Account Type Tax Year Buildings Actual Value Local Govt Assessed Value School Assessed Value
R0043001 095926334014 Residential 2026 1 375,959 23,500 26,510

Legal
WHP5 L14 BLK1 WEST HILL-N-PARK 5TH FG

Subdivision Block Lot Land Economic Area
WEST HILL N PARK 5TH FG 1 14 HILL N PARK

Property Address Property City Section Township Range
4419 MESA VERDE DR WELD 26 05 66




Account Parcel Account Type Tax Year Buildings Actual Value Local Govt Assessed Value School Assessed Value
R0043001 095926334014 Residential 2026 1 375,959 23,500 26,510

Account Owner Name Address
R0043001 RASCON JUAN MANUEL GARCIA 574 E 23RD ST APT 47 LOVELAND, CO 805383280


Account Parcel Account Type Tax Year Buildings Actual Value Local Govt Assessed Value School Assessed Value
R0043001 095926334014 Residential 2026 1 375,959 23,500 26,510

Reception Rec Date Type Grantor Grantee Doc Fee Sale Date Sale Price
1706661 12-22-1976 COZ WELD COUNTY ZONING CASE: Z-167* ZONING R-5 0.00 NA 0
2779904 NA SUB SUBDIVISION WEST HILL N PARK 5TH FG 0.00 NA 0
2835230 03-27-2001 WD J E R LIFESTYLE HOMES INC 5.75 03-21-2001 57,500
3025078 01-20-2003 QCN LIFESTYLE HOMES INC CLARKSON LAND LLC 0.00 01-20-2003 0
3158508 03-03-2004 QCN CLARKSON LAND LLC LIFESTYLE HOMES INC 0.00 02-26-2004 0
3225406 10-06-2004 WD LIFESTYLE HOMES INC BURNETT BRYAN M & 16.79 09-30-2004 167,900
3506415 09-25-2007 PTD BURNETT BRYAN M & SECRETARY OF HOUSING & URBAN DEV 0.00 09-24-2007 0
3528752 01-14-2008 SWD SECRETARY OF HOUSING & URBAN DEV RASCON JUAN MANUEL GARCIA 0.00 01-03-2008 120,000



Account Parcel Account Type Tax Year Buildings Actual Value Local Govt Assessed Value School Assessed Value
R0043001 095926334014 Residential 2026 1 375,959 23,500 26,510

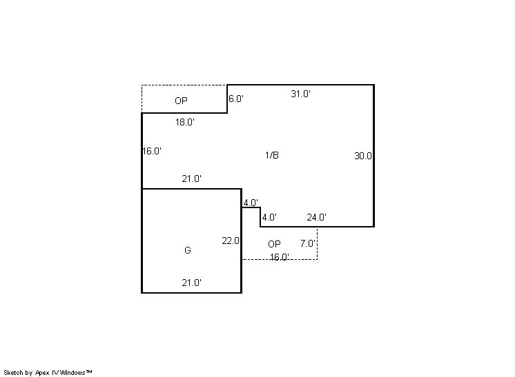
Building 1

AccountNo Building ID Occupancy
R0043001 1 Single Family Residential


ID Type NBHD Occupancy % Complete Bedrooms Baths
1 Residential 2R0056 Single Family Residential 100 3 2.00


ID Exterior Roof Cover Interior HVAC Perimeter Units Unit Type Make
1 Frame Hardboard Composition Shingle Drywall Forced Air 0 0 NA NA


ID Square Ft Condo SF Total Basement SF Finished Basement SF Garage SF Carport SF Balcony SF Porch SF
1 1,178 0 1,178 0 462 0 0 236


Built As Details for Building 1
ID Built As Square Ft Year Built Stories Length Width
1.00 Ranch 1 Story 1,178 2004 1 0 0


Additional Details for Building 1
ID Detail Type Description Units
1 Basement Total Basement SF 1178.00
1 Fixture Full Bath 2.00
1 Garage Attached 462.00
1 Porch Slab Roof Ceil 236.00
1 Rough In Rough In 1.00





Account Parcel Account Type Tax Year Buildings Actual Value Local Govt Assessed Value School Assessed Value
R0043001 095926334014 Residential 2026 1 375,959 23,500 26,510

Type Code Description Actual Value Local Govt Assessed Value School Assessed Value Acres Land SqFt
Improvement 1212 SINGLE FAMILY RESIDENTIAL IMPROVEMENTS 295,959 18,500 20,870 0.000 0
Land 1112 SINGLE FAMILY RESIDENTIAL-LAND 80,000 5,000 5,640 0.350 15,368
Totals - - 375,959 23,500 26,510 0.350 15,368


Account Parcel Account Type Tax Year Buildings Actual Value Local Govt Assessed Value School Assessed Value
R0043001 095926334014 Residential 2026 1 375,959 23,500 26,510

Tax Area District ID District Name Local Govt
Mill Levy
School
Mill Levy
Estimated
Taxes
5728 0700 AIMS JUNIOR COLLEGE 6.313 0.000 $148.36
5728 0510 FRONT RANGE FIRE RESCUE FIRE PROTECTION DISTRICT 11.483 0.000 $269.85
5728 1050 HIGH PLAINS LIBRARY 3.044 0.000 $71.53
5728 0301 NORTHERN COLORADO WATER (NCW) 1.000 0.000 $23.50
5728 0206 SCHOOL DIST 6-GREELEY 0.000 47.615 $1,262.27
5728 0100 WELD COUNTY 15.956 0.000 $374.97
5728 1200 WEST GREELEY CONSERVATION 0.414 0.000 $9.73
Total - - 38.21 47.615 $2,160.21


The estimate of tax is based on the prior year mill levy and the 2025 projected assessment rates. Mill levies and tax estimates will be updated yearly on December 22nd for the current year. Additional information can be found at https://assessor.weld.gov










Select Reports to Print: