Account: R0050393
April 4, 2026
| Account | Parcel | Account Type | Tax Year | Buildings | Actual Value | Local Govt Assessed Value | School Assessed Value |
|---|---|---|---|---|---|---|---|
| R0050393 | 095903302008 | Residential | 2026 | 1 | 537,295 | 33,580 | 37,880 |
| Legal |
|---|
| GR 2WP2-8 L8 BLK2 WEST POINT 2ND FILING |
| Subdivision | Block | Lot | Land Economic Area |
|---|---|---|---|
| WEST POINT 2ND FG | 2 | 8 | WEST POINT |
| Property Address | Property City | Section | Township | Range |
|---|---|---|---|---|
| 713 51ST AVE | GREELEY | 03 | 05 | 66 |
| Account | Parcel | Account Type | Tax Year | Buildings | Actual Value | Local Govt Assessed Value | School Assessed Value |
|---|---|---|---|---|---|---|---|
| R0050393 | 095903302008 | Residential | 2026 | 1 | 537,295 | 33,580 | 37,880 |
| Account | Owner Name | Address |
|---|---|---|
| R0050393 | FAGERBERG JOHN C | 713 51ST AVE GREELEY, CO 806344416 |
| R0050393 | FAGERBERG GRETCHEN D |
| Account | Parcel | Account Type | Tax Year | Buildings | Actual Value | Local Govt Assessed Value | School Assessed Value |
|---|---|---|---|---|---|---|---|
| R0050393 | 095903302008 | Residential | 2026 | 1 | 537,295 | 33,580 | 37,880 |
| Reception | Rec Date | Type | Grantor | Grantee | Doc Fee | Sale Date | Sale Price |
|---|---|---|---|---|---|---|---|
| 02323642 | 03-02-1993 | WD | WEST POINT DEVELOPMENT CO INC | CANZONA THOMAS J & ANNABELLE M | 6.30 | 02-26-1993 | 63,000 |
| 2306255 | NA | SUB | SUBDIVISION | WEST POINT 2ND FG | 0.00 | NA | 0 |
| 2381318 | 03-31-1994 | WD | CANZONA THOMAS J & ANNABELLE M | CROPPER FRANCIS L & SHARON M | 18.50 | 03-29-1994 | 185,000 |
| 2428554 | 02-28-1995 | QC | BRUNING KRIS R | BRUNING KRIS R & PAULA M | 20.50 | 02-24-1995 | 205,000 |
| 2651003 | 11-03-1998 | WD | BRUNING KRIS R & PAULA M | R A WARKENTIN CONSTRUCTION INC | 22.50 | 10-30-1998 | 225,000 |
| 2670755 | 02-01-1999 | WD | R A WARKENTIN CONSTRUCTION INC | GIMLIN GERALD BRYANT & | 24.10 | 01-29-1999 | 241,000 |
| 3094478 | 08-12-2003 | QCN | GIMLIN GERALD BRYANT & | GIMLIN GERALD BRYANT & | 0.00 | 05-13-2003 | 0 |
| 3641244 | 08-07-2009 | WD | GIMLIN GERALD BRYANT | FAGERBERG JOHN C | 28.50 | 07-31-2009 | 285,000 |
*If the hyperlink for the reception number does not work, try a manual search in the Clerk and Recorder records. Use the Grantor or Grantee in your search.
| Account | Parcel | Account Type | Tax Year | Buildings | Actual Value | Local Govt Assessed Value | School Assessed Value |
|---|---|---|---|---|---|---|---|
| R0050393 | 095903302008 | Residential | 2026 | 1 | 537,295 | 33,580 | 37,880 |
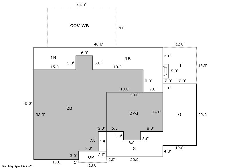
Building 1
| AccountNo | Building ID | Occupancy |
|---|---|---|
| R0050393 | 1 | Single Family Residential |
| ID | Type | NBHD | Occupancy | % Complete | Bedrooms | Baths |
|---|---|---|---|---|---|---|
| 1 | Residential | 2G3010 | Single Family Residential | 100 | 4 | 3.00 |
| ID | Exterior | Roof Cover | Interior | HVAC | Perimeter | Units | Unit Type | Make |
|---|---|---|---|---|---|---|---|---|
| 1 | Frame Siding | Composition Shingle | Drywall | Central Air to Air | 0 | 0 | NA | NA |
| ID | Square Ft | Condo SF | Total Basement SF | Finished Basement SF | Garage SF | Carport SF | Balcony SF | Porch SF |
|---|---|---|---|---|---|---|---|---|
| 1 | 2,543 | 0 | 1,330 | 0 | 724 | 0 | 336 | 146 |
| ID | Built As | Square Ft | Year Built | Stories | Length | Width |
|---|---|---|---|---|---|---|
| 1.00 | 2 Story | 2,543 | 1995 | 2 | 0 | 0 |
| ID | Detail Type | Description | Units |
|---|---|---|---|
| 1 | Add On | Fireplace Gas | 1.00 |
| 1 | Balcony | Cover Wood Balc | 336.00 |
| 1 | Basement | Total Basement SF | 1330.00 |
| 1 | Fixture | Full Bath | 2.00 |
| 1 | Fixture | Half Bath | 1.00 |
| 1 | Garage | Attached | 724.00 |
| 1 | Porch | Open Slab | 146.00 |
| 1 | Porch | Slab Roof Ceil | 40.00 |
| Account | Parcel | Account Type | Tax Year | Buildings | Actual Value | Local Govt Assessed Value | School Assessed Value |
|---|---|---|---|---|---|---|---|
| R0050393 | 095903302008 | Residential | 2026 | 1 | 537,295 | 33,580 | 37,880 |
| Type | Code | Description | Actual Value | Local Govt Assessed Value | School Assessed Value | Acres | Land SqFt |
|---|---|---|---|---|---|---|---|
| Improvement | 1212 | SINGLE FAMILY RESIDENTIAL IMPROVEMENTS | 422,295 | 26,390 | 29,770 | 0.000 | 0 |
| Land | 1112 | SINGLE FAMILY RESIDENTIAL-LAND | 115,000 | 7,190 | 8,110 | 0.244 | 10,629 |
| Totals | - | - | 537,295 | 33,580 | 37,880 | 0.244 | 10,629 |
Comparable sales for your Residential or Commercial property may be found using our SALES SEARCH TOOL
Values are updated annually on May 1st for Real Property and June 15th for Personal Property and Oil and Gas.
| Account | Parcel | Account Type | Tax Year | Buildings | Actual Value | Local Govt Assessed Value | School Assessed Value |
|---|---|---|---|---|---|---|---|
| R0050393 | 095903302008 | Residential | 2026 | 1 | 537,295 | 33,580 | 37,880 |
| Tax Area | District ID | District Name | Local Govt Mill Levy |
School Mill Levy |
Estimated Taxes |
|---|---|---|---|---|---|
| 0683 | 0700 | AIMS JUNIOR COLLEGE | 6.313 | 0.000 | $211.99 |
| 0683 | 0411 | GREELEY CITY | 11.274 | 0.000 | $378.58 |
| 0683 | 1050 | HIGH PLAINS LIBRARY | 3.044 | 0.000 | $102.22 |
| 0683 | 0301 | NORTHERN COLORADO WATER (NCW) | 1.000 | 0.000 | $33.58 |
| 0683 | 0206 | SCHOOL DIST 6-GREELEY | 0.000 | 47.615 | $1,803.66 |
| 0683 | 0100 | WELD COUNTY | 15.956 | 0.000 | $535.80 |
| 0683 | 1200 | WEST GREELEY CONSERVATION | 0.414 | 0.000 | $13.90 |
| Total | - | - | 38.001 | 47.615 | $3,079.73 |
The estimate of tax is based on the prior year mill levy and the 2025 projected assessment rates. Mill levies and tax estimates will be updated yearly on December 22nd for the current year. Additional information can be found at https://assessor.weld.gov



