Account: R0051893

April 4, 2026

Account Parcel Account Type Tax Year Buildings Actual Value Local Govt Assessed Value School Assessed Value
R0051893 095903303003 Residential 2026 1 503,340 31,460 35,490

Legal
GR 2WP3-3 L3 BLK3 WEST POINT 2ND FILING

Subdivision Block Lot Land Economic Area
WEST POINT 2ND FG 3 3 WEST POINT

Property Address Property City Section Township Range
842 51ST AVE GREELEY 03 05 66




Account Parcel Account Type Tax Year Buildings Actual Value Local Govt Assessed Value School Assessed Value
R0051893 095903303003 Residential 2026 1 503,340 31,460 35,490

Account Owner Name Address
R0051893 MONTOYA RONALD CHRISTOPHER JR 842 51ST AVE GREELEY, CO 806341949
R0051893 ZIELSDORF TERYLL A ALLARD


Account Parcel Account Type Tax Year Buildings Actual Value Local Govt Assessed Value School Assessed Value
R0051893 095903303003 Residential 2026 1 503,340 31,460 35,490

Reception Rec Date Type Grantor Grantee Doc Fee Sale Date Sale Price
2306255 NA SUB SUBDIVISION WEST POINT 2ND FG 0.00 NA 0
2383462 04-13-1994 WD WEST POINT DEVELOPMENT CO INC GONGLOFF DAN 2.25 04-12-1994 22,500
2465654 11-30-1995 WDN GONGLOFF DAN LIFESTYLE HOMES INC 0.00 11-29-1995 0
2465655 11-30-1995 WD LIFESTYLE HOMES INC GRONQUIST RONALD K & 16.83 11-29-1995 168,300
2653928 11-16-1998 QCN GRONQUIST RONALD K & GRONQUIST RONALD K JR & 0.00 10-23-1998 0
3874974 09-21-2012 WDE GRONQUIST RONALD K JR SOBESKY SCOTT 22.60 09-19-2012 226,000
4310261 06-14-2017 QCN SOBESKY SCOTT HEIN KASSANDRA J 0.00 06-08-2017 0
4406426 06-12-2018 QCN HEIN KASSANDRA J SOBESKY KASSANDRA J 0.00 06-07-2018 0
4464102 02-01-2019 SWD SOBESKY SCOTT; SOBESKY KASSANDRA J MONTOYA RONALD CHRISTOPHER JR; ZIELSDORF TERYLL A ALLARD 37.50 02-01-2019 375,000



Account Parcel Account Type Tax Year Buildings Actual Value Local Govt Assessed Value School Assessed Value
R0051893 095903303003 Residential 2026 1 503,340 31,460 35,490

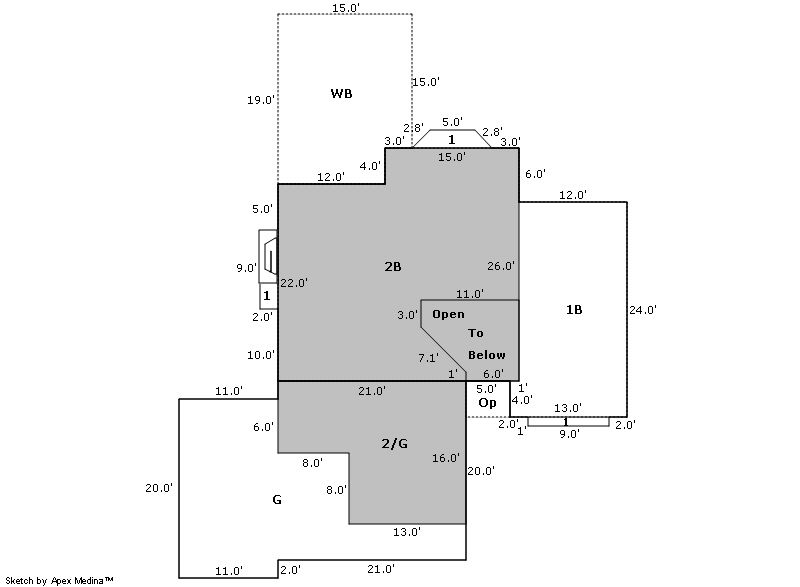
Building 1

AccountNo Building ID Occupancy
R0051893 1 Single Family Residential


ID Type NBHD Occupancy % Complete Bedrooms Baths
1 Residential 2G3010 Single Family Residential 100 4 4.00


ID Exterior Roof Cover Interior HVAC Perimeter Units Unit Type Make
1 Frame Siding Composition Shingle Drywall Central Air to Air 0 0 NA NA


ID Square Ft Condo SF Total Basement SF Finished Basement SF Garage SF Carport SF Balcony SF Porch SF
1 1,819 0 946 946 640 0 273 20


Built As Details for Building 1
ID Built As Square Ft Year Built Stories Length Width
1.00 2 Story 1,819 1994 2 0 0


Additional Details for Building 1
ID Detail Type Description Units
1 Add On Fireplace Gas 1.00
1 Balcony Wood Wood Fin 273.00
1 Basement Finished 946.00
1 Basement Total Basement SF 946.00
1 Fixture Full Bath 3.00
1 Fixture Half Bath 1.00
1 Garage Attached 640.00
1 Porch Slab Roof Ceil 20.00
1 Rough In Rough In 1.00





Account Parcel Account Type Tax Year Buildings Actual Value Local Govt Assessed Value School Assessed Value
R0051893 095903303003 Residential 2026 1 503,340 31,460 35,490

Type Code Description Actual Value Local Govt Assessed Value School Assessed Value Acres Land SqFt
Improvement 1212 SINGLE FAMILY RESIDENTIAL IMPROVEMENTS 388,340 24,270 27,380 0.000 0
Land 1112 SINGLE FAMILY RESIDENTIAL-LAND 115,000 7,190 8,110 0.217 9,465
Totals - - 503,340 31,460 35,490 0.217 9,465


Account Parcel Account Type Tax Year Buildings Actual Value Local Govt Assessed Value School Assessed Value
R0051893 095903303003 Residential 2026 1 503,340 31,460 35,490

Tax Area District ID District Name Local Govt
Mill Levy
School
Mill Levy
Estimated
Taxes
0683 0700 AIMS JUNIOR COLLEGE 6.313 0.000 $198.61
0683 0411 GREELEY CITY 11.274 0.000 $354.68
0683 1050 HIGH PLAINS LIBRARY 3.044 0.000 $95.76
0683 0301 NORTHERN COLORADO WATER (NCW) 1.000 0.000 $31.46
0683 0206 SCHOOL DIST 6-GREELEY 0.000 47.615 $1,689.86
0683 0100 WELD COUNTY 15.956 0.000 $501.98
0683 1200 WEST GREELEY CONSERVATION 0.414 0.000 $13.02
Total - - 38.001 47.615 $2,885.37


The estimate of tax is based on the prior year mill levy and the 2025 projected assessment rates. Mill levies and tax estimates will be updated yearly on December 22nd for the current year. Additional information can be found at https://assessor.weld.gov










Select Reports to Print: