Account: R0052301

April 1, 2026

Account Parcel Account Type Tax Year Buildings Actual Value Local Govt Assessed Value School Assessed Value
R0052301 105912005003 Residential 2026 1 448,751 28,050 31,640

Legal
MIL CP L3 BLK3 COLONY POINTE

Subdivision Block Lot Land Economic Area
COLONY POINTE SUB 3 3 COLONY POINTE

Property Address Property City Section Township Range
870 S WAGON TRAIN DR MILLIKEN 12 04 67




Account Parcel Account Type Tax Year Buildings Actual Value Local Govt Assessed Value School Assessed Value
R0052301 105912005003 Residential 2026 1 448,751 28,050 31,640

Account Owner Name Address
R0052301 SEAY RANDEL CK 870 WAGON TRAIN DR MILLIKEN, CO 805433023
R0052301 SEAY CYNTHIA R


Account Parcel Account Type Tax Year Buildings Actual Value Local Govt Assessed Value School Assessed Value
R0052301 105912005003 Residential 2026 1 448,751 28,050 31,640

Reception Rec Date Type Grantor Grantee Doc Fee Sale Date Sale Price
2802763 NA SUB SUBDIVISION COLONY POINTE 0.00 NA 0
4297824 04-28-2017 SWD LOT HOLDING INVESTMENTS LLC WINDMILLS LLC 5.75 04-27-2017 57,500
4297872 04-28-2017 SWD WINDMILLS LLC SEAY RANDEL CK; SEAY CYNTHIA R 32.16 04-27-2017 321,600



Account Parcel Account Type Tax Year Buildings Actual Value Local Govt Assessed Value School Assessed Value
R0052301 105912005003 Residential 2026 1 448,751 28,050 31,640

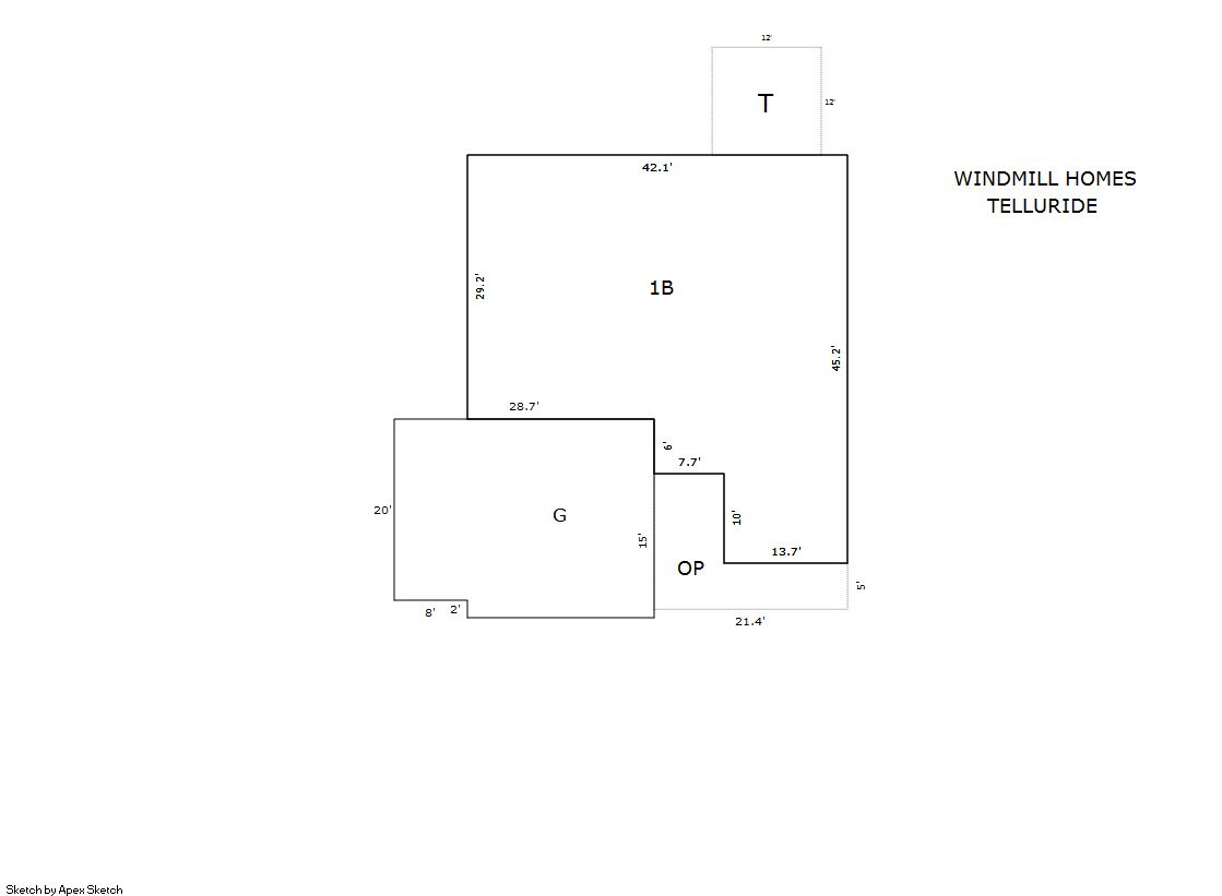
Building 1

AccountNo Building ID Occupancy
R0052301 1 Single Family Residential


ID Type NBHD Occupancy % Complete Bedrooms Baths
1 Residential 0M2074 Single Family Residential 100 3 2.00


ID Exterior Roof Cover Interior HVAC Perimeter Units Unit Type Make
1 Frame Siding Composition Shingle Drywall Central Air to Air 175 0 NA NA


ID Square Ft Condo SF Total Basement SF Finished Basement SF Garage SF Carport SF Balcony SF Porch SF
1 1,495 0 1,495 0 615 0 0 184


Built As Details for Building 1
ID Built As Square Ft Year Built Stories Length Width
1.00 Ranch 1 Story 1,495 2016 1 0 0


Additional Details for Building 1
ID Detail Type Description Units
1 Basement Total Basement SF 1495.00
1 Fixture Full Bath 1.00
1 Fixture Half Bath 1.00
1 Garage Attached 615.00
1 Porch Open Slab 144.00
1 Porch Slab Roof Ceil 184.00
1 Rough In Rough In 1.00





Account Parcel Account Type Tax Year Buildings Actual Value Local Govt Assessed Value School Assessed Value
R0052301 105912005003 Residential 2026 1 448,751 28,050 31,640

Type Code Description Actual Value Local Govt Assessed Value School Assessed Value Acres Land SqFt
Improvement 1212 SINGLE FAMILY RESIDENTIAL IMPROVEMENTS 354,751 22,170 25,010 0.000 0
Land 1112 SINGLE FAMILY RESIDENTIAL-LAND 94,000 5,880 6,630 0.152 6,600
Totals - - 448,751 28,050 31,640 0.152 6,600


Account Parcel Account Type Tax Year Buildings Actual Value Local Govt Assessed Value School Assessed Value
R0052301 105912005003 Residential 2026 1 448,751 28,050 31,640

Tax Area District ID District Name Local Govt
Mill Levy
School
Mill Levy
Estimated
Taxes
5730 0700 AIMS JUNIOR COLLEGE 6.313 0.000 $177.08
5730 0302 CENTRAL COLORADO WATER (CCW) 0.980 0.000 $27.49
5730 0309 CENTRAL COLORADO WATER SUBDISTRICT (CCS) 1.462 0.000 $41.01
5730 0510 FRONT RANGE FIRE RESCUE FIRE PROTECTION DISTRICT 11.483 0.000 $322.10
5730 1050 HIGH PLAINS LIBRARY 3.044 0.000 $85.38
5730 0306 LITTLE THOMPSON WATER (LTW) 0.000 0.000 $0.00
5730 0421 MILLIKEN TOWN 26.301 0.000 $737.74
5730 0301 NORTHERN COLORADO WATER (NCW) 1.000 0.000 $28.05
5730 0205 SCHOOL DIST RE5J-JOHNSTOWN 0.000 36.271 $1,147.61
5730 0901 THOMPSON RIVER REC 3.594 0.000 $100.81
5730 0100 WELD COUNTY 15.956 0.000 $447.57
5730 1200 WEST GREELEY CONSERVATION 0.414 0.000 $11.61
Total - - 70.547 36.271 $3,126.46


The estimate of tax is based on the prior year mill levy and the 2025 projected assessment rates. Mill levies and tax estimates will be updated yearly on December 22nd for the current year. Additional information can be found at https://assessor.weld.gov










Select Reports to Print: