Account: R0053301

April 2, 2026

Account Parcel Account Type Tax Year Buildings Actual Value Local Govt Assessed Value School Assessed Value
R0053301 105912005013 Residential 2026 1 444,987 27,820 31,370

Legal
MIL CP L13 BLK3 COLONY POINTE

Subdivision Block Lot Land Economic Area
COLONY POINTE SUB 3 13 COLONY POINTE

Property Address Property City Section Township Range
853 S TRAILDUST DR MILLIKEN 12 04 67




Account Parcel Account Type Tax Year Buildings Actual Value Local Govt Assessed Value School Assessed Value
R0053301 105912005013 Residential 2026 1 444,987 27,820 31,370

Account Owner Name Address
R0053301 ZAMARRON OCTAVIANO 853 TRAILDUST DR MILLIKEN, CO 805433038
R0053301 ZAMARRON DALIA K


Account Parcel Account Type Tax Year Buildings Actual Value Local Govt Assessed Value School Assessed Value
R0053301 105912005013 Residential 2026 1 444,987 27,820 31,370

Reception Rec Date Type Grantor Grantee Doc Fee Sale Date Sale Price
2802763 NA SUB SUBDIVISION COLONY POINTE 0.00 NA 0
4306126 05-31-2017 SWD LOT HOLDING INVESTMENTS LLC WINDMILLS LLC 5.75 05-26-2017 57,500
4306368 05-31-2017 SWD WINDMILLS LLC ZAMARRON OCTAVIANO; ZAMMARRON DALIA K 27.76 05-26-2017 277,600



Account Parcel Account Type Tax Year Buildings Actual Value Local Govt Assessed Value School Assessed Value
R0053301 105912005013 Residential 2026 1 444,987 27,820 31,370

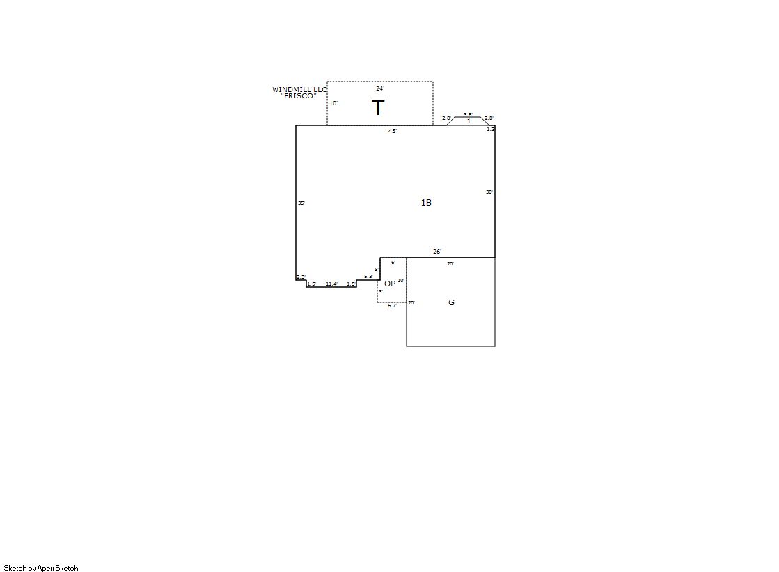
Building 1

AccountNo Building ID Occupancy
R0053301 1 Single Family Residential


ID Type NBHD Occupancy % Complete Bedrooms Baths
1 Residential 0M2074 Single Family Residential 100 3 2.00


ID Exterior Roof Cover Interior HVAC Perimeter Units Unit Type Make
1 Frame Siding Composition Shingle Drywall Central Air to Air 165 0 NA NA


ID Square Ft Condo SF Total Basement SF Finished Basement SF Garage SF Carport SF Balcony SF Porch SF
1 1,478 0 1,463 0 400 0 0 240


Built As Details for Building 1
ID Built As Square Ft Year Built Stories Length Width
1.00 Ranch 1 Story 1,478 2017 1 0 0


Additional Details for Building 1
ID Detail Type Description Units
1 Basement Total Basement SF 1463.00
1 Fixture Full Bath 2.00
1 Garage Attached 400.00
1 Porch Open Slab 240.00
1 Porch Slab Roof Ceil 63.00
1 Rough In Rough In 1.00





Account Parcel Account Type Tax Year Buildings Actual Value Local Govt Assessed Value School Assessed Value
R0053301 105912005013 Residential 2026 1 444,987 27,820 31,370

Type Code Description Actual Value Local Govt Assessed Value School Assessed Value Acres Land SqFt
Improvement 1212 SINGLE FAMILY RESIDENTIAL IMPROVEMENTS 350,987 21,940 24,740 0.000 0
Land 1112 SINGLE FAMILY RESIDENTIAL-LAND 94,000 5,880 6,630 0.152 6,600
Totals - - 444,987 27,820 31,370 0.152 6,600


Account Parcel Account Type Tax Year Buildings Actual Value Local Govt Assessed Value School Assessed Value
R0053301 105912005013 Residential 2026 1 444,987 27,820 31,370

Tax Area District ID District Name Local Govt
Mill Levy
School
Mill Levy
Estimated
Taxes
5730 0700 AIMS JUNIOR COLLEGE 6.313 0.000 $175.63
5730 0302 CENTRAL COLORADO WATER (CCW) 0.980 0.000 $27.26
5730 0309 CENTRAL COLORADO WATER SUBDISTRICT (CCS) 1.462 0.000 $40.67
5730 0510 FRONT RANGE FIRE RESCUE FIRE PROTECTION DISTRICT 11.483 0.000 $319.46
5730 1050 HIGH PLAINS LIBRARY 3.044 0.000 $84.68
5730 0306 LITTLE THOMPSON WATER (LTW) 0.000 0.000 $0.00
5730 0421 MILLIKEN TOWN 26.301 0.000 $731.69
5730 0301 NORTHERN COLORADO WATER (NCW) 1.000 0.000 $27.82
5730 0205 SCHOOL DIST RE5J-JOHNSTOWN 0.000 36.271 $1,137.82
5730 0901 THOMPSON RIVER REC 3.594 0.000 $99.99
5730 0100 WELD COUNTY 15.956 0.000 $443.90
5730 1200 WEST GREELEY CONSERVATION 0.414 0.000 $11.52
Total - - 70.547 36.271 $3,100.44


The estimate of tax is based on the prior year mill levy and the 2025 projected assessment rates. Mill levies and tax estimates will be updated yearly on December 22nd for the current year. Additional information can be found at https://assessor.weld.gov










Select Reports to Print: