Account: R0066195

April 5, 2026

Account Parcel Account Type Tax Year Buildings Actual Value Local Govt Assessed Value School Assessed Value
R0066195 003924000005 Agricultural 2026 3 165,179 12,350 13,590

Legal
5389-A SE4SE4 24 12 61 (1R)

Subdivision Block Lot Land Economic Area
NE ECON 7 RURAL

Property Address Property City Section Township Range
68107 COUNTY ROAD 97 WELD 24 12 61




Account Parcel Account Type Tax Year Buildings Actual Value Local Govt Assessed Value School Assessed Value
R0066195 003924000005 Agricultural 2026 3 165,179 12,350 13,590

Account Owner Name Address
R0066195 BCK HEATH PROPERTY LLC 989 HUMMOCKY WAY WINDSOR, CO 805503977


Account Parcel Account Type Tax Year Buildings Actual Value Local Govt Assessed Value School Assessed Value
R0066195 003924000005 Agricultural 2026 3 165,179 12,350 13,590

Reception Rec Date Type Grantor Grantee Doc Fee Sale Date Sale Price
04-11-1996 USR USE BY SPECIAL REVIEW USR-1101 ACCESSORY STRUCTURE 0.00 NA 0
161811 06-29-1962 DN 0.00 06-29-1962 0
2420750 12-29-1994 QCN JESSEN LEO WYOBRASKA INC MARTIN WILLIAM J & LESLIE 1.50 12-24-1994 15,000
3462301 03-15-2007 QCN MARTIN WILLIAM J & LESLIE MARTIN LESLIE R & 0.00 03-09-2007 0
3517193 11-13-2007 SWD MARTIN LESLIE R & BLACK FAMILY TRUST 9.50 11-07-2007 95,000
3735299 11-30-2010 BN BLACK ABRAHAM BLACK ABRAHAM 0.00 11-23-2010 0
3794993 09-27-2011 AGR BLACK FAMILY TRUST HILL WILLIAM R 0.00 09-27-2011 0
3794996 09-27-2011 WDN HILL WILLIAM R BLACK FAMILY TRUST 0.00 09-07-2011 0
3917308 03-15-2013 WDE BLACK FAMILY TRUST BCK HEATH PROPERTY LLC 6.50 03-14-2013 65,000



Account Parcel Account Type Tax Year Buildings Actual Value Local Govt Assessed Value School Assessed Value
R0066195 003924000005 Agricultural 2026 3 165,179 12,350 13,590

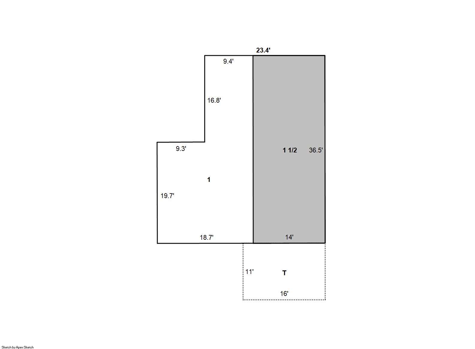
Building 1

AccountNo Building ID Occupancy
R0066195 1 Single Family Residential on Ag


ID Type NBHD Occupancy % Complete Bedrooms Baths
1 Residential 7R0001 Single Family Residential on Ag 100 1 1.00


ID Exterior Roof Cover Interior HVAC Perimeter Units Unit Type Make
1 Frame Vinyl Preformed Metal Drywall None 239 0 NA NA


ID Square Ft Condo SF Total Basement SF Finished Basement SF Garage SF Carport SF Balcony SF Porch SF
1 1,548 0 0 0 0 0 0 176


Built As Details for Building 1
ID Built As Square Ft Year Built Stories Length Width
1.00 1 1/2 Story Fin 1,548 1970 1 0 0


Additional Details for Building 1
ID Detail Type Description Units
1 Add On Flue Only 0.00
1 Fixture Full Bath 1.00
1 Porch Open Slab 176.00



Building 2

AccountNo Building ID Occupancy
R0066195 2 Utility Building


ID Type NBHD Occupancy % Complete Bedrooms Baths
2 Out Building NA Utility Building 100 0 0.00


ID Exterior Roof Cover Interior HVAC Perimeter Units Unit Type Make
2 NA NA NA None 176 0 NA NA


ID Square Ft Condo SF Total Basement SF Finished Basement SF Garage SF Carport SF Balcony SF Porch SF
2 1,740 0 0 0 0 0 0 0


Built As Details for Building 2
ID Built As Square Ft Year Built Stories Length Width
2.00 Utility Building 1,740 1960 1 58 30

No Additional Details for Building 2




Building 3

AccountNo Building ID Occupancy
R0066195 3 Utility Building


ID Type NBHD Occupancy % Complete Bedrooms Baths
3 Out Building NA Utility Building 100 0 0.00


ID Exterior Roof Cover Interior HVAC Perimeter Units Unit Type Make
3 NA NA NA None 94 0 NA NA


ID Square Ft Condo SF Total Basement SF Finished Basement SF Garage SF Carport SF Balcony SF Porch SF
3 552 0 0 0 0 0 0 0


Built As Details for Building 3
ID Built As Square Ft Year Built Stories Length Width
3.00 Utility Building 552 1960 1 24 23

No Additional Details for Building 3






Account Parcel Account Type Tax Year Buildings Actual Value Local Govt Assessed Value School Assessed Value
R0066195 003924000005 Agricultural 2026 3 165,179 12,350 13,590

Type Code Description Actual Value Local Govt Assessed Value School Assessed Value Acres Land SqFt
Improvement 4277 FARM/RANCH RESIDENCE-IMPS 155,441 9,720 10,960 0.000 0
Improvement 4279 FARM RANCH SUPPORT BLDGS 9,068 2,450 2,450 0.000 0
Land 4147 GRAZING LAND-AGRICULTURAL 670 180 180 39.895 1,737,826
Totals - - 165,179 12,350 13,590 39.895 1,737,826


Account Parcel Account Type Tax Year Buildings Actual Value Local Govt Assessed Value School Assessed Value
R0066195 003924000005 Agricultural 2026 3 165,179 12,350 13,590

Tax Area District ID District Name Local Govt
Mill Levy
School
Mill Levy
Estimated
Taxes
6314 0700 AIMS JUNIOR COLLEGE 6.313 0.000 $77.97
6314 1050 HIGH PLAINS LIBRARY 3.044 0.000 $37.59
6314 0522 PAWNEE FIRE 1.250 0.000 $15.44
6314 0212 SCHOOL DIST RE12-GROVER 0.000 4.898 $66.56
6314 0377 UPPER CROW CREEK GROUND WATER MANAGEMENT DISTRICT 1.876 0.000 $23.17
6314 0100 WELD COUNTY 15.956 0.000 $197.06
6314 1200 WEST GREELEY CONSERVATION 0.414 0.000 $5.11
Total - - 28.853 4.898 $422.90


The estimate of tax is based on the prior year mill levy and the 2025 projected assessment rates. Mill levies and tax estimates will be updated yearly on December 22nd for the current year. Additional information can be found at https://assessor.weld.gov










Select Reports to Print: