Account: R0069093
April 5, 2026
| Account | Parcel | Account Type | Tax Year | Buildings | Actual Value | Local Govt Assessed Value | School Assessed Value |
|---|---|---|---|---|---|---|---|
| R0069093 | 095903120031 | Residential | 2026 | 1 | 470,861 | 29,430 | 33,190 |
| Legal |
|---|
| GR 5WBW20-31 L31 BLK20 WEBER WEST 5TH REPLAT |
| Subdivision | Block | Lot | Land Economic Area |
|---|---|---|---|
| WEBER WEST 5TH RPLT | 20 | 31 | WEBER WEST |
| Property Address | Property City | Section | Township | Range |
|---|---|---|---|---|
| 319 49TH AVE | GREELEY | 03 | 05 | 66 |
| Account | Parcel | Account Type | Tax Year | Buildings | Actual Value | Local Govt Assessed Value | School Assessed Value |
|---|---|---|---|---|---|---|---|
| R0069093 | 095903120031 | Residential | 2026 | 1 | 470,861 | 29,430 | 33,190 |
| Account | Owner Name | Address |
|---|---|---|
| R0069093 | WOOD BRYAN JOHN | 319 49TH AVE GREELEY, CO 806344319 |
| R0069093 | WOOD CINDY SUE | |
| R0069093 | WOOD EDEN ALEXANDRIA | |
| R0069093 | WOOD NATHANIEL |
| Account | Parcel | Account Type | Tax Year | Buildings | Actual Value | Local Govt Assessed Value | School Assessed Value |
|---|---|---|---|---|---|---|---|
| R0069093 | 095903120031 | Residential | 2026 | 1 | 470,861 | 29,430 | 33,190 |
| Reception | Rec Date | Type | Grantor | Grantee | Doc Fee | Sale Date | Sale Price |
|---|---|---|---|---|---|---|---|
| 2280871 | NA | SUB | SUBDIVISION | WEBER WEST 5TH RPLT | 0.00 | NA | 0 |
| 2306448 | 10-08-1992 | WD | WEBER RICHARD D | CHAVEZ RONALD ROY | 1.70 | 10-07-1992 | 17,000 |
| 2620027 | 06-17-1998 | WD | CHAVEZ RONALD ROY | GRIGGS LOYD R & VELDA J | 16.98 | 06-15-1998 | 169,800 |
| 4617434 | 08-07-2020 | DTHC | GRIGGS LOYD R | GRIGGS VELDA J | 0.00 | 08-11-2018 | 0 |
| 4982395 | 09-13-2024 | WD | GRIGGS VELDA J | WOOD BRYAN JOHN; WOOD CINDY SUE; WOOD NATHANIEL; WOOD EDEN ALEXANDRIA | 50.00 | 09-13-2024 | 500,000 |
*If the hyperlink for the reception number does not work, try a manual search in the Clerk and Recorder records. Use the Grantor or Grantee in your search.
| Account | Parcel | Account Type | Tax Year | Buildings | Actual Value | Local Govt Assessed Value | School Assessed Value |
|---|---|---|---|---|---|---|---|
| R0069093 | 095903120031 | Residential | 2026 | 1 | 470,861 | 29,430 | 33,190 |
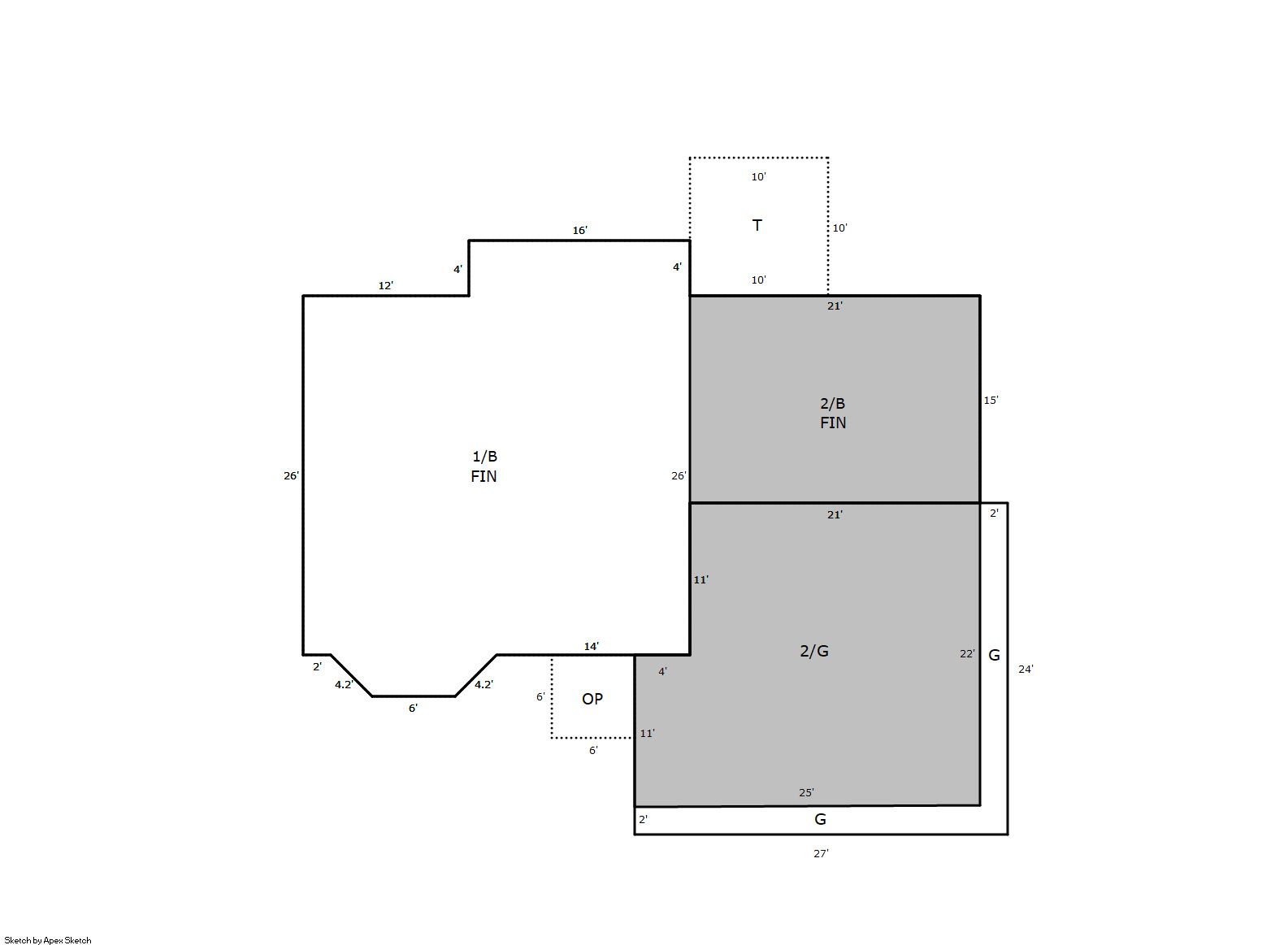
Building 1
| AccountNo | Building ID | Occupancy |
|---|---|---|
| R0069093 | 1 | Single Family Residential |
| ID | Type | NBHD | Occupancy | % Complete | Bedrooms | Baths |
|---|---|---|---|---|---|---|
| 1 | Residential | 2G3011 | Single Family Residential | 100 | 5 | 4.00 |
| ID | Exterior | Roof Cover | Interior | HVAC | Perimeter | Units | Unit Type | Make |
|---|---|---|---|---|---|---|---|---|
| 1 | Frame Hardboard | Composition Shingle | Drywall | Forced Air | 284 | 0 | NA | NA |
| ID | Square Ft | Condo SF | Total Basement SF | Finished Basement SF | Garage SF | Carport SF | Balcony SF | Porch SF |
|---|---|---|---|---|---|---|---|---|
| 1 | 1,953 | 0 | 1,134 | 1,134 | 604 | 0 | 0 | 100 |
| ID | Built As | Square Ft | Year Built | Stories | Length | Width |
|---|---|---|---|---|---|---|
| 1.00 | 2 Story | 1,953 | 1993 | 2 | 0 | 0 |
| ID | Detail Type | Description | Units |
|---|---|---|---|
| 1 | Add On | Fireplace Wood | 1.00 |
| 1 | Basement | Finished | 1134.00 |
| 1 | Basement | Total Basement SF | 1134.00 |
| 1 | Fixture | Full Bath | 3.00 |
| 1 | Fixture | Half Bath | 1.00 |
| 1 | Garage | Attached | 604.00 |
| 1 | Porch | Open Slab | 100.00 |
| 1 | Porch | Slab Roof Ceil | 36.00 |
| Account | Parcel | Account Type | Tax Year | Buildings | Actual Value | Local Govt Assessed Value | School Assessed Value |
|---|---|---|---|---|---|---|---|
| R0069093 | 095903120031 | Residential | 2026 | 1 | 470,861 | 29,430 | 33,190 |
| Type | Code | Description | Actual Value | Local Govt Assessed Value | School Assessed Value | Acres | Land SqFt |
|---|---|---|---|---|---|---|---|
| Improvement | 1212 | SINGLE FAMILY RESIDENTIAL IMPROVEMENTS | 385,861 | 24,120 | 27,200 | 0.000 | 0 |
| Land | 1112 | SINGLE FAMILY RESIDENTIAL-LAND | 85,000 | 5,310 | 5,990 | 0.189 | 8,238 |
| Totals | - | - | 470,861 | 29,430 | 33,190 | 0.189 | 8,238 |
Comparable sales for your Residential or Commercial property may be found using our SALES SEARCH TOOL
Values are updated annually on May 1st for Real Property and June 15th for Personal Property and Oil and Gas.
| Account | Parcel | Account Type | Tax Year | Buildings | Actual Value | Local Govt Assessed Value | School Assessed Value |
|---|---|---|---|---|---|---|---|
| R0069093 | 095903120031 | Residential | 2026 | 1 | 470,861 | 29,430 | 33,190 |
| Tax Area | District ID | District Name | Local Govt Mill Levy |
School Mill Levy |
Estimated Taxes |
|---|---|---|---|---|---|
| 0600 | 0700 | AIMS JUNIOR COLLEGE | 6.313 | 0.000 | $185.79 |
| 0600 | 0411 | GREELEY CITY | 11.274 | 0.000 | $331.79 |
| 0600 | 1050 | HIGH PLAINS LIBRARY | 3.044 | 0.000 | $89.58 |
| 0600 | 0301 | NORTHERN COLORADO WATER (NCW) | 1.000 | 0.000 | $29.43 |
| 0600 | 0206 | SCHOOL DIST 6-GREELEY | 0.000 | 47.615 | $1,580.34 |
| 0600 | 0100 | WELD COUNTY | 15.956 | 0.000 | $469.59 |
| Total | - | - | 37.587 | 47.615 | $2,686.53 |
The estimate of tax is based on the prior year mill levy and the 2025 projected assessment rates. Mill levies and tax estimates will be updated yearly on December 22nd for the current year. Additional information can be found at https://assessor.weld.gov


