Account: R0073190
April 4, 2026
| Account | Parcel | Account Type | Tax Year | Buildings | Actual Value | Local Govt Assessed Value | School Assessed Value |
|---|---|---|---|---|---|---|---|
| R0073190 | 095926328001 | Residential | 2026 | 1 | 394,700 | 24,670 | 27,830 |
| Legal |
|---|
| 3WHP9-1 L1 BLK9 MINOR CORRECTIONS TO RESUB OF WEST HILL-N-PARK 3RD FILING |
| Subdivision | Block | Lot | Land Economic Area |
|---|---|---|---|
| WEST HILL N PARK 3RD FG MINOR CORR RESUB | 9 | 1 | HILL N PARK |
| Property Address | Property City | Section | Township | Range |
|---|---|---|---|---|
| 4520 CASA GRANDE DR | WELD | 26 | 05 | 66 |
| Account | Parcel | Account Type | Tax Year | Buildings | Actual Value | Local Govt Assessed Value | School Assessed Value |
|---|---|---|---|---|---|---|---|
| R0073190 | 095926328001 | Residential | 2026 | 1 | 394,700 | 24,670 | 27,830 |
| Account | Owner Name | Address |
|---|---|---|
| R0073190 | HAMILTON RYAN | 4520 CASA GRANDE DR GREELEY, CO 806349253 |
| R0073190 | BUCHHOLTZ KAYLA |
| Account | Parcel | Account Type | Tax Year | Buildings | Actual Value | Local Govt Assessed Value | School Assessed Value |
|---|---|---|---|---|---|---|---|
| R0073190 | 095926328001 | Residential | 2026 | 1 | 394,700 | 24,670 | 27,830 |
| Reception | Rec Date | Type | Grantor | Grantee | Doc Fee | Sale Date | Sale Price |
|---|---|---|---|---|---|---|---|
| 02410200 | 10-10-1994 | WDN | 0.00 | 10-07-1994 | 0 | ||
| 1706661 | 12-22-1976 | COZ | WELD COUNTY ZONING | CASE: Z-167* ZONING R-5 | 0.00 | NA | 0 |
| 2199748 | NA | SUB | SUBDIVISION | WEST HILL N PARK 3RD FG | 0.00 | NA | 0 |
| 2410199 | 10-10-1994 | WD | BAESSLER CONSTRUCTION CO INC | GROSSNICKLE TRACY N & LAURA S | 9.64 | 10-07-1994 | 96,400 |
| 2521040 | 11-19-1996 | WD | GROSSNICKLE TRACY N & LAURA S | ANTHONY SCOTT A & ROBIN K | 9.95 | 11-15-1996 | 99,500 |
| 2685789 | 04-08-1999 | WD | ANTHONY SCOTT A & ROBIN K | WILLIAMSON JOHN F & CAROL RENE | 11.40 | 04-07-1999 | 114,000 |
| 3721357 | 09-28-2010 | WD | WILLIAMSON JOHN F | TOPORSKI HIRSCHKORN TAMMIE L | 11.00 | 09-23-2010 | 110,000 |
| 4237629 | 09-19-2016 | WD | TOPORSKI HIRSCHKORN TAMMIE L | TOPORSKI MUNCY TIMOTHY J ; POLLMAN HEIDI A | 13.00 | 09-19-2016 | 130,000 |
| 4638861 | 10-09-2020 | WD | TOPORSKI MUNCY TIMOTHY J ; POLLMAN HEIDI A | HAMILTON RYAN; BUCHHOLTZ KAYLA | 30.80 | 10-07-2020 | 308,000 |
*If the hyperlink for the reception number does not work, try a manual search in the Clerk and Recorder records. Use the Grantor or Grantee in your search.
| Account | Parcel | Account Type | Tax Year | Buildings | Actual Value | Local Govt Assessed Value | School Assessed Value |
|---|---|---|---|---|---|---|---|
| R0073190 | 095926328001 | Residential | 2026 | 1 | 394,700 | 24,670 | 27,830 |
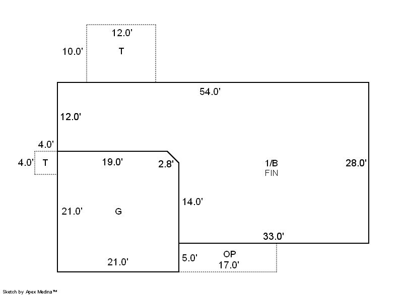
Building 1
| AccountNo | Building ID | Occupancy |
|---|---|---|
| R0073190 | 1 | Single Family Residential |
| ID | Type | NBHD | Occupancy | % Complete | Bedrooms | Baths |
|---|---|---|---|---|---|---|
| 1 | Residential | 2R0056 | Single Family Residential | 100 | 4 | 2.00 |
| ID | Exterior | Roof Cover | Interior | HVAC | Perimeter | Units | Unit Type | Make |
|---|---|---|---|---|---|---|---|---|
| 1 | Frame Hardboard | Composition Shingle | Drywall | Central Air to Air | 0 | 0 | NA | NA |
| ID | Square Ft | Condo SF | Total Basement SF | Finished Basement SF | Garage SF | Carport SF | Balcony SF | Porch SF |
|---|---|---|---|---|---|---|---|---|
| 1 | 1,178 | 0 | 1,178 | 1,178 | 439 | 0 | 0 | 85 |
| ID | Built As | Square Ft | Year Built | Stories | Length | Width |
|---|---|---|---|---|---|---|
| 1.00 | Ranch 1 Story | 1,178 | 1994 | 1 | 0 | 0 |
| ID | Detail Type | Description | Units |
|---|---|---|---|
| 1 | Basement | Finished | 1178.00 |
| 1 | Basement | Total Basement SF | 1178.00 |
| 1 | Fixture | Full Bath | 2.00 |
| 1 | Garage | Attached | 439.00 |
| 1 | Porch | Open Slab | 136.00 |
| 1 | Porch | Slab Roof Ceil | 85.00 |
| Account | Parcel | Account Type | Tax Year | Buildings | Actual Value | Local Govt Assessed Value | School Assessed Value |
|---|---|---|---|---|---|---|---|
| R0073190 | 095926328001 | Residential | 2026 | 1 | 394,700 | 24,670 | 27,830 |
| Type | Code | Description | Actual Value | Local Govt Assessed Value | School Assessed Value | Acres | Land SqFt |
|---|---|---|---|---|---|---|---|
| Improvement | 1212 | SINGLE FAMILY RESIDENTIAL IMPROVEMENTS | 314,700 | 19,670 | 22,190 | 0.000 | 0 |
| Land | 1112 | SINGLE FAMILY RESIDENTIAL-LAND | 80,000 | 5,000 | 5,640 | 0.165 | 7,200 |
| Totals | - | - | 394,700 | 24,670 | 27,830 | 0.165 | 7,200 |
Comparable sales for your Residential or Commercial property may be found using our SALES SEARCH TOOL
Values are updated annually on May 1st for Real Property and June 15th for Personal Property and Oil and Gas.
| Account | Parcel | Account Type | Tax Year | Buildings | Actual Value | Local Govt Assessed Value | School Assessed Value |
|---|---|---|---|---|---|---|---|
| R0073190 | 095926328001 | Residential | 2026 | 1 | 394,700 | 24,670 | 27,830 |
| Tax Area | District ID | District Name | Local Govt Mill Levy |
School Mill Levy |
Estimated Taxes |
|---|---|---|---|---|---|
| 5728 | 0700 | AIMS JUNIOR COLLEGE | 6.313 | 0.000 | $155.74 |
| 5728 | 0510 | FRONT RANGE FIRE RESCUE FIRE PROTECTION DISTRICT | 11.483 | 0.000 | $283.29 |
| 5728 | 1050 | HIGH PLAINS LIBRARY | 3.044 | 0.000 | $75.10 |
| 5728 | 0301 | NORTHERN COLORADO WATER (NCW) | 1.000 | 0.000 | $24.67 |
| 5728 | 0206 | SCHOOL DIST 6-GREELEY | 0.000 | 47.615 | $1,325.13 |
| 5728 | 0100 | WELD COUNTY | 15.956 | 0.000 | $393.63 |
| 5728 | 1200 | WEST GREELEY CONSERVATION | 0.414 | 0.000 | $10.21 |
| Total | - | - | 38.21 | 47.615 | $2,267.77 |
The estimate of tax is based on the prior year mill levy and the 2025 projected assessment rates. Mill levies and tax estimates will be updated yearly on December 22nd for the current year. Additional information can be found at https://assessor.weld.gov



