Account: R0081387

April 5, 2026

Account Parcel Account Type Tax Year Buildings Actual Value Local Govt Assessed Value School Assessed Value
R0081387 095915303009 Residential 2026 1 478,169 29,880 33,710

Legal
GR HW3-9 L9 BLK3 HIGHLAND PARK WEST

Subdivision Block Lot Land Economic Area
HIGHLAND PARK WEST 3 9 HIGHLAND PARK WEST

Property Address Property City Section Township Range
2519 53RD AVE GREELEY 15 05 66




Account Parcel Account Type Tax Year Buildings Actual Value Local Govt Assessed Value School Assessed Value
R0081387 095915303009 Residential 2026 1 478,169 29,880 33,710

Account Owner Name Address
R0081387 CAMPBELL MARION C 2519 53RD AVE GREELEY, CO 806344509
R0081387 GENOFF-CAMPBELL KAREN S


Account Parcel Account Type Tax Year Buildings Actual Value Local Govt Assessed Value School Assessed Value
R0081387 095915303009 Residential 2026 1 478,169 29,880 33,710

Reception Rec Date Type Grantor Grantee Doc Fee Sale Date Sale Price
1843933 NA SUB SUBDIVISION HIGHLAND PARK WEST 0.00 NA 0
2195064 10-19-1989 WD HIGHLAND PARK WEST INVESTMENT CAMPBELL MARION C & KAREN S GE 2.15 10-17-1989 21,500
3179232 05-11-2004 QCN CAMPBELL MARION C & KAREN S GENOFF CAMPBELL MARION C & 0.00 04-27-2004 0



Account Parcel Account Type Tax Year Buildings Actual Value Local Govt Assessed Value School Assessed Value
R0081387 095915303009 Residential 2026 1 478,169 29,880 33,710

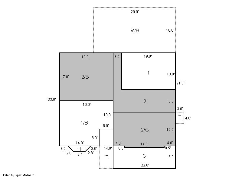
Building 1

AccountNo Building ID Occupancy
R0081387 1 Single Family Residential


ID Type NBHD Occupancy % Complete Bedrooms Baths
1 Residential 2G0005 Single Family Residential 100 3 3.00


ID Exterior Roof Cover Interior HVAC Perimeter Units Unit Type Make
1 Frame Siding Composition Shingle Drywall Hot Water Baseboard 0 0 NA NA


ID Square Ft Condo SF Total Basement SF Finished Basement SF Garage SF Carport SF Balcony SF Porch SF
1 1,880 0 597 0 440 0 464 82


Built As Details for Building 1
ID Built As Square Ft Year Built Stories Length Width
1.00 2 Story 1,880 1989 2 0 0


Additional Details for Building 1
ID Detail Type Description Units
1 Add On Shed Frame 384.00
1 Balcony Wood Wood Fin 464.00
1 Basement Total Basement SF 597.00
1 Fixture Full Bath 2.00
1 Fixture Half Bath 1.00
1 Garage Attached 440.00
1 Porch Open Slab 82.00





Account Parcel Account Type Tax Year Buildings Actual Value Local Govt Assessed Value School Assessed Value
R0081387 095915303009 Residential 2026 1 478,169 29,880 33,710

Type Code Description Actual Value Local Govt Assessed Value School Assessed Value Acres Land SqFt
Improvement 1212 SINGLE FAMILY RESIDENTIAL IMPROVEMENTS 353,169 22,070 24,900 0.000 0
Land 1112 SINGLE FAMILY RESIDENTIAL-LAND 125,000 7,810 8,810 0.485 21,122
Totals - - 478,169 29,880 33,710 0.485 21,122


Account Parcel Account Type Tax Year Buildings Actual Value Local Govt Assessed Value School Assessed Value
R0081387 095915303009 Residential 2026 1 478,169 29,880 33,710

Tax Area District ID District Name Local Govt
Mill Levy
School
Mill Levy
Estimated
Taxes
0600 0700 AIMS JUNIOR COLLEGE 6.313 0.000 $188.63
0600 0411 GREELEY CITY 11.274 0.000 $336.87
0600 1050 HIGH PLAINS LIBRARY 3.044 0.000 $90.95
0600 0301 NORTHERN COLORADO WATER (NCW) 1.000 0.000 $29.88
0600 0206 SCHOOL DIST 6-GREELEY 0.000 47.615 $1,605.10
0600 0100 WELD COUNTY 15.956 0.000 $476.77
Total - - 37.587 47.615 $2,728.20


The estimate of tax is based on the prior year mill levy and the 2025 projected assessment rates. Mill levies and tax estimates will be updated yearly on December 22nd for the current year. Additional information can be found at https://assessor.weld.gov










Select Reports to Print: