*If the hyperlink for the reception number does not work, try a manual search in the Clerk and Recorder records. Use the Grantor or Grantee in your search.
Account
Parcel
Account Type
Tax Year
Buildings
Actual Value
Local Govt Assessed Value
School Assessed Value
R0087988
131127000040
Agricultural
2026
9
578,740
156,270
156,270
Building 1
AccountNo
Building ID
Occupancy
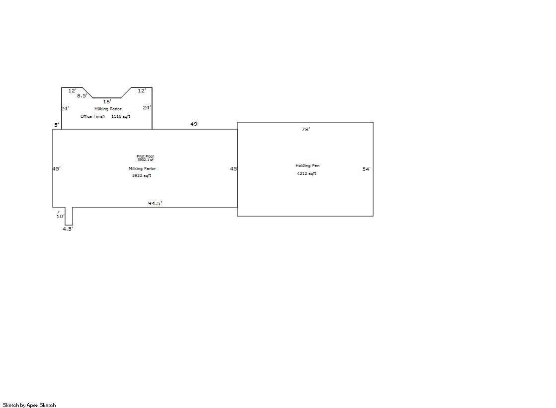
R0087988
1
Dairy Milking Parlor
ID
Type
NBHD
Occupancy
% Complete
Bedrooms
Baths
1
Out Building
4801
Dairy Milking Parlor
100
0
0.00
ID
Exterior
Roof Cover
Interior
HVAC
Perimeter
Units
Unit Type
Make
1
NA
NA
NA
Forced Air
375
0
NA
NA
ID
Square Ft
Condo SF
Total Basement SF
Finished Basement SF
Garage SF
Carport SF
Balcony SF
Porch SF
1
5,932
0
0
0
0
0
0
0
Built As Details for Building 1
ID
Built As
Square Ft
Year Built
Stories
Length
Width
1.00
Dairy Milking Parlor
5,932
2000
1
0
0
Additional Details for Building 1
ID
Detail Type
Description
Units
1
Add On
Finished Space in OutBldg
1116.00
1
Add On
Holding Pen Covered
4212.00
1
Add On
OB Truck Scales 40 tons
1.00
Building 2
AccountNo
Building ID
Occupancy
R0087988
2
Shed - Hay
ID
Type
NBHD
Occupancy
% Complete
Bedrooms
Baths
2
Out Building
4801
Shed - Hay
100
0
0.00
ID
Exterior
Roof Cover
Interior
HVAC
Perimeter
Units
Unit Type
Make
2
NA
NA
NA
None
NA
0
NA
NA
ID
Square Ft
Condo SF
Total Basement SF
Finished Basement SF
Garage SF
Carport SF
Balcony SF
Porch SF
2
6,000
0
0
0
0
0
0
0
Built As Details for Building 2
ID
Built As
Square Ft
Year Built
Stories
Length
Width
2.00
Shed - Hay
6,000
2000
1
120
50
No Additional Details for Building 2
Building 3
AccountNo
Building ID
Occupancy
R0087988
3
Shed - Hay
ID
Type
NBHD
Occupancy
% Complete
Bedrooms
Baths
3
Out Building
4801
Shed - Hay
100
0
0.00
ID
Exterior
Roof Cover
Interior
HVAC
Perimeter
Units
Unit Type
Make
3
NA
NA
NA
None
NA
0
NA
NA
ID
Square Ft
Condo SF
Total Basement SF
Finished Basement SF
Garage SF
Carport SF
Balcony SF
Porch SF
3
4,000
0
0
0
0
0
0
0
Built As Details for Building 3
ID
Built As
Square Ft
Year Built
Stories
Length
Width
3.00
Shed - Hay
4,000
2000
1
50
80
No Additional Details for Building 3
Building 4
AccountNo
Building ID
Occupancy
R0087988
4
Shed - Hay
ID
Type
NBHD
Occupancy
% Complete
Bedrooms
Baths
4
Out Building
4801
Shed - Hay
100
0
0.00
ID
Exterior
Roof Cover
Interior
HVAC
Perimeter
Units
Unit Type
Make
4
NA
NA
NA
None
NA
0
NA
NA
ID
Square Ft
Condo SF
Total Basement SF
Finished Basement SF
Garage SF
Carport SF
Balcony SF
Porch SF
4
5,000
0
0
0
0
0
0
0
Built As Details for Building 4
ID
Built As
Square Ft
Year Built
Stories
Length
Width
4.00
Shed - Hay
5,000
2000
1
50
100
No Additional Details for Building 4
Building 5
AccountNo
Building ID
Occupancy
R0087988
5
Commodity Storage Shed - Farm
ID
Type
NBHD
Occupancy
% Complete
Bedrooms
Baths
5
Out Building
4801
Commodity Storage Shed - Farm
100
0
0.00
ID
Exterior
Roof Cover
Interior
HVAC
Perimeter
Units
Unit Type
Make
5
NA
NA
NA
None
132
0
NA
NA
ID
Square Ft
Condo SF
Total Basement SF
Finished Basement SF
Garage SF
Carport SF
Balcony SF
Porch SF
5
2,080
0
0
0
0
0
0
0
Built As Details for Building 5
ID
Built As
Square Ft
Year Built
Stories
Length
Width
5.00
Commodity Storage Shed - Farm
2,080
2000
1
80
26
No Additional Details for Building 5
Building 6
AccountNo
Building ID
Occupancy
R0087988
6
Grain Handling System
ID
Type
NBHD
Occupancy
% Complete
Bedrooms
Baths
6
Out Building
4801
Grain Handling System
100
0
0.00
ID
Exterior
Roof Cover
Interior
HVAC
Perimeter
Units
Unit Type
Make
6
NA
NA
NA
None
NA
0
NA
NA
ID
Square Ft
Condo SF
Total Basement SF
Finished Basement SF
Garage SF
Carport SF
Balcony SF
Porch SF
6
2
0
0
0
0
0
0
0
Built As Details for Building 6
ID
Built As
Square Ft
Year Built
Stories
Length
Width
6.00
Grain Bin
1
2011
1
0
0
6.00
Grain Handling System
1
2011
1
0
0
No Additional Details for Building 6
Building 7
AccountNo
Building ID
Occupancy
R0087988
7
Equipment Building
ID
Type
NBHD
Occupancy
% Complete
Bedrooms
Baths
7
Out Building
4801
Equipment Building
100
0
0.00
ID
Exterior
Roof Cover
Interior
HVAC
Perimeter
Units
Unit Type
Make
7
NA
NA
NA
None
300
0
NA
NA
ID
Square Ft
Condo SF
Total Basement SF
Finished Basement SF
Garage SF
Carport SF
Balcony SF
Porch SF
7
7,600
0
0
0
0
0
0
0
Built As Details for Building 7
ID
Built As
Square Ft
Year Built
Stories
Length
Width
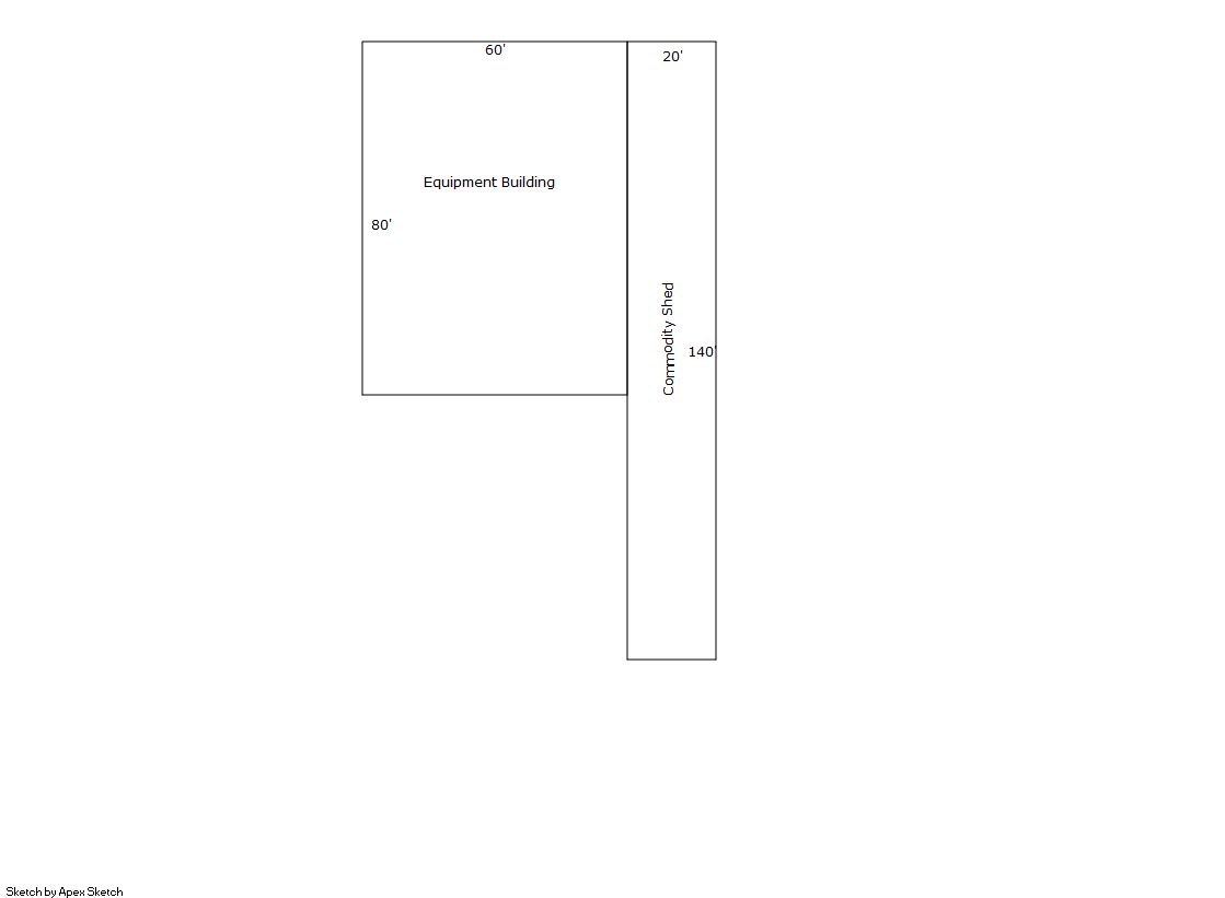
7.00
Equipment Building
4,800
1992
1
80
60
7.00
Commodity Storage Shed - Farm
2,800
1997
1
140
20
No Additional Details for Building 7
Building 8
AccountNo
Building ID
Occupancy
R0087988
8
Shed - Cattle
ID
Type
NBHD
Occupancy
% Complete
Bedrooms
Baths
8
Out Building
4801
Shed - Cattle
100
0
0.00
ID
Exterior
Roof Cover
Interior
HVAC
Perimeter
Units
Unit Type
Make
8
NA
NA
NA
None
108
0
NA
NA
ID
Square Ft
Condo SF
Total Basement SF
Finished Basement SF
Garage SF
Carport SF
Balcony SF
Porch SF
8
1,360
0
0
0
0
0
0
0
Built As Details for Building 8
ID
Built As
Square Ft
Year Built
Stories
Length
Width
8.00
Shed - Cattle
1,360
2008
1
40
34
No Additional Details for Building 8
Building 9
AccountNo
Building ID
Occupancy
R0087988
9
Utility Building
ID
Type
NBHD
Occupancy
% Complete
Bedrooms
Baths
9
Out Building
4801
Utility Building
100
0
0.00
ID
Exterior
Roof Cover
Interior
HVAC
Perimeter
Units
Unit Type
Make
9
NA
NA
NA
None
112
0
NA
NA
ID
Square Ft
Condo SF
Total Basement SF
Finished Basement SF
Garage SF
Carport SF
Balcony SF
Porch SF
9
765
0
0
0
0
0
0
0
Built As Details for Building 9
ID
Built As
Square Ft
Year Built
Stories
Length
Width
9.00
Utility Building
765
1998
1
30
26
No Additional Details for Building 9
Account
Parcel
Account Type
Tax Year
Buildings
Actual Value
Local Govt Assessed Value
School Assessed Value
R0087988
131127000040
Agricultural
2026
9
578,740
156,270
156,270
Type
Code
Description
Actual Value
Local Govt Assessed Value
School Assessed Value
Acres
Land SqFt
Improvement
4279
FARM RANCH SUPPORT BLDGS
132,719
35,830
35,830
0.000
0
Improvement
4280
ALL OTHER AG IMPS
417,205
112,650
112,650
0.000
0
Land
4127
DRY FARM LAND-AGRICULTURAL
2,250
610
610
17.000
740,520
Land
4167
WASTE LAND
66
20
20
10.000
435,600
Land
4180
ALL OTHER AGRICULTURAL LAND
26,500
7,160
7,160
53.000
2,308,680
Totals
-
-
578,740
156,270
156,270
80.000
3,484,800
Comparable sales for your Residential or Commercial property may be found using our SALES SEARCH TOOL
Values are updated annually on May 1st for Real Property and June 15th for Personal Property and Oil and Gas.
Account
Parcel
Account Type
Tax Year
Buildings
Actual Value
Local Govt Assessed Value
School Assessed Value
R0087988
131127000040
Agricultural
2026
9
578,740
156,270
156,270
Tax Area
District ID
District Name
Local Govt Mill Levy
School Mill Levy
Estimated Taxes
2281
0700
AIMS JUNIOR COLLEGE
6.313
0.000
$986.53
2281
0305
CENTRAL WELD COUNTY WATER (CWC)
0.000
0.000
$0.00
2281
0506
FORT LUPTON FIRE
9.357
0.000
$1,462.22
2281
1050
HIGH PLAINS LIBRARY
3.044
0.000
$475.69
2281
1202
LONGMONT CONSERVATION
0.000
0.000
$0.00
2281
0301
NORTHERN COLORADO WATER (NCW)
1.000
0.000
$156.27
2281
0208
SCHOOL DIST RE8-FORT LUPTON AND DACONO
0.000
18.198
$2,843.80
2281
0100
WELD COUNTY
15.956
0.000
$2,493.44
Total
-
-
35.67
18.198
$8,417.95
The estimate of tax is based on the prior year mill levy and the 2025 projected assessment rates. Mill levies and tax estimates will be updated yearly on December 22nd for the current year. Additional information can be found at https://assessor.weld.gov