Account: R0088901
April 1, 2026
| Account | Parcel | Account Type | Tax Year | Buildings | Actual Value | Local Govt Assessed Value | School Assessed Value |
|---|---|---|---|---|---|---|---|
| R0088901 | 105914005010 | Residential | 2026 | 1 | 455,062 | 28,450 | 32,080 |
| Legal |
|---|
| MIL CF L10 BLK5 CENTENNIAL FARMS |
| Subdivision | Block | Lot | Land Economic Area |
|---|---|---|---|
| CENTENNIAL FARMS SUB | 5 | 10 | CENTENNIAL FARM |
| Property Address | Property City | Section | Township | Range |
|---|---|---|---|---|
| 951 E FAIRACRES LN | MILLIKEN | 14 | 04 | 67 |
| Account | Parcel | Account Type | Tax Year | Buildings | Actual Value | Local Govt Assessed Value | School Assessed Value |
|---|---|---|---|---|---|---|---|
| R0088901 | 105914005010 | Residential | 2026 | 1 | 455,062 | 28,450 | 32,080 |
| Account | Owner Name | Address |
|---|---|---|
| R0088901 | PAVLAK JENNIFER | 951 FAIRACRES LN MILLIKEN, CO 805438491 |
| R0088901 | PAVLAK BLAKE |
| Account | Parcel | Account Type | Tax Year | Buildings | Actual Value | Local Govt Assessed Value | School Assessed Value |
|---|---|---|---|---|---|---|---|
| R0088901 | 105914005010 | Residential | 2026 | 1 | 455,062 | 28,450 | 32,080 |
| Reception | Rec Date | Type | Grantor | Grantee | Doc Fee | Sale Date | Sale Price |
|---|---|---|---|---|---|---|---|
| 2802764 | NA | SUB | SUBDIVISION | CENTENNIAL FARMS | 0.00 | NA | 0 |
| 2832454 | 03-15-2001 | SWD | LOT HOLDING INVESTMENTS LLC | MACK GERALD ENTERPRISES LLC | 139.94 | 03-12-2001 | 1,399,400 |
| 2906850 | 12-07-2001 | WD | MACK GERALD ENTERPRISES LLC | J & J CONSTRUCTION OF NORTHERN COLO LLC | 59.52 | 12-07-2001 | 595,200 |
| 3009492 | 11-27-2002 | WD | J & J CONSTRUCTION OF NORTHERN COLO LLC | OBERG ROBERT A & | 18.12 | 11-22-2002 | 181,200 |
| 3515039 | 11-02-2007 | WDN | OBERG ROBERT A & | MARQUEZ RAMON A | 0.00 | 03-02-2007 | 0 |
| 3811576 | 12-13-2011 | PTD | MARQUEZ RAMON A | TAYLOR BEAN & WHITAKER MORTGAGE CORP | 0.00 | 12-12-2011 | 0 |
| 3843314 | 05-04-2012 | SWDN | BANK AMERICA N A | USA HUD | 0.00 | 04-26-2012 | 0 |
| 3865675 | 08-13-2012 | SWD | SECRETARY OF HOUSING AND URBAN DEV | HORNER JOSHUA | 0.00 | 08-10-2012 | 148,000 |
| 4519526 | 09-03-2019 | WD | HORNER JOSHUA | YOUNG JASON; ZAPPONE ASHLEY | 30.00 | 08-29-2019 | 300,000 |
| 4727853 | 06-21-2021 | SWD | YOUNG JASON; ZAPPONE ASHLEY | PAVLAK JENNIFER; PAVLAK BLAKE | 42.00 | 06-17-2021 | 420,000 |
*If the hyperlink for the reception number does not work, try a manual search in the Clerk and Recorder records. Use the Grantor or Grantee in your search.
| Account | Parcel | Account Type | Tax Year | Buildings | Actual Value | Local Govt Assessed Value | School Assessed Value |
|---|---|---|---|---|---|---|---|
| R0088901 | 105914005010 | Residential | 2026 | 1 | 455,062 | 28,450 | 32,080 |
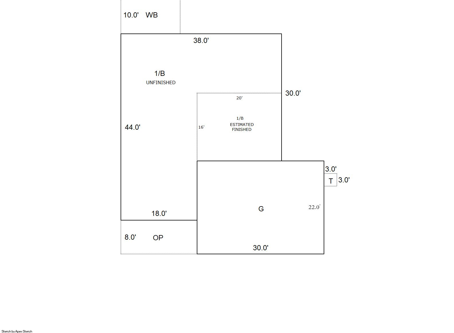
Building 1
| AccountNo | Building ID | Occupancy |
|---|---|---|
| R0088901 | 1 | Single Family Residential |
| ID | Type | NBHD | Occupancy | % Complete | Bedrooms | Baths |
|---|---|---|---|---|---|---|
| 1 | Residential | 0M2071 | Single Family Residential | 100 | 3 | 2.00 |
| ID | Exterior | Roof Cover | Interior | HVAC | Perimeter | Units | Unit Type | Make |
|---|---|---|---|---|---|---|---|---|
| 1 | Frame Hardboard | Composition Shingle | Drywall | Central Air to Air | 164 | 0 | NA | NA |
| ID | Square Ft | Condo SF | Total Basement SF | Finished Basement SF | Garage SF | Carport SF | Balcony SF | Porch SF |
|---|---|---|---|---|---|---|---|---|
| 1 | 1,392 | 0 | 1,392 | 320 | 660 | 0 | 140 | 144 |
| ID | Built As | Square Ft | Year Built | Stories | Length | Width |
|---|---|---|---|---|---|---|
| 1.00 | Ranch 1 Story | 1,392 | 2002 | 1 | 0 | 0 |
| ID | Detail Type | Description | Units |
|---|---|---|---|
| 1 | Balcony | Wood Wood Fin | 140.00 |
| 1 | Basement | Finished | 320.00 |
| 1 | Basement | Total Basement SF | 1392.00 |
| 1 | Fixture | Full Bath | 2.00 |
| 1 | Garage | Attached | 660.00 |
| 1 | Porch | Open Slab | 9.00 |
| 1 | Porch | Slab Roof Ceil | 144.00 |
| 1 | Rough In | Rough In | 1.00 |
| Account | Parcel | Account Type | Tax Year | Buildings | Actual Value | Local Govt Assessed Value | School Assessed Value |
|---|---|---|---|---|---|---|---|
| R0088901 | 105914005010 | Residential | 2026 | 1 | 455,062 | 28,450 | 32,080 |
| Type | Code | Description | Actual Value | Local Govt Assessed Value | School Assessed Value | Acres | Land SqFt |
|---|---|---|---|---|---|---|---|
| Improvement | 1212 | SINGLE FAMILY RESIDENTIAL IMPROVEMENTS | 361,062 | 22,570 | 25,450 | 0.000 | 0 |
| Land | 1112 | SINGLE FAMILY RESIDENTIAL-LAND | 94,000 | 5,880 | 6,630 | 0.164 | 7,150 |
| Totals | - | - | 455,062 | 28,450 | 32,080 | 0.164 | 7,150 |
Comparable sales for your Residential or Commercial property may be found using our SALES SEARCH TOOL
Values are updated annually on May 1st for Real Property and June 15th for Personal Property and Oil and Gas.
| Account | Parcel | Account Type | Tax Year | Buildings | Actual Value | Local Govt Assessed Value | School Assessed Value |
|---|---|---|---|---|---|---|---|
| R0088901 | 105914005010 | Residential | 2026 | 1 | 455,062 | 28,450 | 32,080 |
| Tax Area | District ID | District Name | Local Govt Mill Levy |
School Mill Levy |
Estimated Taxes |
|---|---|---|---|---|---|
| 5730 | 0700 | AIMS JUNIOR COLLEGE | 6.313 | 0.000 | $179.60 |
| 5730 | 0302 | CENTRAL COLORADO WATER (CCW) | 0.980 | 0.000 | $27.88 |
| 5730 | 0309 | CENTRAL COLORADO WATER SUBDISTRICT (CCS) | 1.462 | 0.000 | $41.59 |
| 5730 | 0510 | FRONT RANGE FIRE RESCUE FIRE PROTECTION DISTRICT | 11.483 | 0.000 | $326.69 |
| 5730 | 1050 | HIGH PLAINS LIBRARY | 3.044 | 0.000 | $86.60 |
| 5730 | 0306 | LITTLE THOMPSON WATER (LTW) | 0.000 | 0.000 | $0.00 |
| 5730 | 0421 | MILLIKEN TOWN | 26.301 | 0.000 | $748.26 |
| 5730 | 0301 | NORTHERN COLORADO WATER (NCW) | 1.000 | 0.000 | $28.45 |
| 5730 | 0205 | SCHOOL DIST RE5J-JOHNSTOWN | 0.000 | 36.271 | $1,163.57 |
| 5730 | 0901 | THOMPSON RIVER REC | 3.594 | 0.000 | $102.25 |
| 5730 | 0100 | WELD COUNTY | 15.956 | 0.000 | $453.95 |
| 5730 | 1200 | WEST GREELEY CONSERVATION | 0.414 | 0.000 | $11.78 |
| Total | - | - | 70.547 | 36.271 | $3,170.64 |
The estimate of tax is based on the prior year mill levy and the 2025 projected assessment rates. Mill levies and tax estimates will be updated yearly on December 22nd for the current year. Additional information can be found at https://assessor.weld.gov


