Account: R0090187
April 4, 2026
| Account | Parcel | Account Type | Tax Year | Buildings | Actual Value | Local Govt Assessed Value | School Assessed Value |
|---|---|---|---|---|---|---|---|
| R0090187 | 095913331010 | Exempt | 2026 | 1 | 1,030,200 | 278,150 | 278,150 |
| Legal |
|---|
| GR 3WL-TB1 W165' TR B WEST LAKE PARK 3RD FILING |
| Subdivision | Block | Lot | Land Economic Area |
|---|---|---|---|
| WEST LAKE PARK 3RD FG | GREELEY 23RD AVE (26 TO 32ND ST) W TO 28TH AVE COM |
| Property Address | Property City | Section | Township | Range |
|---|---|---|---|---|
| 3209 W 28TH ST | GREELEY | 13 | 05 | 66 |
| Account | Parcel | Account Type | Tax Year | Buildings | Actual Value | Local Govt Assessed Value | School Assessed Value |
|---|---|---|---|---|---|---|---|
| R0090187 | 095913331010 | Exempt | 2026 | 1 | 1,030,200 | 278,150 | 278,150 |
| Account | Owner Name | Address |
|---|---|---|
| R0090187 | CENTRAL COLO WATER CONSERVANCY DIST | 3209 W 28TH ST GREELEY, CO 806347554 |
| R0090187 | GROUND WATER MGM'T SUB DIST | , |
| Account | Parcel | Account Type | Tax Year | Buildings | Actual Value | Local Govt Assessed Value | School Assessed Value |
|---|---|---|---|---|---|---|---|
| R0090187 | 095913331010 | Exempt | 2026 | 1 | 1,030,200 | 278,150 | 278,150 |
| Reception | Rec Date | Type | Grantor | Grantee | Doc Fee | Sale Date | Sale Price |
|---|---|---|---|---|---|---|---|
| 1719739 | NA | SUB | SUBDIVISION | WEST LAKE PARK 3RD FG | 0.00 | NA | 0 |
| 2074124 | 10-21-1986 | WD | STODDARD PAUL M & VIRGINIA B | CENTRAL COLORADO WATER CONS DI | 4.55 | 10-20-1986 | 45,500 |
*If the hyperlink for the reception number does not work, try a manual search in the Clerk and Recorder records. Use the Grantor or Grantee in your search.
| Account | Parcel | Account Type | Tax Year | Buildings | Actual Value | Local Govt Assessed Value | School Assessed Value |
|---|---|---|---|---|---|---|---|
| R0090187 | 095913331010 | Exempt | 2026 | 1 | 1,030,200 | 278,150 | 278,150 |
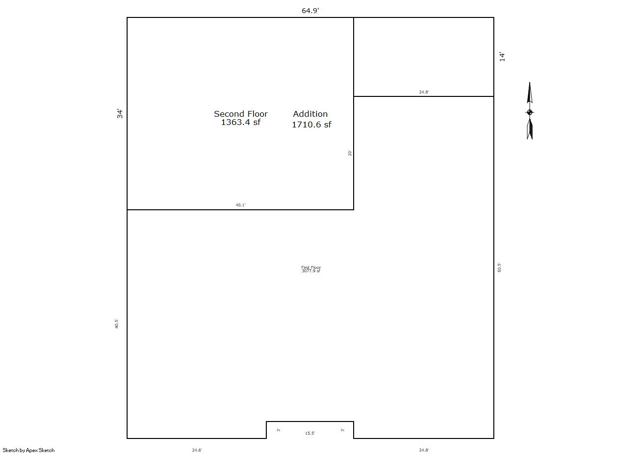
Building 1
| AccountNo | Building ID | Occupancy |
|---|---|---|
| R0090187 | 1 | Office Building |
| ID | Type | NBHD | Occupancy | % Complete | Bedrooms | Baths |
|---|---|---|---|---|---|---|
| 1 | Commercial | 6923 | Office Building | 100 | 0 | 0.00 |
| ID | Exterior | Roof Cover | Interior | HVAC | Perimeter | Units | Unit Type | Make |
|---|---|---|---|---|---|---|---|---|
| 1 | NA | NA | NA | Package Unit | NA | 0 | NA | NA |
| ID | Square Ft | Condo SF | Total Basement SF | Finished Basement SF | Garage SF | Carport SF | Balcony SF | Porch SF |
|---|---|---|---|---|---|---|---|---|
| 1 | 5,151 | 0 | 0 | 0 | 0 | 0 | 0 | 0 |
| ID | Built As | Square Ft | Year Built | Stories | Length | Width |
|---|---|---|---|---|---|---|
| 1.00 | Office Building | 3,077 | 1986 | 1 | 0 | 0 |
| 1.00 | Office Building | 2,074 | 1998 | 2 | 0 | 0 |
| ID | Detail Type | Description | Units |
|---|---|---|---|
| 1 | Add On | Asphalt Average | 10000.00 |
| 1 | Add On | Concrete Slab Average | 2000.00 |
| Account | Parcel | Account Type | Tax Year | Buildings | Actual Value | Local Govt Assessed Value | School Assessed Value |
|---|---|---|---|---|---|---|---|
| R0090187 | 095913331010 | Exempt | 2026 | 1 | 1,030,200 | 278,150 | 278,150 |
| Type | Code | Description | Actual Value | Local Govt Assessed Value | School Assessed Value | Acres | Land SqFt |
|---|---|---|---|---|---|---|---|
| Improvement | 9249 | EXEMPT-POLITICAL NON RESIDENTIAL IMPS | 657,528 | 177,530 | 177,530 | 0.000 | 0 |
| Land | 9149 | EXEMPT-POLITICAL NON RESIDENTIAL LAND | 372,672 | 100,620 | 100,620 | 0.713 | 31,056 |
| Totals | - | - | 1,030,200 | 278,150 | 278,150 | 0.713 | 31,056 |
Comparable sales for your Residential or Commercial property may be found using our SALES SEARCH TOOL
Values are updated annually on May 1st for Real Property and June 15th for Personal Property and Oil and Gas.
| Account | Parcel | Account Type | Tax Year | Buildings | Actual Value | Local Govt Assessed Value | School Assessed Value |
|---|---|---|---|---|---|---|---|
| R0090187 | 095913331010 | Exempt | 2026 | 1 | 1,030,200 | 278,150 | 278,150 |
| Tax Area | District ID | District Name | Local Govt Mill Levy |
School Mill Levy |
Estimated Taxes |
|---|---|---|---|---|---|
| 0600 | 0700 | AIMS JUNIOR COLLEGE | 6.313 | 0.000 | $1,755.96 |
| 0600 | 0411 | GREELEY CITY | 11.274 | 0.000 | $3,135.86 |
| 0600 | 1050 | HIGH PLAINS LIBRARY | 3.044 | 0.000 | $846.69 |
| 0600 | 0301 | NORTHERN COLORADO WATER (NCW) | 1.000 | 0.000 | $278.15 |
| 0600 | 0206 | SCHOOL DIST 6-GREELEY | 0.000 | 47.615 | $13,244.11 |
| 0600 | 0100 | WELD COUNTY | 15.956 | 0.000 | $4,438.16 |
| Total | - | - | 37.587 | 47.615 | $23,698.94 |
The estimate of tax is based on the prior year mill levy and the 2025 projected assessment rates. Mill levies and tax estimates will be updated yearly on December 22nd for the current year. Additional information can be found at https://assessor.weld.gov


