Account: R0096401

April 1, 2026

Account Parcel Account Type Tax Year Buildings Actual Value Local Govt Assessed Value School Assessed Value
R0096401 105914010006 Residential 2026 1 409,707 25,610 28,890

Legal
MIL CF L6 BLK10 CENTENNIAL FARMS

Subdivision Block Lot Land Economic Area
CENTENNIAL FARMS SUB 10 6 CENTENNIAL FARM

Property Address Property City Section Township Range
1291 S DAWN DR MILLIKEN 14 04 67




Account Parcel Account Type Tax Year Buildings Actual Value Local Govt Assessed Value School Assessed Value
R0096401 105914010006 Residential 2026 1 409,707 25,610 28,890

Account Owner Name Address
R0096401 AGUAYO FREDDIE 1291 S DAWN DR MILLIKEN, CO 805438443
R0096401 MATHEW ANNA R


Account Parcel Account Type Tax Year Buildings Actual Value Local Govt Assessed Value School Assessed Value
R0096401 105914010006 Residential 2026 1 409,707 25,610 28,890

Reception Rec Date Type Grantor Grantee Doc Fee Sale Date Sale Price
2802764 NA SUB SUBDIVISION CENTENNIAL FARMS 0.00 NA 0
2933195 03-14-2002 SWD LOT HOLDING INVESTMENTS LLC RON EHRLICH REAL ESTATE LLC 270.58 03-12-2002 2,705,800
3030986 02-07-2003 WD RON EHRLICH REAL ESTATE LLC P & E LLC 14.07 02-05-2003 140,700
3071609 06-11-2003 QCN P & E LLC EHRLICH RONALD O 0.00 06-10-2003 0
3240820 12-03-2004 WD EHRLICH RON DECKER RICHARD 18.20 11-24-2004 182,000
4214129 06-24-2016 QCN DECKER RICHARD DECKER RICHARD T TRUST; KIBE-DECKER MARGARET HARUMI TRUST 0.00 06-20-2016 0
4612419 07-24-2020 SWD KIBE-DECKER MARGARET HARUMI TRUST; DECKER RICHARD T TRUST MATHEW JOHN R; MATHEW ANNA R 30.50 07-08-2020 305,000
4883928 02-28-2023 SWD MATHEW JOHN R; MATHEW ANNA R AGUAYO FREDDIE; MATHEW ANNA R 41.00 02-27-2023 410,000



Account Parcel Account Type Tax Year Buildings Actual Value Local Govt Assessed Value School Assessed Value
R0096401 105914010006 Residential 2026 1 409,707 25,610 28,890

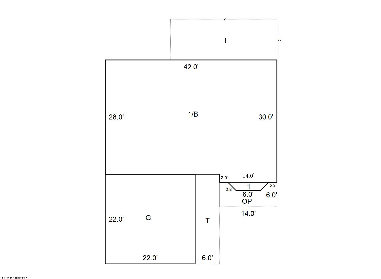
Building 1

AccountNo Building ID Occupancy
R0096401 1 Single Family Residential


ID Type NBHD Occupancy % Complete Bedrooms Baths
1 Residential 0M2071 Single Family Residential 100 3 2.00


ID Exterior Roof Cover Interior HVAC Perimeter Units Unit Type Make
1 Frame Hardboard Composition Shingle Drywall Forced Air 146 0 NA NA


ID Square Ft Condo SF Total Basement SF Finished Basement SF Garage SF Carport SF Balcony SF Porch SF
1 1,220 0 1,204 0 484 0 0 68


Built As Details for Building 1
ID Built As Square Ft Year Built Stories Length Width
1.00 Ranch 1 Story 1,220 2002 1 0 0


Additional Details for Building 1
ID Detail Type Description Units
1 Basement Total Basement SF 1204.00
1 Fixture Full Bath 2.00
1 Garage Attached 484.00
1 Porch Open Slab 392.00
1 Porch Slab Roof Ceil 68.00
1 Rough In Rough In 1.00





Account Parcel Account Type Tax Year Buildings Actual Value Local Govt Assessed Value School Assessed Value
R0096401 105914010006 Residential 2026 1 409,707 25,610 28,890

Type Code Description Actual Value Local Govt Assessed Value School Assessed Value Acres Land SqFt
Improvement 1212 SINGLE FAMILY RESIDENTIAL IMPROVEMENTS 315,707 19,730 22,260 0.000 0
Land 1112 SINGLE FAMILY RESIDENTIAL-LAND 94,000 5,880 6,630 0.168 7,313
Totals - - 409,707 25,610 28,890 0.168 7,313


Account Parcel Account Type Tax Year Buildings Actual Value Local Govt Assessed Value School Assessed Value
R0096401 105914010006 Residential 2026 1 409,707 25,610 28,890

Tax Area District ID District Name Local Govt
Mill Levy
School
Mill Levy
Estimated
Taxes
5730 0700 AIMS JUNIOR COLLEGE 6.313 0.000 $161.68
5730 0302 CENTRAL COLORADO WATER (CCW) 0.980 0.000 $25.10
5730 0309 CENTRAL COLORADO WATER SUBDISTRICT (CCS) 1.462 0.000 $37.44
5730 0510 FRONT RANGE FIRE RESCUE FIRE PROTECTION DISTRICT 11.483 0.000 $294.08
5730 1050 HIGH PLAINS LIBRARY 3.044 0.000 $77.96
5730 0306 LITTLE THOMPSON WATER (LTW) 0.000 0.000 $0.00
5730 0421 MILLIKEN TOWN 26.301 0.000 $673.57
5730 0301 NORTHERN COLORADO WATER (NCW) 1.000 0.000 $25.61
5730 0205 SCHOOL DIST RE5J-JOHNSTOWN 0.000 36.271 $1,047.87
5730 0901 THOMPSON RIVER REC 3.594 0.000 $92.04
5730 0100 WELD COUNTY 15.956 0.000 $408.63
5730 1200 WEST GREELEY CONSERVATION 0.414 0.000 $10.60
Total - - 70.547 36.271 $2,854.58


The estimate of tax is based on the prior year mill levy and the 2025 projected assessment rates. Mill levies and tax estimates will be updated yearly on December 22nd for the current year. Additional information can be found at https://assessor.weld.gov










Select Reports to Print: