Account: R0098788

April 5, 2026

Account Parcel Account Type Tax Year Buildings Actual Value Local Govt Assessed Value School Assessed Value
R0098788 147106415005 Residential 2026 1 412,384 25,780 29,080

Legal
FTL WLA-5 L5 WEST LAKE ADDITION PUD

Subdivision Block Lot Land Economic Area
WEST LAKE ADD PUD 5 FORT LUPTON SOUTH

Property Address Property City Section Township Range
255 W HILL CT FORT LUPTON 06 01 66




Account Parcel Account Type Tax Year Buildings Actual Value Local Govt Assessed Value School Assessed Value
R0098788 147106415005 Residential 2026 1 412,384 25,780 29,080

Account Owner Name Address
R0098788 CROW DAVID H PO BOX 344 FORT LUPTON, CO 806210344
R0098788 KENNEDY KAREN D


Account Parcel Account Type Tax Year Buildings Actual Value Local Govt Assessed Value School Assessed Value
R0098788 147106415005 Residential 2026 1 412,384 25,780 29,080

Reception Rec Date Type Grantor Grantee Doc Fee Sale Date Sale Price
02113064 09-02-1987 WDN 0.00 01-01-1900 0
02209383 03-30-1990 QCN 0.00 03-13-1990 0
02390078 05-24-1994 QCN 0.00 05-20-1994 0
2113061 NA SUB SUBDIVISION WEST LAKE ADD PUD 0.00 NA 0
2406372 09-13-1994 WD KOMINSKI DIETER ROBERT GOMEZ ROBERT FRANK & MARGARET 14.30 08-25-1994 143,000
2551800 06-05-1997 WD GOMEZ ROBERT FRANK & MARGARET CROW DAVID E & 15.00 05-22-1997 150,000



Account Parcel Account Type Tax Year Buildings Actual Value Local Govt Assessed Value School Assessed Value
R0098788 147106415005 Residential 2026 1 412,384 25,780 29,080

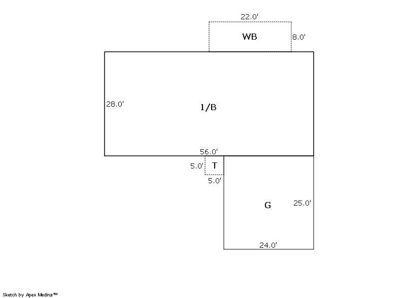
Building 1

AccountNo Building ID Occupancy
R0098788 1 Single Family Residential


ID Type NBHD Occupancy % Complete Bedrooms Baths
1 Residential 4F1007 Single Family Residential 100 3 2.00


ID Exterior Roof Cover Interior HVAC Perimeter Units Unit Type Make
1 Frame Masonry Veneer Wood Shake Drywall Forced Air 0 0 NA NA


ID Square Ft Condo SF Total Basement SF Finished Basement SF Garage SF Carport SF Balcony SF Porch SF
1 1,568 0 1,568 0 600 0 176 25


Built As Details for Building 1
ID Built As Square Ft Year Built Stories Length Width
1.00 Ranch 1 Story 1,568 1994 1 0 0


Additional Details for Building 1
ID Detail Type Description Units
1 Balcony Wood Wood Fin 176.00
1 Basement Outside Entrance 1.00
1 Basement Total Basement SF 1568.00
1 Fixture Full Bath 2.00
1 Garage Attached 600.00
1 Porch Open Slab 25.00
1 Rough In Rough In 1.00





Account Parcel Account Type Tax Year Buildings Actual Value Local Govt Assessed Value School Assessed Value
R0098788 147106415005 Residential 2026 1 412,384 25,780 29,080

Type Code Description Actual Value Local Govt Assessed Value School Assessed Value Acres Land SqFt
Improvement 1212 SINGLE FAMILY RESIDENTIAL IMPROVEMENTS 322,384 20,150 22,730 0.000 0
Land 1112 SINGLE FAMILY RESIDENTIAL-LAND 90,000 5,630 6,350 0.183 7,986
Totals - - 412,384 25,780 29,080 0.183 7,986


Account Parcel Account Type Tax Year Buildings Actual Value Local Govt Assessed Value School Assessed Value
R0098788 147106415005 Residential 2026 1 412,384 25,780 29,080

Tax Area District ID District Name Local Govt
Mill Levy
School
Mill Levy
Estimated
Taxes
0881 0700 AIMS JUNIOR COLLEGE 6.313 0.000 $162.75
0881 0302 CENTRAL COLORADO WATER (CCW) 0.980 0.000 $25.26
0881 0407 FORT LUPTON CITY 42.931 0.000 $1,106.76
0881 0506 FORT LUPTON FIRE 9.357 0.000 $241.22
0881 1050 HIGH PLAINS LIBRARY 3.044 0.000 $78.47
0881 0301 NORTHERN COLORADO WATER (NCW) 1.000 0.000 $25.78
0881 0208 SCHOOL DIST RE8-FORT LUPTON AND DACONO 0.000 18.198 $529.20
0881 0100 WELD COUNTY 15.956 0.000 $411.35
Total - - 79.581 18.198 $2,580.80


The estimate of tax is based on the prior year mill levy and the 2025 projected assessment rates. Mill levies and tax estimates will be updated yearly on December 22nd for the current year. Additional information can be found at https://assessor.weld.gov










Select Reports to Print: