Account: R0099388
April 5, 2026
| Account | Parcel | Account Type | Tax Year | Buildings | Actual Value | Local Govt Assessed Value | School Assessed Value |
|---|---|---|---|---|---|---|---|
| R0099388 | 147106415011 | Residential | 2026 | 2 | 501,868 | 31,370 | 35,390 |
| Legal |
|---|
| FTL WLA-11 L11 WEST LAKE ADDITION PUD |
| Subdivision | Block | Lot | Land Economic Area |
|---|---|---|---|
| WEST LAKE ADD PUD | 11 | FORT LUPTON SOUTH |
| Property Address | Property City | Section | Township | Range |
|---|---|---|---|---|
| 110 W HILL CT | FORT LUPTON | 06 | 01 | 66 |
| Account | Parcel | Account Type | Tax Year | Buildings | Actual Value | Local Govt Assessed Value | School Assessed Value |
|---|---|---|---|---|---|---|---|
| R0099388 | 147106415011 | Residential | 2026 | 2 | 501,868 | 31,370 | 35,390 |
| Account | Owner Name | Address |
|---|---|---|
| R0099388 | GARCIA RAMON RUIZ | 110 W HILL CT FORT LUPTON, CO 806211414 |
| Account | Parcel | Account Type | Tax Year | Buildings | Actual Value | Local Govt Assessed Value | School Assessed Value |
|---|---|---|---|---|---|---|---|
| R0099388 | 147106415011 | Residential | 2026 | 2 | 501,868 | 31,370 | 35,390 |
| Reception | Rec Date | Type | Grantor | Grantee | Doc Fee | Sale Date | Sale Price |
|---|---|---|---|---|---|---|---|
| 02113063 | 09-02-1987 | WDN | 0.00 | 01-01-1900 | 0 | ||
| 2113061 | NA | SUB | SUBDIVISION | WEST LAKE ADD PUD | 0.00 | NA | 0 |
| 2503834 | 07-31-1996 | WD | DEL/FAST ASSOCIATES LTD | D K HOMES & APPRAISAL SERVICE LLC | 2.50 | 07-31-1996 | 25,000 |
| 2566296 | 08-29-1997 | QCN | D K HOMES & APPRAISAL SERVICE LLC | FAST DELBERT L & MARY JANE | 0.00 | 08-28-1997 | 0 |
| 2871345 | 08-02-2001 | WD | FAST DELBERT L & MARY JANE | MORRISON STEPHEN R & SUSAN C | 31.50 | 07-25-2001 | 315,000 |
| 3246769 | 12-27-2004 | WD | MORRISON STEPHEN R & SUSAN C | CRUZ ALEXANDER | 38.00 | 12-13-2004 | 380,000 |
| 3355119 | 01-16-2006 | PTD | CRUZ ALEXANDER | LASALLE BANK NA | 0.00 | 01-16-2006 | 0 |
| 3413717 | 08-22-2006 | SWD | LASALLE BANK NA | POWELL JOSEPH B | 29.60 | 08-22-2006 | 296,000 |
| 3701030 | 06-22-2010 | PTD | POWELL JOSEPH B | DEUTSCHE BANK NATIONAL TRUST COMPANY | 0.00 | 06-21-2010 | 0 |
| 3754816 | 03-09-2011 | SWD | DEUTSCHE BANK NATIONAL TRUST COMPANY | GARCIA RAMON RUIZ | 19.69 | 11-16-2010 | 196,900 |
*If the hyperlink for the reception number does not work, try a manual search in the Clerk and Recorder records. Use the Grantor or Grantee in your search.
| Account | Parcel | Account Type | Tax Year | Buildings | Actual Value | Local Govt Assessed Value | School Assessed Value |
|---|---|---|---|---|---|---|---|
| R0099388 | 147106415011 | Residential | 2026 | 2 | 501,868 | 31,370 | 35,390 |
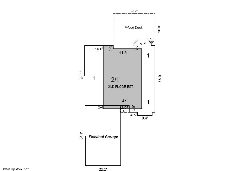
Building 1
| AccountNo | Building ID | Occupancy |
|---|---|---|
| R0099388 | 1 | Single Family Residential |
| ID | Type | NBHD | Occupancy | % Complete | Bedrooms | Baths |
|---|---|---|---|---|---|---|
| 1 | Residential | 4F1007 | Single Family Residential | 100 | 3 | 2.00 |
| ID | Exterior | Roof Cover | Interior | HVAC | Perimeter | Units | Unit Type | Make |
|---|---|---|---|---|---|---|---|---|
| 1 | Frame Stucco | Wood Shake | Drywall | Central Air to Air | 0 | 0 | NA | NA |
| ID | Square Ft | Condo SF | Total Basement SF | Finished Basement SF | Garage SF | Carport SF | Balcony SF | Porch SF |
|---|---|---|---|---|---|---|---|---|
| 1 | 2,174 | 0 | 0 | 0 | 687 | 0 | 0 | 20 |
| ID | Built As | Square Ft | Year Built | Stories | Length | Width |
|---|---|---|---|---|---|---|
| 1.00 | 1 1/2 Story Fin | 2,174 | 1997 | 2 | 0 | 0 |
| ID | Detail Type | Description | Units |
|---|---|---|---|
| 1 | Fixture | Full Bath | 2.00 |
| 1 | Fixture | Half Bath | 1.00 |
| 1 | Garage | Attached | 687.00 |
| 1 | Porch | Slab Roof Ceil | 20.00 |
| 1 | Porch | Wood Deck | 425.00 |
Building 2
| AccountNo | Building ID | Occupancy |
|---|---|---|
| R0099388 | 2 | Utility Building |
| ID | Type | NBHD | Occupancy | % Complete | Bedrooms | Baths |
|---|---|---|---|---|---|---|
| 2 | Out Building | NA | Utility Building | 100 | 0 | 0.00 |
| ID | Exterior | Roof Cover | Interior | HVAC | Perimeter | Units | Unit Type | Make |
|---|---|---|---|---|---|---|---|---|
| 2 | NA | NA | NA | None | 84 | 0 | NA | NA |
| ID | Square Ft | Condo SF | Total Basement SF | Finished Basement SF | Garage SF | Carport SF | Balcony SF | Porch SF |
|---|---|---|---|---|---|---|---|---|
| 2 | 440 | 0 | 0 | 0 | 0 | 0 | 0 | 0 |
| ID | Built As | Square Ft | Year Built | Stories | Length | Width |
|---|---|---|---|---|---|---|
| 2.00 | Utility Building | 440 | 2001 | 1 | 22 | 20 |
No Additional Details for Building 2
| Account | Parcel | Account Type | Tax Year | Buildings | Actual Value | Local Govt Assessed Value | School Assessed Value |
|---|---|---|---|---|---|---|---|
| R0099388 | 147106415011 | Residential | 2026 | 2 | 501,868 | 31,370 | 35,390 |
| Type | Code | Description | Actual Value | Local Govt Assessed Value | School Assessed Value | Acres | Land SqFt |
|---|---|---|---|---|---|---|---|
| Improvement | 1212 | SINGLE FAMILY RESIDENTIAL IMPROVEMENTS | 411,868 | 25,740 | 29,040 | 0.000 | 0 |
| Land | 1112 | SINGLE FAMILY RESIDENTIAL-LAND | 90,000 | 5,630 | 6,350 | 3.577 | 155,814 |
| Totals | - | - | 501,868 | 31,370 | 35,390 | 3.577 | 155,814 |
Comparable sales for your Residential or Commercial property may be found using our SALES SEARCH TOOL
Values are updated annually on May 1st for Real Property and June 15th for Personal Property and Oil and Gas.
| Account | Parcel | Account Type | Tax Year | Buildings | Actual Value | Local Govt Assessed Value | School Assessed Value |
|---|---|---|---|---|---|---|---|
| R0099388 | 147106415011 | Residential | 2026 | 2 | 501,868 | 31,370 | 35,390 |
| Tax Area | District ID | District Name | Local Govt Mill Levy |
School Mill Levy |
Estimated Taxes |
|---|---|---|---|---|---|
| 0881 | 0700 | AIMS JUNIOR COLLEGE | 6.313 | 0.000 | $198.04 |
| 0881 | 0302 | CENTRAL COLORADO WATER (CCW) | 0.980 | 0.000 | $30.74 |
| 0881 | 0407 | FORT LUPTON CITY | 42.931 | 0.000 | $1,346.75 |
| 0881 | 0506 | FORT LUPTON FIRE | 9.357 | 0.000 | $293.53 |
| 0881 | 1050 | HIGH PLAINS LIBRARY | 3.044 | 0.000 | $95.49 |
| 0881 | 0301 | NORTHERN COLORADO WATER (NCW) | 1.000 | 0.000 | $31.37 |
| 0881 | 0208 | SCHOOL DIST RE8-FORT LUPTON AND DACONO | 0.000 | 18.198 | $644.03 |
| 0881 | 0100 | WELD COUNTY | 15.956 | 0.000 | $500.54 |
| Total | - | - | 79.581 | 18.198 | $3,140.48 |
The estimate of tax is based on the prior year mill levy and the 2025 projected assessment rates. Mill levies and tax estimates will be updated yearly on December 22nd for the current year. Additional information can be found at https://assessor.weld.gov



