Account: R0136795

April 4, 2026

Account Parcel Account Type Tax Year Buildings Actual Value Local Govt Assessed Value School Assessed Value
R0136795 147136002017 Residential 2026 1 494,457 30,910 34,860

Legal
LOC LOCF2-17 L17 BLK2 LOCHWOOD FARMS PUD 1ST FILING

Subdivision Block Lot Land Economic Area
LOCHWOOD FARMS PUD 1ST FG 2 17 LOCHWOOD LOTS

Property Address Property City Section Township Range
803 SPRUCE PL LOCHBUIE 36 01 66




Account Parcel Account Type Tax Year Buildings Actual Value Local Govt Assessed Value School Assessed Value
R0136795 147136002017 Residential 2026 1 494,457 30,910 34,860

Account Owner Name Address
R0136795 OTT DAVID 803 SPRUCE PL LOCHBUIE, CO 806035720
R0136795 LUCAS CAROLE L


Account Parcel Account Type Tax Year Buildings Actual Value Local Govt Assessed Value School Assessed Value
R0136795 147136002017 Residential 2026 1 494,457 30,910 34,860

Reception Rec Date Type Grantor Grantee Doc Fee Sale Date Sale Price
02086843 02-02-1987 QCN 0.00 01-01-1900 0
02410531 10-11-1994 QCN 0.00 10-03-1994 0
2158012 NA SUB SUBDIVISION LOCKWOOD FARMS PUD FG #1 0.00 NA 0
2470356 01-04-1996 WD WELD & THIRD ASSOCIATES SANCHEZ ROBERT G & 10.80 12-29-1995 108,000
2765291 05-02-2000 WD SANCHEZ ROBERT G & NEWMAN MICH EISBRENNER EDITH A 15.39 04-28-2000 153,900
2765292 05-02-2000 QCN EISBRENNER EDITH A EISBRENNER EDITH A & MARK D 0.00 04-28-2000 0
2938112 04-01-2002 QCN EISBRENNER EDITH A & MARK D EISBRENNER MARK D 0.00 03-28-2002 0
3080036 07-07-2003 WD EISBRENNER MARK D HITCHCOCK LOUISE 22.00 06-25-2003 220,000
3528656 01-14-2008 PTD HITCHCOCK LOUISE & LASALLE BANK NATIONAL ASSOCIATION 0.00 01-14-2008 0
3594396 12-11-2008 SWD LASALLE BANK NATIONAL ASSOCIATION OTT DAVID 15.60 11-03-2008 156,000



Account Parcel Account Type Tax Year Buildings Actual Value Local Govt Assessed Value School Assessed Value
R0136795 147136002017 Residential 2026 1 494,457 30,910 34,860

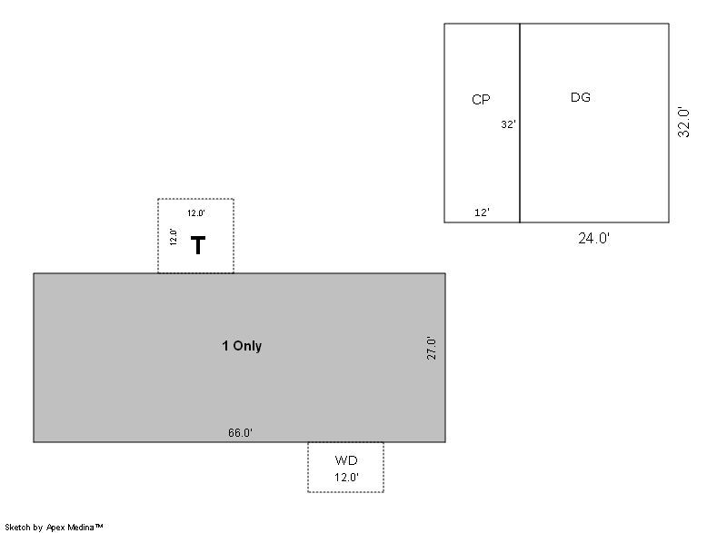
Building 1

AccountNo Building ID Occupancy
R0136795 1 Single Family Residential


ID Type NBHD Occupancy % Complete Bedrooms Baths
1 Manufactured Hm 4L1003 Single Family Residential 100 3 2.00


ID Exterior Roof Cover Interior HVAC Perimeter Units Unit Type Make
1 Vinyl Siding Shingle Comp Drywall Central Air to Air 0 0 NA NA


ID Square Ft Condo SF Total Basement SF Finished Basement SF Garage SF Carport SF Balcony SF Porch SF
1 1,782 0 0 0 768 384 0 96


Built As Details for Building 1
ID Built As Square Ft Year Built Stories Length Width
1.00 Mnfctrd Home 1 Story 1,782 1995 1 66 27


Additional Details for Building 1
ID Detail Type Description Units
1 Add On MH Swamp Cooler 1.00
1 Carport Carport 384.00
1 Fixture Full Bath 2.00
1 Garage Detached 768.00
1 Porch Open Slab 144.00
1 Porch Wood Deck 96.00





Account Parcel Account Type Tax Year Buildings Actual Value Local Govt Assessed Value School Assessed Value
R0136795 147136002017 Residential 2026 1 494,457 30,910 34,860

Type Code Description Actual Value Local Govt Assessed Value School Assessed Value Acres Land SqFt
Improvement 1212 SINGLE FAMILY RESIDENTIAL IMPROVEMENTS 337,840 21,120 23,820 0.000 0
Land 1112 SINGLE FAMILY RESIDENTIAL-LAND 156,617 9,790 11,040 1.033 45,000
Totals - - 494,457 30,910 34,860 1.033 45,000


Account Parcel Account Type Tax Year Buildings Actual Value Local Govt Assessed Value School Assessed Value
R0136795 147136002017 Residential 2026 1 494,457 30,910 34,860

Tax Area District ID District Name Local Govt
Mill Levy
School
Mill Levy
Estimated
Taxes
0318 0700 AIMS JUNIOR COLLEGE 6.313 0.000 $195.13
0318 0302 CENTRAL COLORADO WATER (CCW) 0.980 0.000 $30.29
0318 0309 CENTRAL COLORADO WATER SUBDISTRICT (CCS) 1.462 0.000 $45.19
0318 1050 HIGH PLAINS LIBRARY 3.044 0.000 $94.09
0318 0509 HUDSON FIRE 12.237 0.000 $378.25
0318 0419 LOCHBUIE TOWN 6.443 0.000 $199.15
0318 0203 SCHOOL DIST RE3J-KEENESBURG 0.000 15.822 $551.55
0318 0100 WELD COUNTY 15.956 0.000 $493.20
Total - - 46.435 15.822 $1,986.86


The estimate of tax is based on the prior year mill levy and the 2025 projected assessment rates. Mill levies and tax estimates will be updated yearly on December 22nd for the current year. Additional information can be found at https://assessor.weld.gov










Select Reports to Print: