Account: R0138789
April 1, 2026
| Account | Parcel | Account Type | Tax Year | Buildings | Actual Value | Local Govt Assessed Value | School Assessed Value |
|---|---|---|---|---|---|---|---|
| R0138789 | 147106109015 | Residential | 2026 | 1 | 415,888 | 25,990 | 29,320 |
| Legal |
|---|
| FTL 15492-A L4-5-6 & E2 L7 BLK4 WULFEKUHLERS |
| Subdivision | Block | Lot | Land Economic Area |
|---|---|---|---|
| WULFEKUHLERS ADD | 4 | 4 | OLD FORT LUPTON |
| Property Address | Property City | Section | Township | Range |
|---|---|---|---|---|
| 232 7TH ST | FORT LUPTON | 06 | 01 | 66 |
| Account | Parcel | Account Type | Tax Year | Buildings | Actual Value | Local Govt Assessed Value | School Assessed Value |
|---|---|---|---|---|---|---|---|
| R0138789 | 147106109015 | Residential | 2026 | 1 | 415,888 | 25,990 | 29,320 |
| Account | Owner Name | Address |
|---|---|---|
| R0138789 | BARBER BROOKE LEE | 232 7TH ST FORT LUPTON, CO 806212111 |
| R0138789 | MELENDEZ REMUS SULE JR |
| Account | Parcel | Account Type | Tax Year | Buildings | Actual Value | Local Govt Assessed Value | School Assessed Value |
|---|---|---|---|---|---|---|---|
| R0138789 | 147106109015 | Residential | 2026 | 1 | 415,888 | 25,990 | 29,320 |
| Reception | Rec Date | Type | Grantor | Grantee | Doc Fee | Sale Date | Sale Price |
|---|---|---|---|---|---|---|---|
| 327483 | NA | SUB | SUBDIVISION | WULFEKUHLERS ADD | 0.00 | NA | 0 |
| 4207143 | 05-27-2016 | AFFD | CALLAWAY DORA B; CALLAWAY CHARLES C | CALLAWAY DORA B | 0.00 | 05-27-2016 | 0 |
| 4207145 | 05-27-2016 | PRDE | CALLAWAY DORA B | DAHL MICHAEL | 25.00 | 05-26-2016 | 250,000 |
| 5056657 | 10-01-2025 | WD | DAHL MICHAEL | BARBER BROOKE LEE; MELENDEZ REMUS SULE JR | 48.79 | 09-30-2025 | 487,900 |
*If the hyperlink for the reception number does not work, try a manual search in the Clerk and Recorder records. Use the Grantor or Grantee in your search.
| Account | Parcel | Account Type | Tax Year | Buildings | Actual Value | Local Govt Assessed Value | School Assessed Value |
|---|---|---|---|---|---|---|---|
| R0138789 | 147106109015 | Residential | 2026 | 1 | 415,888 | 25,990 | 29,320 |
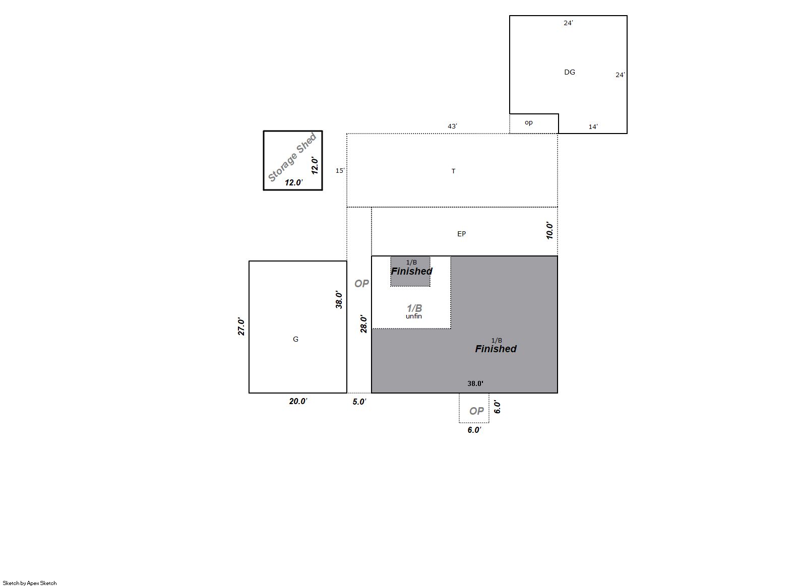
Building 1
| AccountNo | Building ID | Occupancy |
|---|---|---|
| R0138789 | 1 | Single Family Residential |
| ID | Type | NBHD | Occupancy | % Complete | Bedrooms | Baths |
|---|---|---|---|---|---|---|
| 1 | Residential | 4F1005 | Single Family Residential | 100 | 4 | 2.00 |
| ID | Exterior | Roof Cover | Interior | HVAC | Perimeter | Units | Unit Type | Make |
|---|---|---|---|---|---|---|---|---|
| 1 | Frame Masonry Veneer | Composition Shingle | Drywall | Central Air to Air | 132 | 0 | NA | NA |
| ID | Square Ft | Condo SF | Total Basement SF | Finished Basement SF | Garage SF | Carport SF | Balcony SF | Porch SF |
|---|---|---|---|---|---|---|---|---|
| 1 | 1,064 | 0 | 1,064 | 873 | 1,076 | 0 | 0 | 40 |
| ID | Built As | Square Ft | Year Built | Stories | Length | Width |
|---|---|---|---|---|---|---|
| 1.00 | Ranch 1 Story | 1,064 | 1965 | 1 | 0 | 0 |
| ID | Detail Type | Description | Units |
|---|---|---|---|
| 1 | Add On | Flue Only | 1.00 |
| 1 | Basement | Finished | 873.00 |
| 1 | Basement | Total Basement SF | 1064.00 |
| 1 | Fixture | Full Bath | 2.00 |
| 1 | Garage | Detached | 1076.00 |
| 1 | Porch | Encl Solid Wall | 380.00 |
| 1 | Porch | Open Slab | 645.00 |
| 1 | Porch | Slab Roof | 226.00 |
| 1 | Porch | Slab Roof Ceil | 40.00 |
| 1 | Storage | Wood | 144.00 |
| Account | Parcel | Account Type | Tax Year | Buildings | Actual Value | Local Govt Assessed Value | School Assessed Value |
|---|---|---|---|---|---|---|---|
| R0138789 | 147106109015 | Residential | 2026 | 1 | 415,888 | 25,990 | 29,320 |
| Type | Code | Description | Actual Value | Local Govt Assessed Value | School Assessed Value | Acres | Land SqFt |
|---|---|---|---|---|---|---|---|
| Improvement | 1212 | SINGLE FAMILY RESIDENTIAL IMPROVEMENTS | 331,888 | 20,740 | 23,400 | 0.000 | 0 |
| Land | 1112 | SINGLE FAMILY RESIDENTIAL-LAND | 84,000 | 5,250 | 5,920 | 0.241 | 10,500 |
| Totals | - | - | 415,888 | 25,990 | 29,320 | 0.241 | 10,500 |
Comparable sales for your Residential or Commercial property may be found using our SALES SEARCH TOOL
Values are updated annually on May 1st for Real Property and June 15th for Personal Property and Oil and Gas.
| Account | Parcel | Account Type | Tax Year | Buildings | Actual Value | Local Govt Assessed Value | School Assessed Value |
|---|---|---|---|---|---|---|---|
| R0138789 | 147106109015 | Residential | 2026 | 1 | 415,888 | 25,990 | 29,320 |
| Tax Area | District ID | District Name | Local Govt Mill Levy |
School Mill Levy |
Estimated Taxes |
|---|---|---|---|---|---|
| 5392 | 0700 | AIMS JUNIOR COLLEGE | 6.313 | 0.000 | $164.07 |
| 5392 | 0407 | FORT LUPTON CITY | 42.931 | 0.000 | $1,115.78 |
| 5392 | 0506 | FORT LUPTON FIRE | 9.357 | 0.000 | $243.19 |
| 5392 | 0951 | FORT LUPTON URBAN RENEWAL AUTHORITY (FLURA) | 0.000 | 0.000 | $0.00 |
| 5392 | 1050 | HIGH PLAINS LIBRARY | 3.044 | 0.000 | $79.11 |
| 5392 | 0301 | NORTHERN COLORADO WATER (NCW) | 1.000 | 0.000 | $25.99 |
| 5392 | 0208 | SCHOOL DIST RE8-FORT LUPTON AND DACONO | 0.000 | 18.198 | $533.57 |
| 5392 | 0100 | WELD COUNTY | 15.956 | 0.000 | $414.70 |
| Total | - | - | 78.601 | 18.198 | $2,576.41 |
The estimate of tax is based on the prior year mill levy and the 2025 projected assessment rates. Mill levies and tax estimates will be updated yearly on December 22nd for the current year. Additional information can be found at https://assessor.weld.gov


