Account: R0146895
April 5, 2026
| Account | Parcel | Account Type | Tax Year | Buildings | Actual Value | Local Govt Assessed Value | School Assessed Value |
|---|---|---|---|---|---|---|---|
| R0146895 | 096120410001 | Residential | 2026 | 1 | 446,476 | 27,910 | 31,480 |
| Legal |
|---|
| EVS KS-1 L1 KING SUB |
| Subdivision | Block | Lot | Land Economic Area |
|---|---|---|---|
| KING SUB | 1 | KING |
| Property Address | Property City | Section | Township | Range |
|---|---|---|---|---|
| 3308 EMPIRE ST | EVANS | 20 | 05 | 65 |
| Account | Parcel | Account Type | Tax Year | Buildings | Actual Value | Local Govt Assessed Value | School Assessed Value |
|---|---|---|---|---|---|---|---|
| R0146895 | 096120410001 | Residential | 2026 | 1 | 446,476 | 27,910 | 31,480 |
| Account | Owner Name | Address |
|---|---|---|
| R0146895 | BLUE OAK PROPERTIES LLC | 3400 W 16TH ST BLDG 1 STE B GREELEY, CO 806346862 |
| Account | Parcel | Account Type | Tax Year | Buildings | Actual Value | Local Govt Assessed Value | School Assessed Value |
|---|---|---|---|---|---|---|---|
| R0146895 | 096120410001 | Residential | 2026 | 1 | 446,476 | 27,910 | 31,480 |
| Reception | Rec Date | Type | Grantor | Grantee | Doc Fee | Sale Date | Sale Price |
|---|---|---|---|---|---|---|---|
| 2408195 | NA | SUB | SUBDIVISION | KING | 0.00 | NA | 0 |
| 2587956 | 01-07-1998 | QCN | KING CHRISTOPHER | KING HOLLY S | 0.00 | 12-31-1997 | 0 |
| 2694906 | 05-20-1999 | QCN | KING HOLLY S | KING CHRISTOPHER | 0.00 | 05-17-1999 | 0 |
| 3111850 | 09-30-2003 | QCN | KING CHRISTOPHER | KING CHRISTOPHER & HOLLY | 0.00 | 09-29-2003 | 0 |
| 4184073 | 02-29-2016 | WD | KING HOLLY; KING CHRISTOPHER; KING HOLLY S | KING COURT PROPERTY MANAGEMENT LLC | 140.00 | 02-26-2016 | 1,400,000 |
| 4401688 | 05-24-2018 | QCN | KING COURT PROPERTY MANAGEMENT LLC | ACCASHIAN JOHN VINCENT (PR) | 0.00 | 05-23-2018 | 0 |
| 4401690 | 05-24-2018 | PRD | ACCASHIAN JOHN VINCENT (PR) | OHARA JOHN; OHARA FRANK; JAO HOLDINGS | 182.50 | 05-23-2018 | 1,825,000 |
| 5044983 | 08-01-2025 | SURV | SURVEY | SURVEY | 0.00 | 07-30-2025 | 0 |
| 5050692 | 09-02-2025 | WD | JAO HOLDINGS; OHARA JOHN; OHARA FRANK | BLUE OAK PROPERTIES LLC | 327.50 | 08-29-2025 | 3,275,000 |
*If the hyperlink for the reception number does not work, try a manual search in the Clerk and Recorder records. Use the Grantor or Grantee in your search.
| Account | Parcel | Account Type | Tax Year | Buildings | Actual Value | Local Govt Assessed Value | School Assessed Value |
|---|---|---|---|---|---|---|---|
| R0146895 | 096120410001 | Residential | 2026 | 1 | 446,476 | 27,910 | 31,480 |
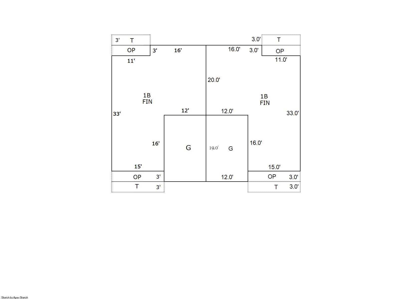
Building 1
| AccountNo | Building ID | Occupancy |
|---|---|---|
| R0146895 | 1 | Apartment Duplex |
| ID | Type | NBHD | Occupancy | % Complete | Bedrooms | Baths |
|---|---|---|---|---|---|---|
| 1 | Duplex | 6E0024 | Apartment Duplex | 100 | 6 | 4.00 |
| ID | Exterior | Roof Cover | Interior | HVAC | Perimeter | Units | Unit Type | Make |
|---|---|---|---|---|---|---|---|---|
| 1 | Frame Siding | Composition Shingle | Drywall | Central Air to Air | 252 | 2 | End | NA |
| ID | Square Ft | Condo SF | Total Basement SF | Finished Basement SF | Garage SF | Carport SF | Balcony SF | Porch SF |
|---|---|---|---|---|---|---|---|---|
| 1 | 1,494 | 0 | 1,494 | 1,494 | 456 | 0 | 0 | 156 |
| ID | Built As | Square Ft | Year Built | Stories | Length | Width |
|---|---|---|---|---|---|---|
| 1.00 | Duplex One Story | 1,494 | 1995 | 1 | 0 | 0 |
| ID | Detail Type | Description | Units |
|---|---|---|---|
| 1 | Basement | Finished | 1494.00 |
| 1 | Basement | Total Basement SF | 1494.00 |
| 1 | Fixture | Full Bath | 4.00 |
| 1 | Garage | Attached | 456.00 |
| 1 | Porch | Open Slab | 156.00 |
| 1 | Porch | Slab Roof Ceil | 156.00 |
| Account | Parcel | Account Type | Tax Year | Buildings | Actual Value | Local Govt Assessed Value | School Assessed Value |
|---|---|---|---|---|---|---|---|
| R0146895 | 096120410001 | Residential | 2026 | 1 | 446,476 | 27,910 | 31,480 |
| Type | Code | Description | Actual Value | Local Govt Assessed Value | School Assessed Value | Acres | Land SqFt |
|---|---|---|---|---|---|---|---|
| Improvement | 1215 | DUP/TRIPLEX IMPROVEMENTS | 396,476 | 24,780 | 27,950 | 0.000 | 0 |
| Land | 1115 | DUP/TRIPLEX LAND | 50,000 | 3,130 | 3,530 | 0.160 | 6,956 |
| Totals | - | - | 446,476 | 27,910 | 31,480 | 0.160 | 6,956 |
Comparable sales for your Residential or Commercial property may be found using our SALES SEARCH TOOL
Values are updated annually on May 1st for Real Property and June 15th for Personal Property and Oil and Gas.
| Account | Parcel | Account Type | Tax Year | Buildings | Actual Value | Local Govt Assessed Value | School Assessed Value |
|---|---|---|---|---|---|---|---|
| R0146895 | 096120410001 | Residential | 2026 | 1 | 446,476 | 27,910 | 31,480 |
| Tax Area | District ID | District Name | Local Govt Mill Levy |
School Mill Levy |
Estimated Taxes |
|---|---|---|---|---|---|
| 0650 | 0700 | AIMS JUNIOR COLLEGE | 6.313 | 0.000 | $176.20 |
| 0650 | 0405 | EVANS CITY | 3.536 | 0.000 | $98.69 |
| 0650 | 0534 | EVANS FIRE | 15.500 | 0.000 | $432.61 |
| 0650 | 1050 | HIGH PLAINS LIBRARY | 3.044 | 0.000 | $84.96 |
| 0650 | 0301 | NORTHERN COLORADO WATER (NCW) | 1.000 | 0.000 | $27.91 |
| 0650 | 0206 | SCHOOL DIST 6-GREELEY | 0.000 | 47.615 | $1,498.92 |
| 0650 | 0100 | WELD COUNTY | 15.956 | 0.000 | $445.33 |
| Total | - | - | 45.349 | 47.615 | $2,764.61 |
The estimate of tax is based on the prior year mill levy and the 2025 projected assessment rates. Mill levies and tax estimates will be updated yearly on December 22nd for the current year. Additional information can be found at https://assessor.weld.gov



