Account: R0147601

April 5, 2026

Account Parcel Account Type Tax Year Buildings Actual Value Local Govt Assessed Value School Assessed Value
R0147601 147136434008 Residential 2026 1 354,997 22,190 25,030

Legal
LOC 2HP L8 BLK1 HIGHPLAINS FG #2

Subdivision Block Lot Land Economic Area
HIGHPLAINS FG#2 1 8 HIGHPLAINS

Property Address Property City Section Township Range
684 STAMPEDE DR LOCHBUIE 36 01 66




Account Parcel Account Type Tax Year Buildings Actual Value Local Govt Assessed Value School Assessed Value
R0147601 147136434008 Residential 2026 1 354,997 22,190 25,030

Account Owner Name Address
R0147601 BARRIOS ALBERTO 684 STAMPEDE DR LOCHBUIE, CO 806035797
R0147601 BARRIOS CAROLYN R


Account Parcel Account Type Tax Year Buildings Actual Value Local Govt Assessed Value School Assessed Value
R0147601 147136434008 Residential 2026 1 354,997 22,190 25,030

Reception Rec Date Type Grantor Grantee Doc Fee Sale Date Sale Price
2811737 NA SUB SUBDIVISION HIGHPLAINS FG #2 0.00 NA 0
2811747 12-07-2000 SWD WELD & THIRD ASSOCIATES GALAXY LAND COMPANY LLC 28.54 12-06-2000 285,400
2820801 01-23-2001 BSD GALAXY LAND COMPANY LLC SATURN DEVELOPMENT CORP 2.20 01-17-2001 22,000
2820802 01-23-2001 SWD SATURN DEVELOPMENT CORP BARRIOS ALBERTO & CAROLYN R 15.60 01-17-2001 156,000



Account Parcel Account Type Tax Year Buildings Actual Value Local Govt Assessed Value School Assessed Value
R0147601 147136434008 Residential 2026 1 354,997 22,190 25,030

Building 1

AccountNo Building ID Occupancy
R0147601 1 Single Family Residential


ID Type NBHD Occupancy % Complete Bedrooms Baths
1 Manufactured Hm 4L0001 Single Family Residential 100 3 2.00


ID Exterior Roof Cover Interior HVAC Perimeter Units Unit Type Make
1 Hardboard Sheet Shingle Comp Drywall Forced Air 0 0 NA NA


ID Square Ft Condo SF Total Basement SF Finished Basement SF Garage SF Carport SF Balcony SF Porch SF
1 1,232 0 0 0 480 0 0 0


Built As Details for Building 1
ID Built As Square Ft Year Built Stories Length Width
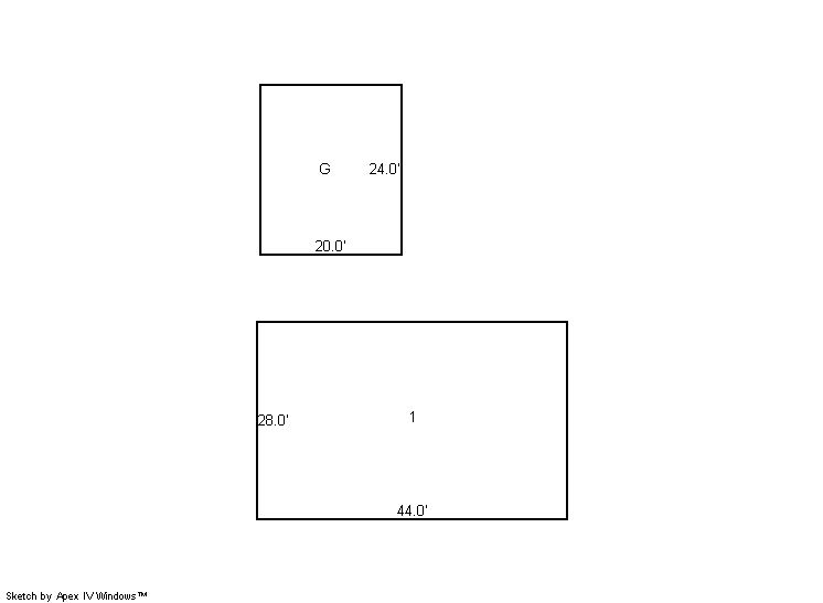
1.00 Mnfctrd Home 1 Story 1,232 2001 1 44 28


Additional Details for Building 1
ID Detail Type Description Units
1 Fixture Full Bath 2.00
1 Garage Detached 480.00





Account Parcel Account Type Tax Year Buildings Actual Value Local Govt Assessed Value School Assessed Value
R0147601 147136434008 Residential 2026 1 354,997 22,190 25,030

Type Code Description Actual Value Local Govt Assessed Value School Assessed Value Acres Land SqFt
Improvement 1212 SINGLE FAMILY RESIDENTIAL IMPROVEMENTS 254,997 15,940 17,980 0.000 0
Land 1112 SINGLE FAMILY RESIDENTIAL-LAND 100,000 6,250 7,050 0.176 7,656
Totals - - 354,997 22,190 25,030 0.176 7,656


Account Parcel Account Type Tax Year Buildings Actual Value Local Govt Assessed Value School Assessed Value
R0147601 147136434008 Residential 2026 1 354,997 22,190 25,030

Tax Area District ID District Name Local Govt
Mill Levy
School
Mill Levy
Estimated
Taxes
0318 0700 AIMS JUNIOR COLLEGE 6.313 0.000 $140.09
0318 0302 CENTRAL COLORADO WATER (CCW) 0.980 0.000 $21.75
0318 0309 CENTRAL COLORADO WATER SUBDISTRICT (CCS) 1.462 0.000 $32.44
0318 1050 HIGH PLAINS LIBRARY 3.044 0.000 $67.55
0318 0509 HUDSON FIRE 12.237 0.000 $271.54
0318 0419 LOCHBUIE TOWN 6.443 0.000 $142.97
0318 0203 SCHOOL DIST RE3J-KEENESBURG 0.000 15.822 $396.02
0318 0100 WELD COUNTY 15.956 0.000 $354.06
Total - - 46.435 15.822 $1,426.42


The estimate of tax is based on the prior year mill levy and the 2025 projected assessment rates. Mill levies and tax estimates will be updated yearly on December 22nd for the current year. Additional information can be found at https://assessor.weld.gov










Select Reports to Print: