Account: R0150501

April 5, 2026

Account Parcel Account Type Tax Year Buildings Actual Value Local Govt Assessed Value School Assessed Value
R0150501 147136437009 Residential 2026 1 348,706 21,790 24,580

Legal
LOC 2HP L9 BLK4 HIGHPLAINS FG #2

Subdivision Block Lot Land Economic Area
HIGHPLAINS FG#2 4 9 HIGHPLAINS

Property Address Property City Section Township Range
647 LOCUST AVE LOCHBUIE 36 01 66




Account Parcel Account Type Tax Year Buildings Actual Value Local Govt Assessed Value School Assessed Value
R0150501 147136437009 Residential 2026 1 348,706 21,790 24,580

Account Owner Name Address
R0150501 CALVILLO JORGE GUADALUPE 647 LOCUST AVE LOCHBUIE, CO 806035785
R0150501 RUDOLPH SHALON KESAW PATTON


Account Parcel Account Type Tax Year Buildings Actual Value Local Govt Assessed Value School Assessed Value
R0150501 147136437009 Residential 2026 1 348,706 21,790 24,580

Reception Rec Date Type Grantor Grantee Doc Fee Sale Date Sale Price
2811737 NA SUB SUBDIVISION HIGHPLAINS FG #2 0.00 NA 0
2811747 12-07-2000 SWD WELD & THIRD ASSOCIATES GALAXY LAND COMPANY LLC 28.54 12-06-2000 285,400
2886625 09-26-2001 BSD GALAXY LAND COMPANY LLC SATURN DEVELOPMENT CORP 2.20 09-21-2001 22,000
2886626 09-26-2001 SWD SATURN DEVELOPMENT CORP WHITE LINDA S 13.84 09-21-2001 138,400
4267128 01-04-2017 MHN WHITE LINDA SUE WHITE LINDA SUE 0.00 12-27-2016 0
4267130 01-04-2017 PRDE WHITE LINDA S GACCETTA GIENNA M; MOORE TATIM L 20.00 12-29-2016 200,000
4527084 09-26-2019 QCN GACCETTA CIENNA M; MOORE TATIM L GACCETTA CIENNA M 0.00 09-17-2019 0
4655543 11-30-2020 WD GACCETTA CIENNA M CALVILLO JORGE GUADALUPE; RUDOLPH SHALON KESAW PATTON 30.00 11-17-2020 300,000



Account Parcel Account Type Tax Year Buildings Actual Value Local Govt Assessed Value School Assessed Value
R0150501 147136437009 Residential 2026 1 348,706 21,790 24,580

Building 1

AccountNo Building ID Occupancy
R0150501 1 Single Family Residential


ID Type NBHD Occupancy % Complete Bedrooms Baths
1 Manufactured Hm 4L0001 Single Family Residential 100 3 2.00


ID Exterior Roof Cover Interior HVAC Perimeter Units Unit Type Make
1 Vinyl Siding Shingle Comp Drywall Forced Air 136 0 NA NA


ID Square Ft Condo SF Total Basement SF Finished Basement SF Garage SF Carport SF Balcony SF Porch SF
1 1,140 0 0 0 320 0 80 0


Built As Details for Building 1
ID Built As Square Ft Year Built Stories Length Width
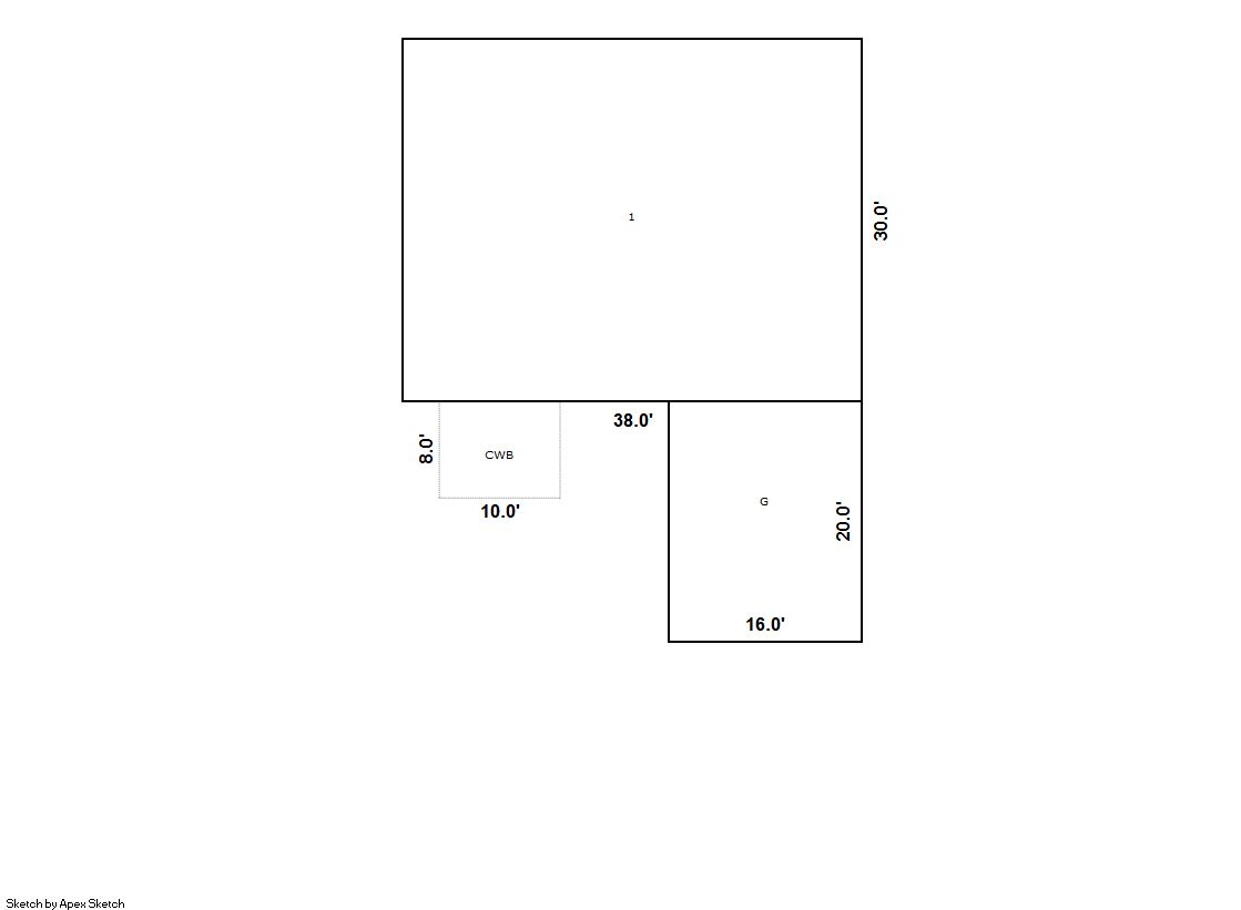
1.00 Mnfctrd Home 1 Story 1,140 2002 1 38 30


Additional Details for Building 1
ID Detail Type Description Units
1 Add On MH Fireplace Gas 1.00
1 Balcony Cover Wood Balc 80.00
1 Fixture Full Bath 2.00
1 Garage Attached 320.00





Account Parcel Account Type Tax Year Buildings Actual Value Local Govt Assessed Value School Assessed Value
R0150501 147136437009 Residential 2026 1 348,706 21,790 24,580

Type Code Description Actual Value Local Govt Assessed Value School Assessed Value Acres Land SqFt
Improvement 1212 SINGLE FAMILY RESIDENTIAL IMPROVEMENTS 248,706 15,540 17,530 0.000 0
Land 1112 SINGLE FAMILY RESIDENTIAL-LAND 100,000 6,250 7,050 0.119 5,166
Totals - - 348,706 21,790 24,580 0.119 5,166


Account Parcel Account Type Tax Year Buildings Actual Value Local Govt Assessed Value School Assessed Value
R0150501 147136437009 Residential 2026 1 348,706 21,790 24,580

Tax Area District ID District Name Local Govt
Mill Levy
School
Mill Levy
Estimated
Taxes
0318 0700 AIMS JUNIOR COLLEGE 6.313 0.000 $137.56
0318 0302 CENTRAL COLORADO WATER (CCW) 0.980 0.000 $21.35
0318 0309 CENTRAL COLORADO WATER SUBDISTRICT (CCS) 1.462 0.000 $31.86
0318 1050 HIGH PLAINS LIBRARY 3.044 0.000 $66.33
0318 0509 HUDSON FIRE 12.237 0.000 $266.64
0318 0419 LOCHBUIE TOWN 6.443 0.000 $140.39
0318 0203 SCHOOL DIST RE3J-KEENESBURG 0.000 15.822 $388.90
0318 0100 WELD COUNTY 15.956 0.000 $347.68
Total - - 46.435 15.822 $1,400.72


The estimate of tax is based on the prior year mill levy and the 2025 projected assessment rates. Mill levies and tax estimates will be updated yearly on December 22nd for the current year. Additional information can be found at https://assessor.weld.gov










Select Reports to Print: