Account: R0153487

April 1, 2026

Account Parcel Account Type Tax Year Buildings Actual Value Local Govt Assessed Value School Assessed Value
R0153487 095914213014 Residential 2026 1 588,572 36,780 41,490

Legal
GR FH4-14 L14 BLK4 FOXHILL SUB

Subdivision Block Lot Land Economic Area
FOXHILL SUB 4 14 FOXHILL BLOCKS 3 & 4

Property Address Property City Section Township Range
2319 45TH AVE GREELEY 14 05 66




Account Parcel Account Type Tax Year Buildings Actual Value Local Govt Assessed Value School Assessed Value
R0153487 095914213014 Residential 2026 1 588,572 36,780 41,490

Account Owner Name Address
R0153487 ANDERSON JAMIE M 2319 45TH AVE GREELEY, CO 806343241
R0153487 ANDERSON ALAN T


Account Parcel Account Type Tax Year Buildings Actual Value Local Govt Assessed Value School Assessed Value
R0153487 095914213014 Residential 2026 1 588,572 36,780 41,490

Reception Rec Date Type Grantor Grantee Doc Fee Sale Date Sale Price
02045364 03-07-1986 WDN 0.00 01-01-1900 0
02174533 03-28-1989 WDN 0.00 03-24-1989 0
02174536 03-25-1989 QCN 0.00 01-01-1900 0
2002062 NA SUB SUBDIVISION FOXHILL 0.00 NA 0
2191358 09-08-1989 WD WARKENTIN RICHARD A & VICKY J WILSON DANIEL G & JULIA W 18.50 09-07-1989 185,000
2917897 01-17-2002 WDN WILSON DANIEL G & JULIA W PRUDENTIAL RESIDENTIAL SERVICES LP 0.00 10-31-2001 0
2917898 01-17-2002 WD PRUDENTIAL RESIDENTIAL SERVICES LP KIM SUNG IL & LUCY 31.50 12-14-2001 315,000
3682038 03-19-2010 PTD KIM SUNG IL FEDERAL NATIONAL MORTGAGE ASSOCIATION ITS SUCCESSO 0.00 03-18-2010 0
3692110 05-10-2010 SWD FANNIE MAE MORGAN PETER D 25.75 04-30-2010 257,500
3864840 08-08-2012 WDE MORGAN PETER D HILL DANIEL A 28.99 07-31-2012 289,900
4044458 09-09-2014 WD HILL DANIEL A; HILL LAURIE JANELL ANDERSON JAMIE M; ANDERSON ALAN T 32.00 09-02-2014 320,000
X0001509 03-28-1989 WD MACINTOSH DEVELOPER WARKENTIN RICHARD A 0.00 03-24-1989 0



Account Parcel Account Type Tax Year Buildings Actual Value Local Govt Assessed Value School Assessed Value
R0153487 095914213014 Residential 2026 1 588,572 36,780 41,490

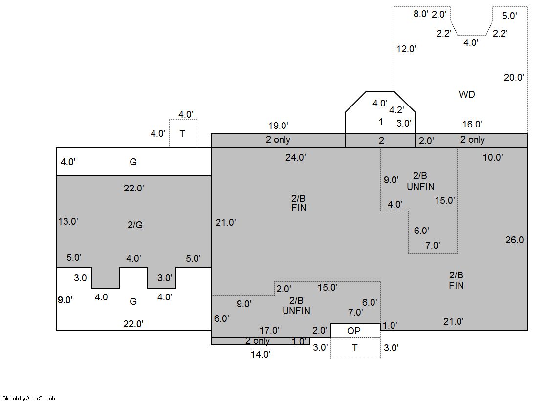
Building 1

AccountNo Building ID Occupancy
R0153487 1 Single Family Residential


ID Type NBHD Occupancy % Complete Bedrooms Baths
1 Residential 2G0003 Single Family Residential 100 5 4.00


ID Exterior Roof Cover Interior HVAC Perimeter Units Unit Type Make
1 Frame Siding Composition Shingle Drywall Central Air to Air 366 0 NA NA


ID Square Ft Condo SF Total Basement SF Finished Basement SF Garage SF Carport SF Balcony SF Porch SF
1 2,845 0 1,180 879 572 0 338 37


Built As Details for Building 1
ID Built As Square Ft Year Built Stories Length Width
1.00 2 Story 2,845 1989 2 0 0


Additional Details for Building 1
ID Detail Type Description Units
1 Add On Fireplace Gas 1.00
1 Balcony Wood Wood Fin 338.00
1 Basement Finished 879.00
1 Basement Total Basement SF 1180.00
1 Fixture Full Bath 3.00
1 Fixture Half Bath 1.00
1 Garage Attached 572.00
1 Porch Open Slab 37.00
1 Porch Slab Roof Ceil 14.00





Account Parcel Account Type Tax Year Buildings Actual Value Local Govt Assessed Value School Assessed Value
R0153487 095914213014 Residential 2026 1 588,572 36,780 41,490

Type Code Description Actual Value Local Govt Assessed Value School Assessed Value Acres Land SqFt
Improvement 1212 SINGLE FAMILY RESIDENTIAL IMPROVEMENTS 503,572 31,470 35,500 0.000 0
Land 1112 SINGLE FAMILY RESIDENTIAL-LAND 85,000 5,310 5,990 0.256 11,165
Totals - - 588,572 36,780 41,490 0.256 11,165


Account Parcel Account Type Tax Year Buildings Actual Value Local Govt Assessed Value School Assessed Value
R0153487 095914213014 Residential 2026 1 588,572 36,780 41,490

Tax Area District ID District Name Local Govt
Mill Levy
School
Mill Levy
Estimated
Taxes
0600 0700 AIMS JUNIOR COLLEGE 6.313 0.000 $232.19
0600 0411 GREELEY CITY 11.274 0.000 $414.66
0600 1050 HIGH PLAINS LIBRARY 3.044 0.000 $111.96
0600 0301 NORTHERN COLORADO WATER (NCW) 1.000 0.000 $36.78
0600 0206 SCHOOL DIST 6-GREELEY 0.000 47.615 $1,975.55
0600 0100 WELD COUNTY 15.956 0.000 $586.86
Total - - 37.587 47.615 $3,358.00


The estimate of tax is based on the prior year mill levy and the 2025 projected assessment rates. Mill levies and tax estimates will be updated yearly on December 22nd for the current year. Additional information can be found at https://assessor.weld.gov










Select Reports to Print: