Account: R0164090

April 5, 2026

Account Parcel Account Type Tax Year Buildings Actual Value Local Govt Assessed Value School Assessed Value
R0164090 080720102018 Residential 2026 2 484,622 30,290 34,170

Legal
WIN MD-B LOT B MADSEN SUB

Subdivision Block Lot Land Economic Area
MADSEN SUB B ORIGINAL TOWN WINDSOR

Property Address Property City Section Township Range
822 WALNUT ST WINDSOR 20 06 67




Account Parcel Account Type Tax Year Buildings Actual Value Local Govt Assessed Value School Assessed Value
R0164090 080720102018 Residential 2026 2 484,622 30,290 34,170

Account Owner Name Address
R0164090 BISHOP WILLIAM DAVID 548 E SCHRODER DR BAYFIELD, CO 811229629


Account Parcel Account Type Tax Year Buildings Actual Value Local Govt Assessed Value School Assessed Value
R0164090 080720102018 Residential 2026 2 484,622 30,290 34,170

Reception Rec Date Type Grantor Grantee Doc Fee Sale Date Sale Price
2218557 NA SUB SUBDIVISION MADSEN 0.00 NA 0
4490650 05-21-2019 WDNE LUTZ DELORES CASTEN FRED ERNEST; CASTEN KATHERINE MARIE 0.00 05-01-2019 0
4532180 10-14-2019 WDE CASTEN FRED ERNEST; CASTEN KATHERINE MARIE BISHOP WILLIAM DAVID 42.00 10-11-2019 420,000



Account Parcel Account Type Tax Year Buildings Actual Value Local Govt Assessed Value School Assessed Value
R0164090 080720102018 Residential 2026 2 484,622 30,290 34,170

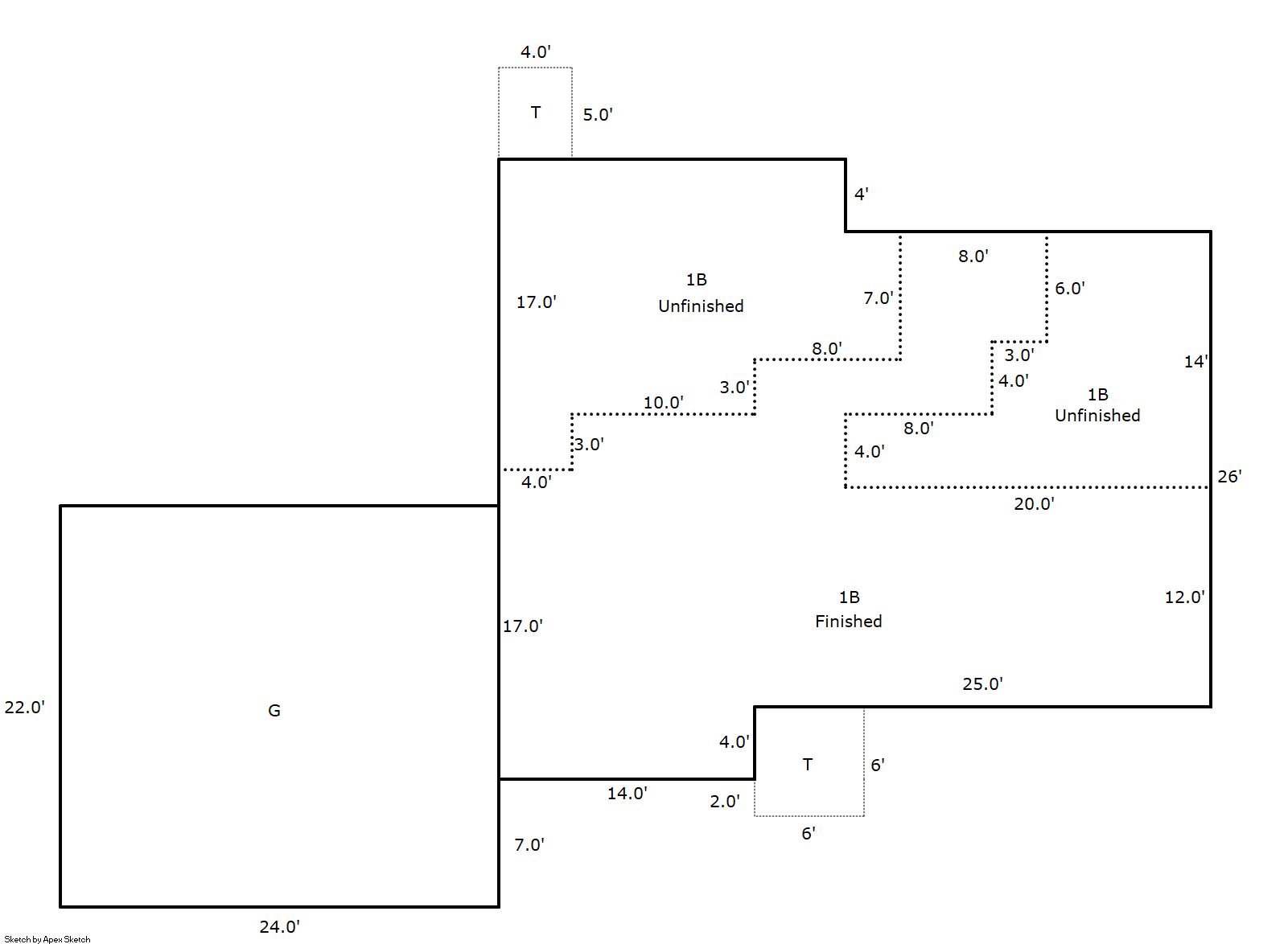
Building 1

AccountNo Building ID Occupancy
R0164090 1 Single Family Residential


ID Type NBHD Occupancy % Complete Bedrooms Baths
1 Residential 2W2007 Single Family Residential 100 3 2.00


ID Exterior Roof Cover Interior HVAC Perimeter Units Unit Type Make
1 Frame Masonry Veneer Composition Shingle Drywall Forced Air 146 0 NA NA


ID Square Ft Condo SF Total Basement SF Finished Basement SF Garage SF Carport SF Balcony SF Porch SF
1 1,146 0 1,146 680 528 0 0 56


Built As Details for Building 1
ID Built As Square Ft Year Built Stories Length Width
1.00 Ranch 1 Story 1,146 1957 1 0 0


Additional Details for Building 1
ID Detail Type Description Units
1 Basement Finished 680.00
1 Basement Total Basement SF 1146.00
1 Fixture Full Bath 2.00
1 Garage Attached 528.00
1 Porch Open Slab 56.00
1 Rough In Rough In 1.00



Building 2

AccountNo Building ID Occupancy
R0164090 2 Detached Garage


ID Type NBHD Occupancy % Complete Bedrooms Baths
2 Out Building NA Detached Garage 100 0 0.00


ID Exterior Roof Cover Interior HVAC Perimeter Units Unit Type Make
2 Frame Masonry Veneer NA NA None 66 0 NA NA


ID Square Ft Condo SF Total Basement SF Finished Basement SF Garage SF Carport SF Balcony SF Porch SF
2 260 0 0 0 0 0 0 0


Built As Details for Building 2
ID Built As Square Ft Year Built Stories Length Width
2.00 Detached Garage 260 1957 1 0 0

No Additional Details for Building 2






Account Parcel Account Type Tax Year Buildings Actual Value Local Govt Assessed Value School Assessed Value
R0164090 080720102018 Residential 2026 2 484,622 30,290 34,170

Type Code Description Actual Value Local Govt Assessed Value School Assessed Value Acres Land SqFt
Improvement 1212 SINGLE FAMILY RESIDENTIAL IMPROVEMENTS 387,622 24,230 27,330 0.000 0
Land 1112 SINGLE FAMILY RESIDENTIAL-LAND 97,000 6,060 6,840 0.278 12,125
Totals - - 484,622 30,290 34,170 0.278 12,125


Account Parcel Account Type Tax Year Buildings Actual Value Local Govt Assessed Value School Assessed Value
R0164090 080720102018 Residential 2026 2 484,622 30,290 34,170

Tax Area District ID District Name Local Govt
Mill Levy
School
Mill Levy
Estimated
Taxes
0420 0700 AIMS JUNIOR COLLEGE 6.313 0.000 $191.22
0420 1051 CLEARVIEW LIBRARY 3.546 0.000 $107.41
0420 0301 NORTHERN COLORADO WATER (NCW) 1.000 0.000 $30.29
0420 0204 SCHOOL DIST RE4-WINDSOR 0.000 46.646 $1,593.89
0420 0100 WELD COUNTY 15.956 0.000 $483.31
0420 0428 WINDSOR TOWN 12.030 0.000 $364.39
0420 0521 WINDSOR-SEVERANCE FIRE 8.535 0.000 $258.53
Total - - 47.38 46.646 $3,029.03


The estimate of tax is based on the prior year mill levy and the 2025 projected assessment rates. Mill levies and tax estimates will be updated yearly on December 22nd for the current year. Additional information can be found at https://assessor.weld.gov










Select Reports to Print: