Account: R0171389
April 1, 2026
| Account | Parcel | Account Type | Tax Year | Buildings | Actual Value | Local Govt Assessed Value | School Assessed Value |
|---|---|---|---|---|---|---|---|
| R0171389 | 095704000028 | Residential | 2026 | 3 | 887,780 | 139,710 | 143,560 |
| Legal |
|---|
| PT NE4NW4 4-5-67 LOT A REC EXEMPT RE-781 (.14R) |
| Subdivision | Block | Lot | Land Economic Area |
|---|---|---|---|
| W GREELEY RURAL |
| Property Address | Property City | Section | Township | Range |
|---|---|---|---|---|
| 8402 COUNTY ROAD 62 | WELD | 04 | 05 | 67 |
| Account | Parcel | Account Type | Tax Year | Buildings | Actual Value | Local Govt Assessed Value | School Assessed Value |
|---|---|---|---|---|---|---|---|
| R0171389 | 095704000028 | Residential | 2026 | 3 | 887,780 | 139,710 | 143,560 |
| Account | Owner Name | Address |
|---|---|---|
| R0171389 | TOO BEES LLC | 335 S SUMMIT VIEW DR FORT COLLINS, CO 805241421 |
| Account | Parcel | Account Type | Tax Year | Buildings | Actual Value | Local Govt Assessed Value | School Assessed Value |
|---|---|---|---|---|---|---|---|
| R0171389 | 095704000028 | Residential | 2026 | 3 | 887,780 | 139,710 | 143,560 |
| Reception | Rec Date | Type | Grantor | Grantee | Doc Fee | Sale Date | Sale Price |
|---|---|---|---|---|---|---|---|
| 01-04-1996 | USR | USE BY SPECIAL REVIEW | USR-1043 STORAGE & MAINT., DELIVERY | 0.00 | NA | 0 | |
| 2031108 | 11-05-1985 | RE | RECORDED EXEMPTION | RE-781 | 0.00 | NA | 0 |
| 2031108 | 11-05-1985 | RE | RE-781 | RE-781 | 0.00 | 11-05-1985 | 0 |
| 2188842 | 08-17-1989 | WD | HICKS LEE & ROSEMARY | HANLON JOSEPH E JR & PAMELA J | 1.25 | 08-15-1989 | 12,500 |
| 2241649 | 02-19-1991 | WD | HANLON JOSEPH E JR & PAMELA J | VON TERSCH TIMOTHY | 1.20 | 02-15-1991 | 12,000 |
| 2294265 | 07-06-1992 | WD | VON TERSCH TIMOTHY | BEMENT GREGORY B & KRISTIE KAY | 1.87 | 07-01-1992 | 18,700 |
| 4044026 | 09-08-2014 | DTHC | BEMENT GREGORY B | BEMENT GREGORY B | 0.00 | 06-04-2013 | 0 |
| 4044036 | 09-08-2014 | QCN | BEMENT KRISTIE KAY | STOCKMAN KRISTIE KAY | 0.00 | 09-08-2014 | 0 |
| 4395427 | 05-02-2018 | AFFD | BEMENT GREGORY B | STOCKMAN KRISTIE KAY | 0.00 | 04-26-2018 | 0 |
| 4395428 | 05-02-2018 | WD | STOCKMAN KRISTIE KAY | JUMA LLC | 50.00 | 04-26-2018 | 500,000 |
| 4402359 | 05-29-2018 | SURV | SURVEY | SURVEY | 0.00 | 05-29-2018 | 0 |
| 4709684 | 04-28-2021 | WD | JUMA LLC | ZAK GEORGE LANDSCAPING LLC | 62.50 | 04-28-2021 | 625,000 |
| 4825666 | 05-09-2022 | QCN | ZAK GEORGE LANDSCAPING LLC | TOO BEES LLC | 0.00 | 03-03-2022 | 0 |
*If the hyperlink for the reception number does not work, try a manual search in the Clerk and Recorder records. Use the Grantor or Grantee in your search.
| Account | Parcel | Account Type | Tax Year | Buildings | Actual Value | Local Govt Assessed Value | School Assessed Value |
|---|---|---|---|---|---|---|---|
| R0171389 | 095704000028 | Residential | 2026 | 3 | 887,780 | 139,710 | 143,560 |
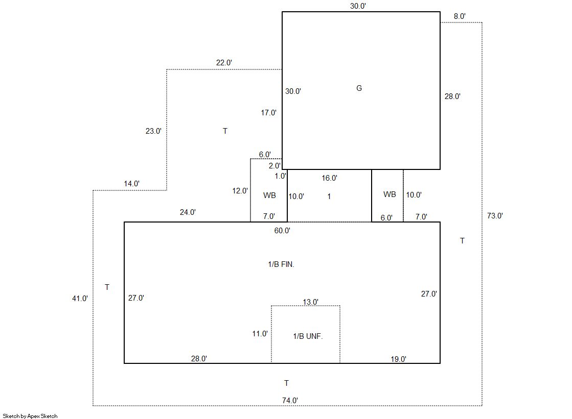
Building 1
| AccountNo | Building ID | Occupancy |
|---|---|---|
| R0171389 | 1 | Single Family Residential |
| ID | Type | NBHD | Occupancy | % Complete | Bedrooms | Baths |
|---|---|---|---|---|---|---|
| 1 | Manufactured Hm | 2R3011 | Single Family Residential | 100 | 5 | 3.00 |
| ID | Exterior | Roof Cover | Interior | HVAC | Perimeter | Units | Unit Type | Make |
|---|---|---|---|---|---|---|---|---|
| 1 | Hardboard Sheet | Shingle Comp | Drywall | Forced Air | 194 | 0 | NA | NA |
| ID | Square Ft | Condo SF | Total Basement SF | Finished Basement SF | Garage SF | Carport SF | Balcony SF | Porch SF |
|---|---|---|---|---|---|---|---|---|
| 1 | 1,780 | 0 | 1,620 | 1,477 | 900 | 0 | 142 | 1994 |
| ID | Built As | Square Ft | Year Built | Stories | Length | Width |
|---|---|---|---|---|---|---|
| 1.00 | Mnfctrd Home 1 Story w/ Additions | 1,780 | 1982 | 1 | 60 | 27 |
| ID | Detail Type | Description | Units |
|---|---|---|---|
| 1 | Balcony | Wood Wood Fin | 142.00 |
| 1 | Basement | Finished | 1477.00 |
| 1 | Basement | Total Basement SF | 1620.00 |
| 1 | Fixture | Full Bath | 3.00 |
| 1 | Garage | Attached | 900.00 |
| 1 | Porch | Open Slab | 1994.00 |
Building 2
| AccountNo | Building ID | Occupancy |
|---|---|---|
| R0171389 | 2 | Warehouse |
| ID | Type | NBHD | Occupancy | % Complete | Bedrooms | Baths |
|---|---|---|---|---|---|---|
| 2 | Commercial | NA | Warehouse | 100 | 0 | 0.00 |
| ID | Exterior | Roof Cover | Interior | HVAC | Perimeter | Units | Unit Type | Make |
|---|---|---|---|---|---|---|---|---|
| 2 | NA | NA | NA | Space Heater | 200 | 0 | NA | NA |
| ID | Square Ft | Condo SF | Total Basement SF | Finished Basement SF | Garage SF | Carport SF | Balcony SF | Porch SF |
|---|---|---|---|---|---|---|---|---|
| 2 | 2,400 | 0 | 0 | 0 | 0 | 0 | 0 | 0 |
| ID | Built As | Square Ft | Year Built | Stories | Length | Width |
|---|---|---|---|---|---|---|
| 2.00 | Storage Warehouse | 2,400 | 1993 | 1 | 0 | 0 |
No Additional Details for Building 2
Building 3
| AccountNo | Building ID | Occupancy |
|---|---|---|
| R0171389 | 3 | Warehouse |
| ID | Type | NBHD | Occupancy | % Complete | Bedrooms | Baths |
|---|---|---|---|---|---|---|
| 3 | Commercial | NA | Warehouse | 100 | 0 | 0.00 |
| ID | Exterior | Roof Cover | Interior | HVAC | Perimeter | Units | Unit Type | Make |
|---|---|---|---|---|---|---|---|---|
| 3 | NA | NA | NA | None | 230 | 0 | NA | NA |
| ID | Square Ft | Condo SF | Total Basement SF | Finished Basement SF | Garage SF | Carport SF | Balcony SF | Porch SF |
|---|---|---|---|---|---|---|---|---|
| 3 | 3,000 | 0 | 0 | 0 | 0 | 0 | 0 | 0 |
| ID | Built As | Square Ft | Year Built | Stories | Length | Width |
|---|---|---|---|---|---|---|
| 3.00 | Storage Warehouse | 3,000 | 2003 | 1 | 0 | 0 |
No Additional Details for Building 3
| Account | Parcel | Account Type | Tax Year | Buildings | Actual Value | Local Govt Assessed Value | School Assessed Value |
|---|---|---|---|---|---|---|---|
| R0171389 | 095704000028 | Residential | 2026 | 3 | 887,780 | 139,710 | 143,560 |
| Type | Code | Description | Actual Value | Local Govt Assessed Value | School Assessed Value | Acres | Land SqFt |
|---|---|---|---|---|---|---|---|
| Improvement | 1212 | SINGLE FAMILY RESIDENTIAL IMPROVEMENTS | 355,815 | 22,240 | 25,080 | 0.000 | 0 |
| Improvement | 2235 | WAREHOUSE/STORAGE-IMPS | 336,634 | 90,890 | 90,890 | 0.000 | 0 |
| Land | 1112 | SINGLE FAMILY RESIDENTIAL-LAND | 126,055 | 7,880 | 8,890 | 1.523 | 66,342 |
| Land | 2135 | WAREHOUSE/STORAGE-LAND | 69,276 | 18,700 | 18,700 | 0.837 | 36,460 |
| Totals | - | - | 887,780 | 139,710 | 143,560 | 2.360 | 102,802 |
Comparable sales for your Residential or Commercial property may be found using our SALES SEARCH TOOL
Values are updated annually on May 1st for Real Property and June 15th for Personal Property and Oil and Gas.
| Account | Parcel | Account Type | Tax Year | Buildings | Actual Value | Local Govt Assessed Value | School Assessed Value |
|---|---|---|---|---|---|---|---|
| R0171389 | 095704000028 | Residential | 2026 | 3 | 887,780 | 139,710 | 143,560 |
| Tax Area | District ID | District Name | Local Govt Mill Levy |
School Mill Levy |
Estimated Taxes |
|---|---|---|---|---|---|
| 0429 | 0700 | AIMS JUNIOR COLLEGE | 6.313 | 0.000 | $881.99 |
| 0429 | 1051 | CLEARVIEW LIBRARY | 3.546 | 0.000 | $495.41 |
| 0429 | 0301 | NORTHERN COLORADO WATER (NCW) | 1.000 | 0.000 | $139.71 |
| 0429 | 0204 | SCHOOL DIST RE4-WINDSOR | 0.000 | 46.646 | $6,696.50 |
| 0429 | 0100 | WELD COUNTY | 15.956 | 0.000 | $2,229.21 |
| 0429 | 1200 | WEST GREELEY CONSERVATION | 0.414 | 0.000 | $57.84 |
| 0429 | 0521 | WINDSOR-SEVERANCE FIRE | 8.535 | 0.000 | $1,192.42 |
| Total | - | - | 35.764 | 46.646 | $11,693.09 |
The estimate of tax is based on the prior year mill levy and the 2025 projected assessment rates. Mill levies and tax estimates will be updated yearly on December 22nd for the current year. Additional information can be found at https://assessor.weld.gov



