Account: R0176490
April 1, 2026
| Account | Parcel | Account Type | Tax Year | Buildings | Actual Value | Local Govt Assessed Value | School Assessed Value |
|---|---|---|---|---|---|---|---|
| R0176490 | 130929000068 | Commercial | 2026 | 3 | 695,851 | 79,460 | 83,630 |
| Legal |
|---|
| PT E2SW4 29-2-66 LOT B REC EXEMPT RE-1123 (.17R) |
| Subdivision | Block | Lot | Land Economic Area |
|---|---|---|---|
| FORT LUPTON RURAL |
| Property Address | Property City | Section | Township | Range |
|---|---|---|---|---|
| 13373 COUNTY ROAD 16 | FORT LUPTON | 29 | 02 | 66 |
| Account | Parcel | Account Type | Tax Year | Buildings | Actual Value | Local Govt Assessed Value | School Assessed Value |
|---|---|---|---|---|---|---|---|
| R0176490 | 130929000068 | Commercial | 2026 | 3 | 695,851 | 79,460 | 83,630 |
| Account | Owner Name | Address |
|---|---|---|
| R0176490 | ALVARADO WILLIAM L | 13373 COUNTY ROAD 16 FORT LUPTON, CO 806219215 |
| R0176490 | BUCCI KELLI |
| Account | Parcel | Account Type | Tax Year | Buildings | Actual Value | Local Govt Assessed Value | School Assessed Value |
|---|---|---|---|---|---|---|---|
| R0176490 | 130929000068 | Commercial | 2026 | 3 | 695,851 | 79,460 | 83,630 |
| Reception | Rec Date | Type | Grantor | Grantee | Doc Fee | Sale Date | Sale Price |
|---|---|---|---|---|---|---|---|
| 02410449 | 10-11-1994 | QCN | 0.00 | 09-01-1993 | 0 | ||
| 2167498 | 01-09-1989 | RE | RE-1123 | RE-1123 | 0.00 | 01-09-1989 | 0 |
| 2167498 | 01-09-1989 | RE | RECORDED EXEMPTION | RE-1123 | 0.00 | NA | 0 |
| 2225710 | 08-31-1990 | WD | ALE PARTNERSHIP | LAND CHERYLE L | 8.70 | 08-27-1990 | 87,000 |
| 2416367 | 11-22-1994 | WD | A L E PARTNERSHIP | HAWLEY JUDY A & RICHARD C | 17.60 | 11-16-1994 | 176,000 |
| 3240665 | 12-02-2004 | WD | HAWLEY JUDY A & RICHARD C | HOLT BUDDY L & | 28.80 | 11-30-2004 | 288,000 |
| 3637679 | 07-21-2009 | AFFD | MILLER DENNIS M | HOLT BUDDY L | 0.00 | 07-30-2009 | 0 |
| 3775951 | 06-24-2011 | WD | HOLT PATRICIA L | MCINTOSH FARM COMPANY | 30.50 | 06-22-2011 | 305,000 |
| 4934321 | 12-07-2023 | SWD | MCINTOSH FARM CO LLLP | ALVARADO WILLIAM L; BUCCI KELLI | 80.60 | 12-05-2023 | 806,000 |
*If the hyperlink for the reception number does not work, try a manual search in the Clerk and Recorder records. Use the Grantor or Grantee in your search.
| Account | Parcel | Account Type | Tax Year | Buildings | Actual Value | Local Govt Assessed Value | School Assessed Value |
|---|---|---|---|---|---|---|---|
| R0176490 | 130929000068 | Commercial | 2026 | 3 | 695,851 | 79,460 | 83,630 |
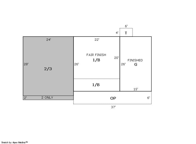
Building 1
| AccountNo | Building ID | Occupancy |
|---|---|---|
| R0176490 | 1 | Single Family Residential |
| ID | Type | NBHD | Occupancy | % Complete | Bedrooms | Baths |
|---|---|---|---|---|---|---|
| 1 | Residential | NA | Single Family Residential | 100 | 4 | 2.00 |
| ID | Exterior | Roof Cover | Interior | HVAC | Perimeter | Units | Unit Type | Make |
|---|---|---|---|---|---|---|---|---|
| 1 | Frame Vinyl | Wood Shake | Drywall | Central Air to Air | 0 | 0 | NA | NA |
| ID | Square Ft | Condo SF | Total Basement SF | Finished Basement SF | Garage SF | Carport SF | Balcony SF | Porch SF |
|---|---|---|---|---|---|---|---|---|
| 1 | 1,964 | 0 | 572 | 440 | 390 | 0 | 0 | 222 |
| ID | Built As | Square Ft | Year Built | Stories | Length | Width |
|---|---|---|---|---|---|---|
| 1.00 | Split Level | 1,964 | 1967 | 1 | 0 | 0 |
| ID | Detail Type | Description | Units |
|---|---|---|---|
| 1 | Add On | Flue Only | 1.00 |
| 1 | Basement | Fair Finish | 440.00 |
| 1 | Basement | Total Basement SF | 572.00 |
| 1 | Fixture | Full Bath | 2.00 |
| 1 | Garage | Attached | 390.00 |
| 1 | Porch | Open Slab | 24.00 |
| 1 | Porch | Slab Roof Ceil | 222.00 |
Building 2
| AccountNo | Building ID | Occupancy |
|---|---|---|
| R0176490 | 2 | Light Commercial Utility |
| ID | Type | NBHD | Occupancy | % Complete | Bedrooms | Baths |
|---|---|---|---|---|---|---|
| 2 | Commercial | 4906 | Light Commercial Utility | 100 | 0 | 0.00 |
| ID | Exterior | Roof Cover | Interior | HVAC | Perimeter | Units | Unit Type | Make |
|---|---|---|---|---|---|---|---|---|
| 2 | NA | NA | NA | None | 92 | 0 | NA | NA |
| ID | Square Ft | Condo SF | Total Basement SF | Finished Basement SF | Garage SF | Carport SF | Balcony SF | Porch SF |
|---|---|---|---|---|---|---|---|---|
| 2 | 520 | 0 | 0 | 0 | 0 | 0 | 0 | 0 |
| ID | Built As | Square Ft | Year Built | Stories | Length | Width |
|---|---|---|---|---|---|---|
| 2.00 | Light Commercial Utility | 520 | 1960 | 1 | 0 | 0 |
No Additional Details for Building 2
Building 3
| AccountNo | Building ID | Occupancy |
|---|---|---|
| R0176490 | 3 | Warehouse |
| ID | Type | NBHD | Occupancy | % Complete | Bedrooms | Baths |
|---|---|---|---|---|---|---|
| 3 | Commercial | 4906 | Warehouse | 100 | 0 | 0.00 |
| ID | Exterior | Roof Cover | Interior | HVAC | Perimeter | Units | Unit Type | Make |
|---|---|---|---|---|---|---|---|---|
| 3 | NA | NA | NA | Space Heater | 256 | 0 | NA | NA |
| ID | Square Ft | Condo SF | Total Basement SF | Finished Basement SF | Garage SF | Carport SF | Balcony SF | Porch SF |
|---|---|---|---|---|---|---|---|---|
| 3 | 3,900 | 0 | 0 | 0 | 0 | 0 | 0 | 0 |
| ID | Built As | Square Ft | Year Built | Stories | Length | Width |
|---|---|---|---|---|---|---|
| 3.00 | Equipment Building-Commercial | 3,900 | 2008 | 1 | 78 | 50 |
No Additional Details for Building 3
| Account | Parcel | Account Type | Tax Year | Buildings | Actual Value | Local Govt Assessed Value | School Assessed Value |
|---|---|---|---|---|---|---|---|
| R0176490 | 130929000068 | Commercial | 2026 | 3 | 695,851 | 79,460 | 83,630 |
| Type | Code | Description | Actual Value | Local Govt Assessed Value | School Assessed Value | Acres | Land SqFt |
|---|---|---|---|---|---|---|---|
| Improvement | 1212 | SINGLE FAMILY RESIDENTIAL IMPROVEMENTS | 470,162 | 29,390 | 33,150 | 0.000 | 0 |
| Improvement | 2235 | WAREHOUSE/STORAGE-IMPS | 57,353 | 15,490 | 15,490 | 0.000 | 0 |
| Land | 1112 | SINGLE FAMILY RESIDENTIAL-LAND | 52,402 | 3,280 | 3,690 | 0.778 | 33,900 |
| Land | 2135 | WAREHOUSE/STORAGE-LAND | 115,934 | 31,300 | 31,300 | 1.722 | 75,000 |
| Totals | - | - | 695,851 | 79,460 | 83,630 | 2.500 | 108,900 |
Comparable sales for your Residential or Commercial property may be found using our SALES SEARCH TOOL
Values are updated annually on May 1st for Real Property and June 15th for Personal Property and Oil and Gas.
| Account | Parcel | Account Type | Tax Year | Buildings | Actual Value | Local Govt Assessed Value | School Assessed Value |
|---|---|---|---|---|---|---|---|
| R0176490 | 130929000068 | Commercial | 2026 | 3 | 695,851 | 79,460 | 83,630 |
| Tax Area | District ID | District Name | Local Govt Mill Levy |
School Mill Levy |
Estimated Taxes |
|---|---|---|---|---|---|
| 2596 | 0700 | AIMS JUNIOR COLLEGE | 6.313 | 0.000 | $501.63 |
| 2596 | 0302 | CENTRAL COLORADO WATER (CCW) | 0.980 | 0.000 | $77.87 |
| 2596 | 0309 | CENTRAL COLORADO WATER SUBDISTRICT (CCS) | 1.462 | 0.000 | $116.17 |
| 2596 | 0407 | FORT LUPTON CITY | 42.931 | 0.000 | $3,411.30 |
| 2596 | 0506 | FORT LUPTON FIRE | 9.357 | 0.000 | $743.51 |
| 2596 | 1050 | HIGH PLAINS LIBRARY | 3.044 | 0.000 | $241.88 |
| 2596 | 0301 | NORTHERN COLORADO WATER (NCW) | 1.000 | 0.000 | $79.46 |
| 2596 | 1201 | PLATTE VALLEY CONSERVATION | 0.000 | 0.000 | $0.00 |
| 2596 | 0208 | SCHOOL DIST RE8-FORT LUPTON AND DACONO | 0.000 | 18.198 | $1,521.90 |
| 2596 | 0100 | WELD COUNTY | 15.956 | 0.000 | $1,267.86 |
| Total | - | - | 81.043 | 18.198 | $7,961.58 |
The estimate of tax is based on the prior year mill levy and the 2025 projected assessment rates. Mill levies and tax estimates will be updated yearly on December 22nd for the current year. Additional information can be found at https://assessor.weld.gov



