Account: R0182594

April 1, 2026

Account Parcel Account Type Tax Year Buildings Actual Value Local Govt Assessed Value School Assessed Value
R0182594 080721416004 Residential 2026 1 442,517 27,660 31,200

Legal
WIN 2WVR11-4 L4 BLK11 REPLAT OF PHASE TWO & THREE WINDSOR VILLAGE 2ND FG

Subdivision Block Lot Land Economic Area
WINDSOR VILLAGE 2ND FG RPLT PHASE 2 & 3 11 4 CORNERSTONE

Property Address Property City Section Township Range
718 LILAC DR WINDSOR 21 06 67




Account Parcel Account Type Tax Year Buildings Actual Value Local Govt Assessed Value School Assessed Value
R0182594 080721416004 Residential 2026 1 442,517 27,660 31,200

Account Owner Name Address
R0182594 FRIHAUF NATHAN A 718 LILAC DR WINDSOR, CO 805505463
R0182594 FRIHAUF SHELLY M


Account Parcel Account Type Tax Year Buildings Actual Value Local Govt Assessed Value School Assessed Value
R0182594 080721416004 Residential 2026 1 442,517 27,660 31,200

Reception Rec Date Type Grantor Grantee Doc Fee Sale Date Sale Price
01828266 06-24-1980 WDN 0.00 06-24-1980 0
02400042 07-29-1994 QCN 0.00 07-28-1994 0
1771486 NA SUB SUBDIVISION WINDSOR VILLAGE 2ND FG RPLT PHASE 2 & 3 0.00 NA 0
2383928 04-15-1994 WD WESTERN CONCRETE PRODUCERS INC SWANSON KIRK R & JULIE A 10.37 04-12-1994 103,700
3021673 01-08-2003 WD SWANSON KIRK R & JULIE A LITTLEJOHN MARGARET 15.00 12-30-2002 150,000
3146714 01-22-2004 WD LITTLEJOHN MARGARET KELLEY CODY L & 18.99 01-20-2004 189,900
4745418 08-12-2021 WD KELLEY DEBORA; KELLEY CODY L ZILLOW HOMES PROPERTY TRUST 46.36 08-10-2021 463,600
4775694 11-12-2021 SWD ZILLOW HOMES PROPERTY TRUST FRIHAUF NATHAN A; FRIHAUF SHELLY M 42.00 11-10-2021 420,000



Account Parcel Account Type Tax Year Buildings Actual Value Local Govt Assessed Value School Assessed Value
R0182594 080721416004 Residential 2026 1 442,517 27,660 31,200

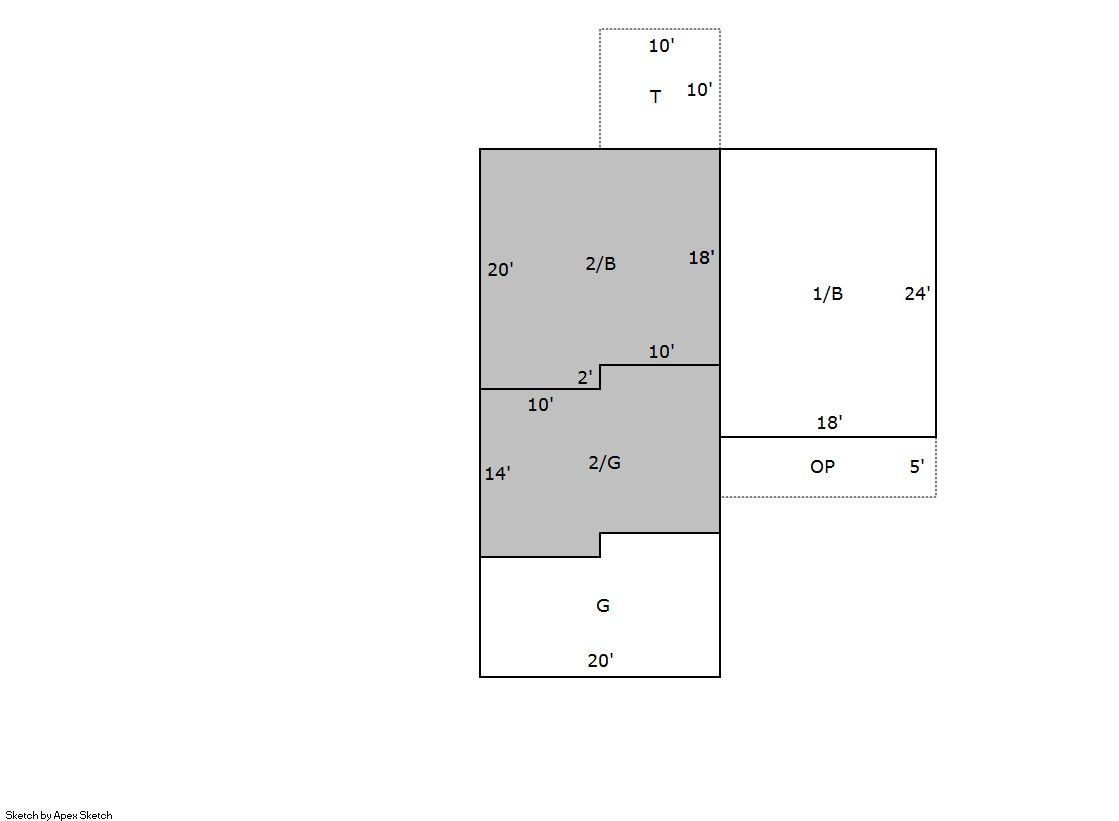
Building 1

AccountNo Building ID Occupancy
R0182594 1 Single Family Residential


ID Type NBHD Occupancy % Complete Bedrooms Baths
1 Residential 2W1005 Single Family Residential 100 3 3.00


ID Exterior Roof Cover Interior HVAC Perimeter Units Unit Type Make
1 Frame Vinyl Composition Shingle Drywall Central Air to Air 0 0 NA NA


ID Square Ft Condo SF Total Basement SF Finished Basement SF Garage SF Carport SF Balcony SF Porch SF
1 1,472 0 812 0 500 0 0 100


Built As Details for Building 1
ID Built As Square Ft Year Built Stories Length Width
1.00 2 Story 1,472 1994 2 0 0


Additional Details for Building 1
ID Detail Type Description Units
1 Add On Fireplace Gas 1.00
1 Basement Total Basement SF 812.00
1 Fixture Full Bath 2.00
1 Fixture Half Bath 1.00
1 Garage Attached 500.00
1 Porch Open Slab 100.00
1 Porch Slab Roof Ceil 90.00
1 Rough In Rough In 1.00





Account Parcel Account Type Tax Year Buildings Actual Value Local Govt Assessed Value School Assessed Value
R0182594 080721416004 Residential 2026 1 442,517 27,660 31,200

Type Code Description Actual Value Local Govt Assessed Value School Assessed Value Acres Land SqFt
Improvement 1212 SINGLE FAMILY RESIDENTIAL IMPROVEMENTS 352,517 22,030 24,850 0.000 0
Land 1112 SINGLE FAMILY RESIDENTIAL-LAND 90,000 5,630 6,350 0.145 6,300
Totals - - 442,517 27,660 31,200 0.145 6,300


Account Parcel Account Type Tax Year Buildings Actual Value Local Govt Assessed Value School Assessed Value
R0182594 080721416004 Residential 2026 1 442,517 27,660 31,200

Tax Area District ID District Name Local Govt
Mill Levy
School
Mill Levy
Estimated
Taxes
0420 0700 AIMS JUNIOR COLLEGE 6.313 0.000 $174.62
0420 1051 CLEARVIEW LIBRARY 3.546 0.000 $98.08
0420 0301 NORTHERN COLORADO WATER (NCW) 1.000 0.000 $27.66
0420 0204 SCHOOL DIST RE4-WINDSOR 0.000 46.646 $1,455.36
0420 0100 WELD COUNTY 15.956 0.000 $441.34
0420 0428 WINDSOR TOWN 12.030 0.000 $332.75
0420 0521 WINDSOR-SEVERANCE FIRE 8.535 0.000 $236.08
Total - - 47.38 46.646 $2,765.89


The estimate of tax is based on the prior year mill levy and the 2025 projected assessment rates. Mill levies and tax estimates will be updated yearly on December 22nd for the current year. Additional information can be found at https://assessor.weld.gov










Select Reports to Print: