Account: R0183089

April 2, 2026

Account Parcel Account Type Tax Year Buildings Actual Value Local Govt Assessed Value School Assessed Value
R0183089 131117004010 Residential 2026 2 513,420 32,090 36,200

Legal
CA4-6 L6 BLK4 CASAGRANDE ESTATES REPLAT

Subdivision Block Lot Land Economic Area
CASAGRANDE ESTATES RPLT 4 6 RANCHETTE SUBDIVISIONS

Property Address Property City Section Township Range
9422 SIERRA VISTA RD WELD 17 02 67




Account Parcel Account Type Tax Year Buildings Actual Value Local Govt Assessed Value School Assessed Value
R0183089 131117004010 Residential 2026 2 513,420 32,090 36,200

Account Owner Name Address
R0183089 RODRIGUEZ JUAN LUIS 9422 SIERRA VISTA RD LONGMONT, CO 805049426


Account Parcel Account Type Tax Year Buildings Actual Value Local Govt Assessed Value School Assessed Value
R0183089 131117004010 Residential 2026 2 513,420 32,090 36,200

Reception Rec Date Type Grantor Grantee Doc Fee Sale Date Sale Price
01741711 01-17-1978 WDN 0.00 01-01-1900 0
2194874 NA SUB SUBDIVISION CASAGRANDE ESTATES RPLT LOT 5-6 0.00 NA 0
4540760 11-12-2019 DTHC LIERMAN TERRY G LIERMAN MARCIA J 0.00 12-28-2016 0
4880527 02-07-2023 BN LIERMAN MARCIA J LIERMAN MARCIA J 0.00 02-06-2023 0
4968086 06-26-2024 WD ADAMSON JAMIE M; LIERMAN BRIAN M; CARBAJAL TRACY J RODRIGUEZ JUAN LUIS 58.50 06-10-2024 585,000
4968089 06-26-2024 DTHC LIERMAN MARCIA J ADAMSON JAMIE M; LIERMAN BRIAN M; CARBAJAL TRACY J 0.00 11-18-2023 0



Account Parcel Account Type Tax Year Buildings Actual Value Local Govt Assessed Value School Assessed Value
R0183089 131117004010 Residential 2026 2 513,420 32,090 36,200

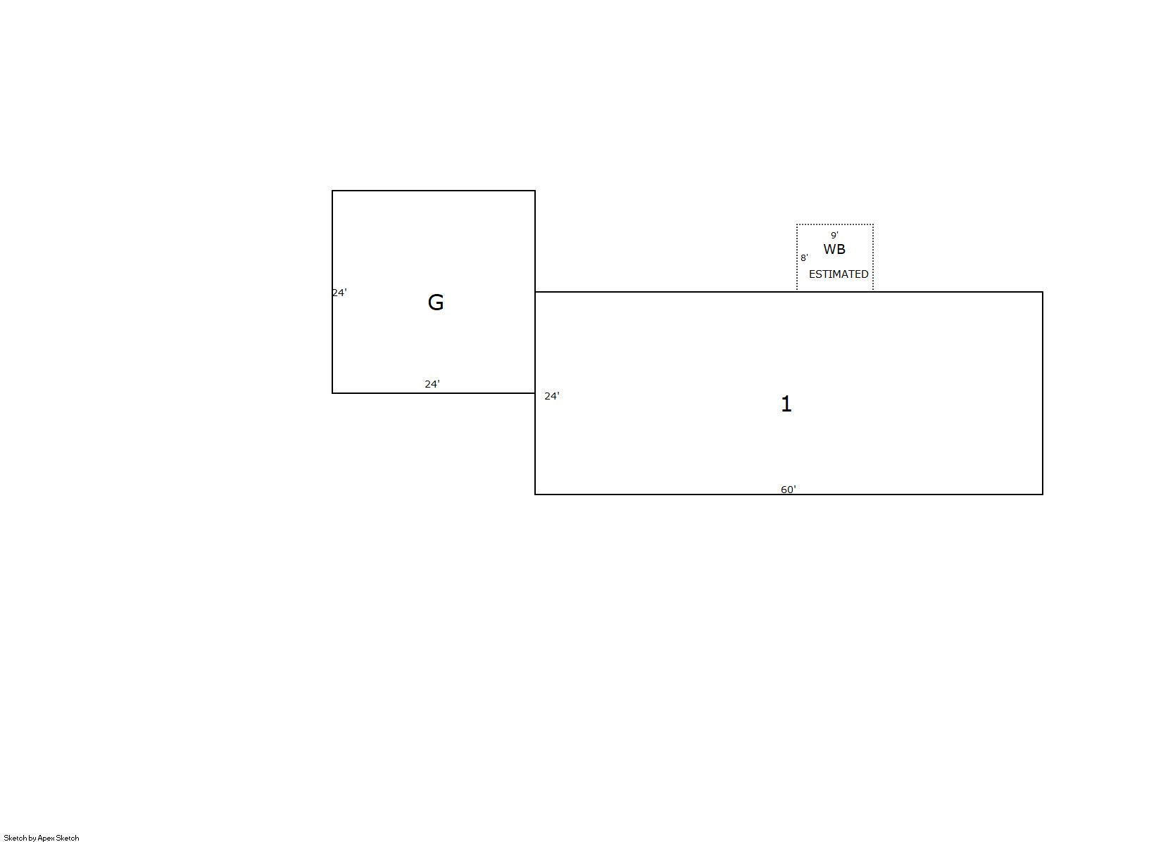
Building 1

AccountNo Building ID Occupancy
R0183089 1 Single Family Residential


ID Type NBHD Occupancy % Complete Bedrooms Baths
1 Residential 3F1035 Single Family Residential 100 3 2.00


ID Exterior Roof Cover Interior HVAC Perimeter Units Unit Type Make
1 Frame Hardboard Composition Shingle Drywall Central Air to Air 168 0 NA NA


ID Square Ft Condo SF Total Basement SF Finished Basement SF Garage SF Carport SF Balcony SF Porch SF
1 1,440 0 0 0 576 0 72 0


Built As Details for Building 1
ID Built As Square Ft Year Built Stories Length Width
1.00 Modular 1 Story 1,440 1974 1 0 0


Additional Details for Building 1
ID Detail Type Description Units
1 Add On Fireplace Wood 1.00
1 Add On Shed Alumium 240.00
1 Balcony Wood Wood Fin 72.00
1 Fixture Full Bath 2.00
1 Garage Attached 576.00



Building 2

AccountNo Building ID Occupancy
R0183089 2 Barn


ID Type NBHD Occupancy % Complete Bedrooms Baths
2 Out Building NA Barn 100 0 0.00


ID Exterior Roof Cover Interior HVAC Perimeter Units Unit Type Make
2 NA NA NA None 108 0 NA NA


ID Square Ft Condo SF Total Basement SF Finished Basement SF Garage SF Carport SF Balcony SF Porch SF
2 720 0 0 0 0 0 0 0


Built As Details for Building 2
ID Built As Square Ft Year Built Stories Length Width
2.00 Barn 720 1977 1 30 24


Additional Details for Building 2
ID Detail Type Description Units
2 Add On OB Loft 720.00





Account Parcel Account Type Tax Year Buildings Actual Value Local Govt Assessed Value School Assessed Value
R0183089 131117004010 Residential 2026 2 513,420 32,090 36,200

Type Code Description Actual Value Local Govt Assessed Value School Assessed Value Acres Land SqFt
Improvement 1212 SINGLE FAMILY RESIDENTIAL IMPROVEMENTS 313,596 19,600 22,110 0.000 0
Land 1112 SINGLE FAMILY RESIDENTIAL-LAND 199,824 12,490 14,090 1.000 43,560
Totals - - 513,420 32,090 36,200 1.000 43,560


Account Parcel Account Type Tax Year Buildings Actual Value Local Govt Assessed Value School Assessed Value
R0183089 131117004010 Residential 2026 2 513,420 32,090 36,200

Tax Area District ID District Name Local Govt
Mill Levy
School
Mill Levy
Estimated
Taxes
2298 0900 CARBON VALLEY REC 4.427 0.000 $142.06
2298 0305 CENTRAL WELD COUNTY WATER (CWC) 0.000 0.000 $0.00
2298 0507 FREDERICK-FIRESTONE FIRE 15.559 0.000 $499.29
2298 1050 HIGH PLAINS LIBRARY 3.044 0.000 $97.68
2298 1202 LONGMONT CONSERVATION 0.000 0.000 $0.00
2298 0301 NORTHERN COLORADO WATER (NCW) 1.000 0.000 $32.09
2298 0213 SCHOOL DIST RE1J-LONGMONT 0.000 57.717 $2,089.36
2298 0100 WELD COUNTY 15.956 0.000 $512.03
Total - - 39.986 57.717 $3,372.51


The estimate of tax is based on the prior year mill levy and the 2025 projected assessment rates. Mill levies and tax estimates will be updated yearly on December 22nd for the current year. Additional information can be found at https://assessor.weld.gov










Select Reports to Print: