Account: R0186795

April 1, 2026

Account Parcel Account Type Tax Year Buildings Actual Value Local Govt Assessed Value School Assessed Value
R0186795 096119313002 Residential 2026 1 412,531 25,780 29,080

Legal
EVS CV L2 BLK3 CHAPPELOW VILLAGE

Subdivision Block Lot Land Economic Area
CHAPPELOW VILLAGE SUB 3 2 CHAPPELOW

Property Address Property City Section Township Range
3205 BALDWIN AVE EVANS 19 05 65




Account Parcel Account Type Tax Year Buildings Actual Value Local Govt Assessed Value School Assessed Value
R0186795 096119313002 Residential 2026 1 412,531 25,780 29,080

Account Owner Name Address
R0186795 ALVARADO MARIA S 3205 BALDWIN AVE EVANS, CO 806203401


Account Parcel Account Type Tax Year Buildings Actual Value Local Govt Assessed Value School Assessed Value
R0186795 096119313002 Residential 2026 1 412,531 25,780 29,080

Reception Rec Date Type Grantor Grantee Doc Fee Sale Date Sale Price
2410015 NA SUB SUBDIVISION CHAPPELOW VILLAGE 0.00 NA 0
2454899 09-11-1995 WD CLARKSON LAND LLC CLARKSON BRADLEY D 3.00 09-01-1995 30,000
2474870 02-05-1996 QCN CLARKSON BRADLEY D LIFESTYLE HOMES INC 0.00 01-18-1996 0
2474871 02-05-1996 WD LIFESTYLE HOMES INC LYNCH RUTH 11.08 01-29-1996 110,800
3781062 07-20-2011 PRD LYNCH RUTH ALVARADO MARIA S 13.20 07-19-2011 132,000



Account Parcel Account Type Tax Year Buildings Actual Value Local Govt Assessed Value School Assessed Value
R0186795 096119313002 Residential 2026 1 412,531 25,780 29,080

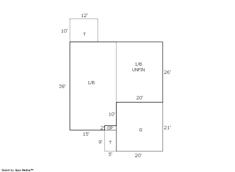
Building 1

AccountNo Building ID Occupancy
R0186795 1 Single Family Residential


ID Type NBHD Occupancy % Complete Bedrooms Baths
1 Residential 6E0025 Single Family Residential 100 4 2.00


ID Exterior Roof Cover Interior HVAC Perimeter Units Unit Type Make
1 Frame Hardboard Composition Shingle Drywall Central Air to Air 0 0 NA NA


ID Square Ft Condo SF Total Basement SF Finished Basement SF Garage SF Carport SF Balcony SF Porch SF
1 1,270 0 1,270 750 420 0 0 10


Built As Details for Building 1
ID Built As Square Ft Year Built Stories Length Width
1.00 Ranch 1 Story 1,270 1996 1 0 0


Additional Details for Building 1
ID Detail Type Description Units
1 Basement Finished 750.00
1 Basement Total Basement SF 1270.00
1 Fixture Full Bath 2.00
1 Garage Attached 420.00
1 Porch Open Slab 165.00
1 Porch Slab Roof Ceil 10.00
1 Rough In Rough In 1.00





Account Parcel Account Type Tax Year Buildings Actual Value Local Govt Assessed Value School Assessed Value
R0186795 096119313002 Residential 2026 1 412,531 25,780 29,080

Type Code Description Actual Value Local Govt Assessed Value School Assessed Value Acres Land SqFt
Improvement 1212 SINGLE FAMILY RESIDENTIAL IMPROVEMENTS 352,531 22,030 24,850 0.000 0
Land 1112 SINGLE FAMILY RESIDENTIAL-LAND 60,000 3,750 4,230 0.139 6,050
Totals - - 412,531 25,780 29,080 0.139 6,050


Account Parcel Account Type Tax Year Buildings Actual Value Local Govt Assessed Value School Assessed Value
R0186795 096119313002 Residential 2026 1 412,531 25,780 29,080

Tax Area District ID District Name Local Govt
Mill Levy
School
Mill Levy
Estimated
Taxes
0650 0700 AIMS JUNIOR COLLEGE 6.313 0.000 $162.75
0650 0405 EVANS CITY 3.536 0.000 $91.16
0650 0534 EVANS FIRE 15.500 0.000 $399.59
0650 1050 HIGH PLAINS LIBRARY 3.044 0.000 $78.47
0650 0301 NORTHERN COLORADO WATER (NCW) 1.000 0.000 $25.78
0650 0206 SCHOOL DIST 6-GREELEY 0.000 47.615 $1,384.64
0650 0100 WELD COUNTY 15.956 0.000 $411.35
Total - - 45.349 47.615 $2,553.74


The estimate of tax is based on the prior year mill levy and the 2025 projected assessment rates. Mill levies and tax estimates will be updated yearly on December 22nd for the current year. Additional information can be found at https://assessor.weld.gov










Select Reports to Print: