Account: R0190394

April 5, 2026

Account Parcel Account Type Tax Year Buildings Actual Value Local Govt Assessed Value School Assessed Value
R0190394 080721419018 Residential 2026 1 457,039 28,570 32,230

Legal
WIN 2WVR14-18 L18 BLK14 REPLAT OF PHASE TWO & THREE WINDSOR VILLAGE 2ND FILING

Subdivision Block Lot Land Economic Area
WINDSOR VILLAGE 2ND FG RPLT PHASE 2 & 3 14 18 CORNERSTONE

Property Address Property City Section Township Range
713 COLUMBINE DR WINDSOR 21 06 67




Account Parcel Account Type Tax Year Buildings Actual Value Local Govt Assessed Value School Assessed Value
R0190394 080721419018 Residential 2026 1 457,039 28,570 32,230

Account Owner Name Address
R0190394 STECHMAN CHRISTOPHER T 713 COLUMBINE DR WINDSOR, CO 805505467
R0190394 BONDE MALLORY P


Account Parcel Account Type Tax Year Buildings Actual Value Local Govt Assessed Value School Assessed Value
R0190394 080721419018 Residential 2026 1 457,039 28,570 32,230

Reception Rec Date Type Grantor Grantee Doc Fee Sale Date Sale Price
02359368 11-12-1993 QCN 0.00 11-04-1993 0
1771486 NA SUB SUBDIVISION WINDSOR VILLAGE 2ND FG RPLT PHASE 2 & 3 0.00 NA 0
2367428 01-04-1994 WD WESTERN CONCRETE PRODUCERS INC THAI MICHEL J & MICHELLE C 8.30 12-29-1993 83,000
2444057 06-26-1995 WD THAI MICHEL J & MICHELLE C SMITH MICHAEL E & MICHELLE R 9.95 06-20-1995 99,500
2898205 11-06-2001 WD SMITH MICHAEL E & MICHELLE R LARSON JOSEPH R & 16.10 10-31-2001 161,000
4385236 03-23-2018 WD LARSON ALLISON M; LARSON JOSEPH R STECHMAN CHRISTOPHER T; BONDE MALLORY P 32.30 03-23-2018 323,000



Account Parcel Account Type Tax Year Buildings Actual Value Local Govt Assessed Value School Assessed Value
R0190394 080721419018 Residential 2026 1 457,039 28,570 32,230

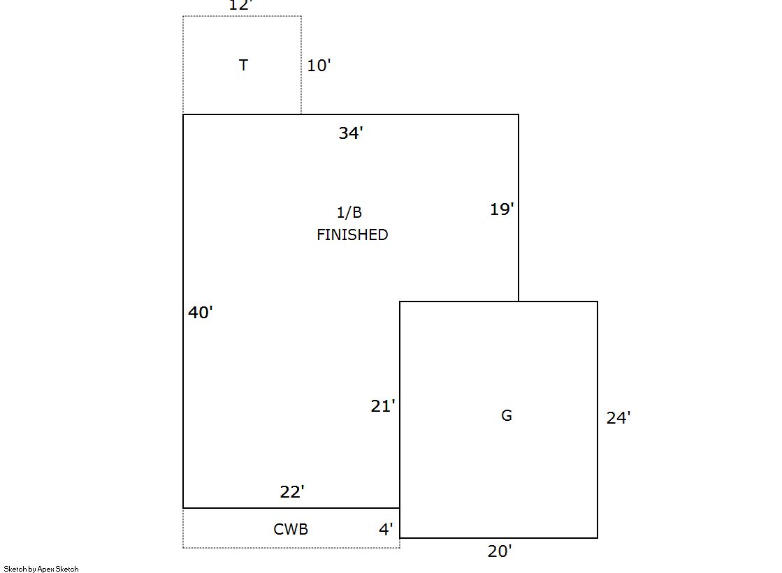
Building 1

AccountNo Building ID Occupancy
R0190394 1 Single Family Residential


ID Type NBHD Occupancy % Complete Bedrooms Baths
1 Residential 2W1005 Single Family Residential 100 4 2.00


ID Exterior Roof Cover Interior HVAC Perimeter Units Unit Type Make
1 Frame Siding Composition Shingle Drywall Central Air to Air 148 0 NA NA


ID Square Ft Condo SF Total Basement SF Finished Basement SF Garage SF Carport SF Balcony SF Porch SF
1 1,108 0 1,108 1,108 480 0 88 120


Built As Details for Building 1
ID Built As Square Ft Year Built Stories Length Width
1.00 Ranch 1 Story 1,108 1993 1 0 0


Additional Details for Building 1
ID Detail Type Description Units
1 Balcony Cover Wood Balc 88.00
1 Basement Finished 1108.00
1 Basement Total Basement SF 1108.00
1 Fixture Full Bath 2.00
1 Garage Attached 480.00
1 Porch Open Slab 120.00





Account Parcel Account Type Tax Year Buildings Actual Value Local Govt Assessed Value School Assessed Value
R0190394 080721419018 Residential 2026 1 457,039 28,570 32,230

Type Code Description Actual Value Local Govt Assessed Value School Assessed Value Acres Land SqFt
Improvement 1212 SINGLE FAMILY RESIDENTIAL IMPROVEMENTS 367,039 22,940 25,880 0.000 0
Land 1112 SINGLE FAMILY RESIDENTIAL-LAND 90,000 5,630 6,350 0.156 6,812
Totals - - 457,039 28,570 32,230 0.156 6,812


Account Parcel Account Type Tax Year Buildings Actual Value Local Govt Assessed Value School Assessed Value
R0190394 080721419018 Residential 2026 1 457,039 28,570 32,230

Tax Area District ID District Name Local Govt
Mill Levy
School
Mill Levy
Estimated
Taxes
0420 0700 AIMS JUNIOR COLLEGE 6.313 0.000 $180.36
0420 1051 CLEARVIEW LIBRARY 3.546 0.000 $101.31
0420 0301 NORTHERN COLORADO WATER (NCW) 1.000 0.000 $28.57
0420 0204 SCHOOL DIST RE4-WINDSOR 0.000 46.646 $1,503.40
0420 0100 WELD COUNTY 15.956 0.000 $455.86
0420 0428 WINDSOR TOWN 12.030 0.000 $343.70
0420 0521 WINDSOR-SEVERANCE FIRE 8.535 0.000 $243.84
Total - - 47.38 46.646 $2,857.05


The estimate of tax is based on the prior year mill levy and the 2025 projected assessment rates. Mill levies and tax estimates will be updated yearly on December 22nd for the current year. Additional information can be found at https://assessor.weld.gov










Select Reports to Print: