Account: R0199594

April 1, 2026

Account Parcel Account Type Tax Year Buildings Actual Value Local Govt Assessed Value School Assessed Value
R0199594 080717306004 Residential 2026 1 644,625 40,290 45,440

Legal
WIN 4WM-4 L4 WINDSOR MANOR 4TH FILING

Subdivision Block Lot Land Economic Area
WINDSOR MANOR SUB 4TH FG 4 WINDSOR MANOR

Property Address Property City Section Township Range
230 13TH ST WINDSOR 17 06 67




Account Parcel Account Type Tax Year Buildings Actual Value Local Govt Assessed Value School Assessed Value
R0199594 080717306004 Residential 2026 1 644,625 40,290 45,440

Account Owner Name Address
R0199594 VASA MEREDITH 230 13TH ST WINDSOR, CO 805504609
R0199594 VASA MICHAEL


Account Parcel Account Type Tax Year Buildings Actual Value Local Govt Assessed Value School Assessed Value
R0199594 080717306004 Residential 2026 1 644,625 40,290 45,440

Reception Rec Date Type Grantor Grantee Doc Fee Sale Date Sale Price
02348115 08-30-1993 WD FDM LTD LIABILITY CO OCHSNER ROBERT F 6.00 08-27-1993 60,000
02367968 01-06-1994 WD OCHSNER ROBERT F GIORGIONE PIETRO & MAUREEN S 4.60 01-06-1994 46,000
2330609 NA SUB SUBDIVISION WINDSOR MANOR 4TH FG 0.00 NA 0
2391352 06-01-1994 WD GIORGIONE PIETRO & MAUREEN S HORCHAK DOUGLAS R & TANYA N 14.54 05-31-1994 145,400
2811397 12-06-2000 WD HORCHAK DOUGLAS R & TANYA N KUYPER JERRY J & PATRICIA E 24.90 11-30-2000 249,000
3270059 03-21-2005 WD KUYPER JERRY J & PATRICIA E GILLIAM DANNY V 29.80 03-15-2005 298,000
3419729 09-14-2006 WDN GILLIAM DANNY V SAFE HARBOR LLC 0.00 08-15-2005 0
3571036 08-07-2008 QCN SAFE HARBOR LLC GILLIAM DANNY V 0.00 07-29-2008 0
3610835 03-16-2009 QCN SAFE HARBOR LLC GILLIAM DANNY V 0.00 03-10-2009 0
3610836 03-16-2009 WD GILLIAM DANNY V SHIRK MATTHEW MARTIN 24.00 03-10-2009 240,000
3899361 12-28-2012 QCN SHIRK MATHEW MARTIN SHIRK RACHELLE ANN 0.00 12-14-2012 0
4117965 06-23-2015 WD SHIRK RACHELLE ANN LAWTON MEREDITH; VASA MICHAEL 35.00 06-16-2015 350,000
4237032 09-15-2016 QCN LAWTON MEREDITH VASA MEREDITH 0.00 09-02-2016 0



Account Parcel Account Type Tax Year Buildings Actual Value Local Govt Assessed Value School Assessed Value
R0199594 080717306004 Residential 2026 1 644,625 40,290 45,440

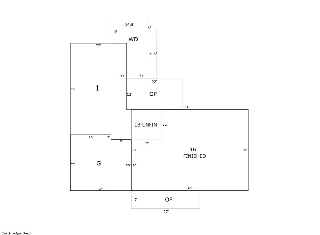
Building 1

AccountNo Building ID Occupancy
R0199594 1 Single Family Residential


ID Type NBHD Occupancy % Complete Bedrooms Baths
1 Residential 2W1002 Single Family Residential 100 5 4.00


ID Exterior Roof Cover Interior HVAC Perimeter Units Unit Type Make
1 Frame Masonry Veneer Composition Shingle Drywall Central Air to Air 256 0 NA NA


ID Square Ft Condo SF Total Basement SF Finished Basement SF Garage SF Carport SF Balcony SF Porch SF
1 2,300 0 1,472 1,328 512 0 0 325


Built As Details for Building 1
ID Built As Square Ft Year Built Stories Length Width
1.00 Ranch 1 Story 2,300 1994 1 0 0


Additional Details for Building 1
ID Detail Type Description Units
1 Add On Fireplace Gas 2.00
1 Basement Finished 1328.00
1 Basement Total Basement SF 1472.00
1 Fixture Full Bath 4.00
1 Garage Attached 512.00
1 Porch Slab Roof Ceil 453.00
1 Porch Wood Deck 325.00





Account Parcel Account Type Tax Year Buildings Actual Value Local Govt Assessed Value School Assessed Value
R0199594 080717306004 Residential 2026 1 644,625 40,290 45,440

Type Code Description Actual Value Local Govt Assessed Value School Assessed Value Acres Land SqFt
Improvement 1212 SINGLE FAMILY RESIDENTIAL IMPROVEMENTS 539,625 33,730 38,040 0.000 0
Land 1112 SINGLE FAMILY RESIDENTIAL-LAND 105,000 6,560 7,400 0.210 9,127
Totals - - 644,625 40,290 45,440 0.210 9,127


Account Parcel Account Type Tax Year Buildings Actual Value Local Govt Assessed Value School Assessed Value
R0199594 080717306004 Residential 2026 1 644,625 40,290 45,440

Tax Area District ID District Name Local Govt
Mill Levy
School
Mill Levy
Estimated
Taxes
0421 0700 AIMS JUNIOR COLLEGE 6.313 0.000 $254.35
0421 1051 CLEARVIEW LIBRARY 3.546 0.000 $142.87
0421 0304 NORTH WELD COUNTY WATER (NWC) 0.000 0.000 $0.00
0421 0301 NORTHERN COLORADO WATER (NCW) 1.000 0.000 $40.29
0421 0204 SCHOOL DIST RE4-WINDSOR 0.000 46.646 $2,119.59
0421 0100 WELD COUNTY 15.956 0.000 $642.87
0421 0428 WINDSOR TOWN 12.030 0.000 $484.69
0421 0521 WINDSOR-SEVERANCE FIRE 8.535 0.000 $343.88
Total - - 47.38 46.646 $4,028.53


The estimate of tax is based on the prior year mill levy and the 2025 projected assessment rates. Mill levies and tax estimates will be updated yearly on December 22nd for the current year. Additional information can be found at https://assessor.weld.gov










Select Reports to Print: