Account: R0239294
April 4, 2026
| Account | Parcel | Account Type | Tax Year | Buildings | Actual Value | Local Govt Assessed Value | School Assessed Value |
|---|---|---|---|---|---|---|---|
| R0239294 | 105911233007 | Residential | 2026 | 1 | 477,069 | 29,820 | 33,640 |
| Legal |
|---|
| MIL W83-7 L7 BLK83 REPLAT PORTION WAL MAR SUB |
| Subdivision | Block | Lot | Land Economic Area |
|---|---|---|---|
| WAL MAR SUB RPLT | 83 | 7 | WAL MAR |
| Property Address | Property City | Section | Township | Range |
|---|---|---|---|---|
| 306 S OLIVE AVE | MILLIKEN | 11 | 04 | 67 |
| Account | Parcel | Account Type | Tax Year | Buildings | Actual Value | Local Govt Assessed Value | School Assessed Value |
|---|---|---|---|---|---|---|---|
| R0239294 | 105911233007 | Residential | 2026 | 1 | 477,069 | 29,820 | 33,640 |
| Account | Owner Name | Address |
|---|---|---|
| R0239294 | PAPE ANNEMARIE | 306 S OLIVE AVE MILLIKEN, CO 805438014 |
| Account | Parcel | Account Type | Tax Year | Buildings | Actual Value | Local Govt Assessed Value | School Assessed Value |
|---|---|---|---|---|---|---|---|
| R0239294 | 105911233007 | Residential | 2026 | 1 | 477,069 | 29,820 | 33,640 |
| Reception | Rec Date | Type | Grantor | Grantee | Doc Fee | Sale Date | Sale Price |
|---|---|---|---|---|---|---|---|
| 01984759 | NA | PRDN | 0.00 | 01-01-1900 | 0 | ||
| 02404672 | 08-30-1994 | QCN | 0.00 | 08-12-1994 | 0 | ||
| 1728061 | NA | SUB | SUBDIVISION | WAL MAR 1ST RPLT | 0.00 | NA | 0 |
| 2393284 | 06-14-1994 | WD | SEELE WALTER F | BRENT RICKEY L & SALLY A | 0.92 | 05-10-1994 | 9,200 |
| 2404673 | 08-30-1994 | WD | IVORY ENTERPRISES | JONES STEVEN RAY & WENDY L | 9.37 | 08-13-1994 | 93,700 |
| 2701529 | 06-21-1999 | WD | JONES STEVEN RAY & WENDY L | LYNCH GREGORY A & CAROL A | 14.10 | 06-18-1999 | 141,000 |
| 3309200 | 08-03-2005 | PTD | LYNCH GREGORY A & CAROL A | PURCELL KAYLENE S | 0.00 | 08-03-2005 | 0 |
| 4388088 | 04-04-2018 | WD | PURCELL KAYLENE S | BOSCH DILLON | 28.85 | 04-03-2018 | 288,500 |
| 4691114 | 03-10-2021 | SWD | BOSCH DILLON | PAPE ANNEMARIE | 32.30 | 03-01-2021 | 323,000 |
*If the hyperlink for the reception number does not work, try a manual search in the Clerk and Recorder records. Use the Grantor or Grantee in your search.
| Account | Parcel | Account Type | Tax Year | Buildings | Actual Value | Local Govt Assessed Value | School Assessed Value |
|---|---|---|---|---|---|---|---|
| R0239294 | 105911233007 | Residential | 2026 | 1 | 477,069 | 29,820 | 33,640 |
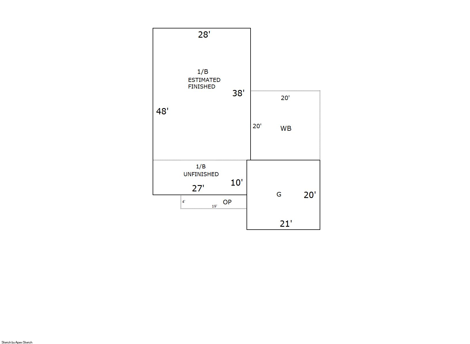
Building 1
| AccountNo | Building ID | Occupancy |
|---|---|---|
| R0239294 | 1 | Single Family Residential |
| ID | Type | NBHD | Occupancy | % Complete | Bedrooms | Baths |
|---|---|---|---|---|---|---|
| 1 | Residential | 0M2071 | Single Family Residential | 100 | 4 | 3.00 |
| ID | Exterior | Roof Cover | Interior | HVAC | Perimeter | Units | Unit Type | Make |
|---|---|---|---|---|---|---|---|---|
| 1 | Frame Hardboard | Composition Shingle | Drywall | Forced Air | 152 | 0 | NA | NA |
| ID | Square Ft | Condo SF | Total Basement SF | Finished Basement SF | Garage SF | Carport SF | Balcony SF | Porch SF |
|---|---|---|---|---|---|---|---|---|
| 1 | 1,334 | 0 | 1,334 | 1,064 | 420 | 0 | 400 | 76 |
| ID | Built As | Square Ft | Year Built | Stories | Length | Width |
|---|---|---|---|---|---|---|
| 1.00 | Ranch 1 Story | 1,334 | 1994 | 1 | 0 | 0 |
| ID | Detail Type | Description | Units |
|---|---|---|---|
| 1 | Add On | Fireplace Wood | 1.00 |
| 1 | Balcony | Wood Wood Fin | 400.00 |
| 1 | Basement | Finished | 1064.00 |
| 1 | Basement | Total Basement SF | 1334.00 |
| 1 | Fixture | Full Bath | 3.00 |
| 1 | Garage | Attached | 420.00 |
| 1 | Porch | Slab Roof Ceil | 76.00 |
| Account | Parcel | Account Type | Tax Year | Buildings | Actual Value | Local Govt Assessed Value | School Assessed Value |
|---|---|---|---|---|---|---|---|
| R0239294 | 105911233007 | Residential | 2026 | 1 | 477,069 | 29,820 | 33,640 |
| Type | Code | Description | Actual Value | Local Govt Assessed Value | School Assessed Value | Acres | Land SqFt |
|---|---|---|---|---|---|---|---|
| Improvement | 1212 | SINGLE FAMILY RESIDENTIAL IMPROVEMENTS | 383,069 | 23,940 | 27,010 | 0.000 | 0 |
| Land | 1112 | SINGLE FAMILY RESIDENTIAL-LAND | 94,000 | 5,880 | 6,630 | 0.187 | 8,125 |
| Totals | - | - | 477,069 | 29,820 | 33,640 | 0.187 | 8,125 |
Comparable sales for your Residential or Commercial property may be found using our SALES SEARCH TOOL
Values are updated annually on May 1st for Real Property and June 15th for Personal Property and Oil and Gas.
| Account | Parcel | Account Type | Tax Year | Buildings | Actual Value | Local Govt Assessed Value | School Assessed Value |
|---|---|---|---|---|---|---|---|
| R0239294 | 105911233007 | Residential | 2026 | 1 | 477,069 | 29,820 | 33,640 |
| Tax Area | District ID | District Name | Local Govt Mill Levy |
School Mill Levy |
Estimated Taxes |
|---|---|---|---|---|---|
| 5731 | 0700 | AIMS JUNIOR COLLEGE | 6.313 | 0.000 | $188.25 |
| 5731 | 0510 | FRONT RANGE FIRE RESCUE FIRE PROTECTION DISTRICT | 11.483 | 0.000 | $342.42 |
| 5731 | 1050 | HIGH PLAINS LIBRARY | 3.044 | 0.000 | $90.77 |
| 5731 | 0306 | LITTLE THOMPSON WATER (LTW) | 0.000 | 0.000 | $0.00 |
| 5731 | 0421 | MILLIKEN TOWN | 26.301 | 0.000 | $784.30 |
| 5731 | 0301 | NORTHERN COLORADO WATER (NCW) | 1.000 | 0.000 | $29.82 |
| 5731 | 0205 | SCHOOL DIST RE5J-JOHNSTOWN | 0.000 | 36.271 | $1,220.16 |
| 5731 | 0901 | THOMPSON RIVER REC | 3.594 | 0.000 | $107.17 |
| 5731 | 0100 | WELD COUNTY | 15.956 | 0.000 | $475.81 |
| Total | - | - | 67.691 | 36.271 | $3,238.70 |
The estimate of tax is based on the prior year mill levy and the 2025 projected assessment rates. Mill levies and tax estimates will be updated yearly on December 22nd for the current year. Additional information can be found at https://assessor.weld.gov


