Account: R0243295

April 1, 2026

Account Parcel Account Type Tax Year Buildings Actual Value Local Govt Assessed Value School Assessed Value
R0243295 080721119011 Residential 2026 1 389,347 24,340 27,450

Legal
WIN GE1-11 L11 BLK1 GARDEN EAST

Subdivision Block Lot Land Economic Area
GARDEN EAST SUB 1 11 CORNERSTONE

Property Address Property City Section Township Range
614 CORNERSTONE DR WINDSOR 21 06 67




Account Parcel Account Type Tax Year Buildings Actual Value Local Govt Assessed Value School Assessed Value
R0243295 080721119011 Residential 2026 1 389,347 24,340 27,450

Account Owner Name Address
R0243295 614 CORNERSTONE DRIVE LLC 2413 TURNBERRY RD FORT COLLINS, CO 805244616


Account Parcel Account Type Tax Year Buildings Actual Value Local Govt Assessed Value School Assessed Value
R0243295 080721119011 Residential 2026 1 389,347 24,340 27,450

Reception Rec Date Type Grantor Grantee Doc Fee Sale Date Sale Price
02382714 04-08-1994 WDN 0.00 03-01-1994 0
2407599 NA SUB SUBDIVISION GARDEN EAST 0.00 NA 0
2426563 02-14-1995 WD SMITH-OBEROI DEVELOPMENT LLC WEST WILLIAM D II 2.18 02-10-1995 21,800
2448405 07-26-1995 WD WEST WILLIAM D II SAMPSON MARY B 9.65 07-24-1995 96,500
2529521 01-16-1997 WD SAMPSON MARY B JARAMILLO TROY A & STANSFIELD 10.79 01-13-1997 107,900
2779243 07-07-2000 DTHC JARAMILLO TROY A JARAMILLO TROY A (HEIRS OF) & 0.00 06-25-1999 0
2779245 07-07-2000 PRD JARAMILLO TROY A (HEIRS OF) STANSFIELD STEPHEN B & CYNTHIA 4.28 07-06-2000 42,800
3908886 02-08-2013 SWDNE STANSFIELD STEPHEN B 614 CORNERSTONE DRIVE LLC 0.00 01-16-2013 0



Account Parcel Account Type Tax Year Buildings Actual Value Local Govt Assessed Value School Assessed Value
R0243295 080721119011 Residential 2026 1 389,347 24,340 27,450

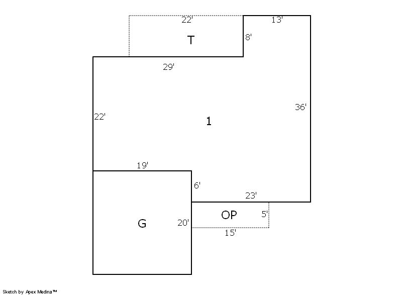
Building 1

AccountNo Building ID Occupancy
R0243295 1 Single Family Residential


ID Type NBHD Occupancy % Complete Bedrooms Baths
1 Residential 2W1005 Single Family Residential 100 3 2.00


ID Exterior Roof Cover Interior HVAC Perimeter Units Unit Type Make
1 Frame Hardboard Composition Shingle Drywall Forced Air 0 0 NA NA


ID Square Ft Condo SF Total Basement SF Finished Basement SF Garage SF Carport SF Balcony SF Porch SF
1 1,166 0 0 0 380 0 0 176


Built As Details for Building 1
ID Built As Square Ft Year Built Stories Length Width
1.00 Ranch 1 Story 1,166 1995 1 0 0


Additional Details for Building 1
ID Detail Type Description Units
1 Fixture Full Bath 2.00
1 Garage Attached 380.00
1 Porch Open Slab 176.00
1 Porch Slab Roof Ceil 75.00





Account Parcel Account Type Tax Year Buildings Actual Value Local Govt Assessed Value School Assessed Value
R0243295 080721119011 Residential 2026 1 389,347 24,340 27,450

Type Code Description Actual Value Local Govt Assessed Value School Assessed Value Acres Land SqFt
Improvement 1212 SINGLE FAMILY RESIDENTIAL IMPROVEMENTS 299,347 18,710 21,100 0.000 0
Land 1112 SINGLE FAMILY RESIDENTIAL-LAND 90,000 5,630 6,350 0.161 7,000
Totals - - 389,347 24,340 27,450 0.161 7,000


Account Parcel Account Type Tax Year Buildings Actual Value Local Govt Assessed Value School Assessed Value
R0243295 080721119011 Residential 2026 1 389,347 24,340 27,450

Tax Area District ID District Name Local Govt
Mill Levy
School
Mill Levy
Estimated
Taxes
0436 0700 AIMS JUNIOR COLLEGE 6.313 0.000 $153.66
0436 1051 CLEARVIEW LIBRARY 3.546 0.000 $86.31
0436 0301 NORTHERN COLORADO WATER (NCW) 1.000 0.000 $24.34
0436 0204 SCHOOL DIST RE4-WINDSOR 0.000 46.646 $1,280.43
0436 0100 WELD COUNTY 15.956 0.000 $388.37
0436 1200 WEST GREELEY CONSERVATION 0.414 0.000 $10.08
0436 0428 WINDSOR TOWN 12.030 0.000 $292.81
0436 0521 WINDSOR-SEVERANCE FIRE 8.535 0.000 $207.74
Total - - 47.794 46.646 $2,443.74


The estimate of tax is based on the prior year mill levy and the 2025 projected assessment rates. Mill levies and tax estimates will be updated yearly on December 22nd for the current year. Additional information can be found at https://assessor.weld.gov










Select Reports to Print: