Account: R0275101

April 1, 2026

Account Parcel Account Type Tax Year Buildings Actual Value Local Govt Assessed Value School Assessed Value
R0275101 147135226005 Residential 2026 1 458,286 28,640 32,310

Legal
LOC 1SP L5 BLK98 SILVER PEAKS FG 1

Subdivision Block Lot Land Economic Area
SILVER PEAKS FG#1 98 5 SILVERPEAKS

Property Address Property City Section Township Range
1824 RUBY CT LOCHBUIE 35 01 66




Account Parcel Account Type Tax Year Buildings Actual Value Local Govt Assessed Value School Assessed Value
R0275101 147135226005 Residential 2026 1 458,286 28,640 32,310

Account Owner Name Address
R0275101 RIVERA ZURIEL VAZQUEZ 1824 RUBY CT BRIGHTON, CO 806035937
R0275101 ALVEAR GILISSA


Account Parcel Account Type Tax Year Buildings Actual Value Local Govt Assessed Value School Assessed Value
R0275101 147135226005 Residential 2026 1 458,286 28,640 32,310

Reception Rec Date Type Grantor Grantee Doc Fee Sale Date Sale Price
2805360 NA SUB SUBDIVISION SILVER PEAKS FG 1 0.00 NA 0
4121148 07-02-2015 SWD SP LOCHBUIE LLC WM SUB SILP LLC 785.03 07-13-2015 7,850,300
4416559 07-19-2018 SWD WM SUB SILP LLC MELODY HOMES INC 648.02 07-19-2018 6,480,200
4455722 12-21-2018 SWD MELODY HOMES INC ULRICKSON TYLER F; BAUER EMILY R 33.79 12-20-2018 337,900
5006782 01-21-2025 WD ULRICKSON TYLER F; BAUER EMILY R RIVERA ZURIEL VAZQUEZ; ALVEAR GILISSA 46.70 01-07-2025 467,000



Account Parcel Account Type Tax Year Buildings Actual Value Local Govt Assessed Value School Assessed Value
R0275101 147135226005 Residential 2026 1 458,286 28,640 32,310

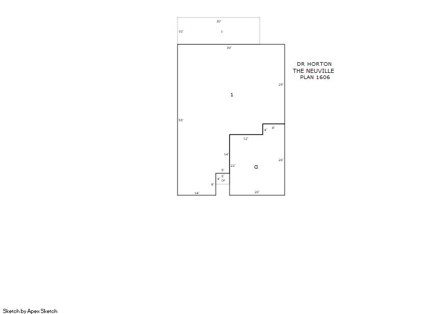
Building 1

AccountNo Building ID Occupancy
R0275101 1 Single Family Residential


ID Type NBHD Occupancy % Complete Bedrooms Baths
1 Residential 4L0000 Single Family Residential 100 3 2.00


ID Exterior Roof Cover Interior HVAC Perimeter Units Unit Type Make
1 Frame Siding Composition Shingle Drywall Central Air to Air 188 0 NA NA


ID Square Ft Condo SF Total Basement SF Finished Basement SF Garage SF Carport SF Balcony SF Porch SF
1 1,633 0 0 0 472 0 0 20


Built As Details for Building 1
ID Built As Square Ft Year Built Stories Length Width
1.00 Ranch 1 Story 1,633 2018 1 0 0


Additional Details for Building 1
ID Detail Type Description Units
1 Fixture Full Bath 2.00
1 Garage Attached 472.00
1 Porch Open Slab 300.00
1 Porch Slab Roof Ceil 20.00





Account Parcel Account Type Tax Year Buildings Actual Value Local Govt Assessed Value School Assessed Value
R0275101 147135226005 Residential 2026 1 458,286 28,640 32,310

Type Code Description Actual Value Local Govt Assessed Value School Assessed Value Acres Land SqFt
Improvement 1212 SINGLE FAMILY RESIDENTIAL IMPROVEMENTS 333,286 20,830 23,500 0.000 0
Land 1112 SINGLE FAMILY RESIDENTIAL-LAND 125,000 7,810 8,810 0.196 8,538
Totals - - 458,286 28,640 32,310 0.196 8,538


Account Parcel Account Type Tax Year Buildings Actual Value Local Govt Assessed Value School Assessed Value
R0275101 147135226005 Residential 2026 1 458,286 28,640 32,310

Tax Area District ID District Name Local Govt
Mill Levy
School
Mill Levy
Estimated
Taxes
3485 0700 AIMS JUNIOR COLLEGE 6.313 0.000 $180.80
3485 0302 CENTRAL COLORADO WATER (CCW) 0.980 0.000 $28.07
3485 0503 GREATER BRIGHTON FIRE 17.504 0.000 $501.31
3485 1050 HIGH PLAINS LIBRARY 3.044 0.000 $87.18
3485 0419 LOCHBUIE TOWN 6.443 0.000 $184.53
3485 0203 SCHOOL DIST RE3J-KEENESBURG 0.000 15.822 $511.21
3485 1325 SILVER PEAKS METRO DIST 2 76.698 0.000 $2,196.63
3485 0100 WELD COUNTY 15.956 0.000 $456.98
Total - - 126.938 15.822 $4,146.71


The estimate of tax is based on the prior year mill levy and the 2025 projected assessment rates. Mill levies and tax estimates will be updated yearly on December 22nd for the current year. Additional information can be found at https://assessor.weld.gov










Select Reports to Print: