Account: R0282601
April 4, 2026
| Account | Parcel | Account Type | Tax Year | Buildings | Actual Value | Local Govt Assessed Value | School Assessed Value |
|---|---|---|---|---|---|---|---|
| R0282601 | 080728117018 | Residential | 2026 | 1 | 412,025 | 25,750 | 29,050 |
| Legal |
|---|
| WIN 7WV L18 BLK1 WATER VALLEY 7 FG |
| Subdivision | Block | Lot | Land Economic Area |
|---|---|---|---|
| WATER VALLEY SUB 7TH FG | 1 | 18 | WATER VALLEY NORTH PATIO HOMES |
| Property Address | Property City | Section | Township | Range |
|---|---|---|---|---|
| 1360 SAGINAW POINTE DR | WINDSOR | 28 | 06 | 67 |
| Account | Parcel | Account Type | Tax Year | Buildings | Actual Value | Local Govt Assessed Value | School Assessed Value |
|---|---|---|---|---|---|---|---|
| R0282601 | 080728117018 | Residential | 2026 | 1 | 412,025 | 25,750 | 29,050 |
| Account | Owner Name | Address |
|---|---|---|
| R0282601 | 1360 SAG PT LLC | 13536 W UTAH AVE LAKEWOOD, CO 802284107 |
| Account | Parcel | Account Type | Tax Year | Buildings | Actual Value | Local Govt Assessed Value | School Assessed Value |
|---|---|---|---|---|---|---|---|
| R0282601 | 080728117018 | Residential | 2026 | 1 | 412,025 | 25,750 | 29,050 |
| Reception | Rec Date | Type | Grantor | Grantee | Doc Fee | Sale Date | Sale Price |
|---|---|---|---|---|---|---|---|
| 2814094 | NA | SUB | SUBDIVISION | WATER VALLEY FG #7 | 0.00 | NA | 0 |
| 2972975 | 07-30-2002 | SWD | LUMBERMENS INVESTMENT CORP | SEVEN BY SEVEN LLC | 308.00 | 07-25-2002 | 3,080,000 |
| 3033521 | 02-19-2003 | WD | SEVEN BY SEVEN LLC | JOURNEY HOME AT WATER VALLEY LLC | 110.00 | 02-14-2003 | 1,100,000 |
| 3074017 | 06-18-2003 | WD | JOURNEY HOMES AT WATER VALLEY LLC | SANFORD RUSSELL B & LISTON AMY | 19.72 | 06-16-2003 | 197,200 |
| 3687419 | 04-16-2010 | QCN | LISTON AMY | LISTON AMY K | 0.00 | 03-03-2010 | 0 |
| 4015603 | 05-13-2014 | WD | LISTON AMY K | WISELY JENNA | 21.80 | 05-09-2014 | 218,000 |
| 4376336 | 02-20-2018 | WD | WISELY JENNA; MORENO JOELL A | ROBERTS WENDY S | 29.30 | 02-16-2018 | 293,000 |
| 4697158 | 03-25-2021 | WDN | ROBERTS WENDY S | WSR RENTALS LLC | 0.00 | 03-24-2021 | 0 |
| 4836115 | 06-17-2022 | WDN | WSR RENTALS LLC | ROBERTS WENDY S | 0.00 | 06-17-2022 | 0 |
| 4839657 | 07-06-2022 | WD | ROBERTS WENDY S | 1360 SAG PT LLC | 45.00 | 07-01-2022 | 450,000 |
*If the hyperlink for the reception number does not work, try a manual search in the Clerk and Recorder records. Use the Grantor or Grantee in your search.
| Account | Parcel | Account Type | Tax Year | Buildings | Actual Value | Local Govt Assessed Value | School Assessed Value |
|---|---|---|---|---|---|---|---|
| R0282601 | 080728117018 | Residential | 2026 | 1 | 412,025 | 25,750 | 29,050 |
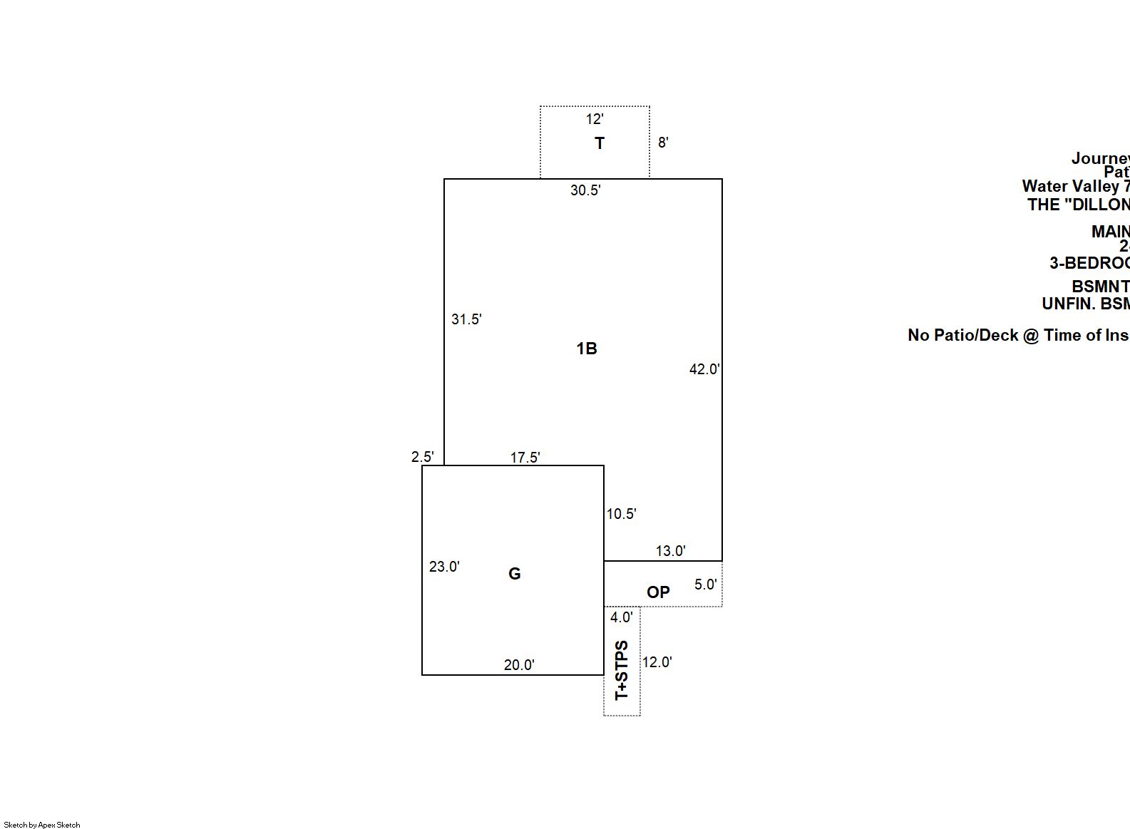
Building 1
| AccountNo | Building ID | Occupancy |
|---|---|---|
| R0282601 | 1 | Single Family Residential |
| ID | Type | NBHD | Occupancy | % Complete | Bedrooms | Baths |
|---|---|---|---|---|---|---|
| 1 | Residential | 2W3010 | Single Family Residential | 100 | 2 | 2.00 |
| ID | Exterior | Roof Cover | Interior | HVAC | Perimeter | Units | Unit Type | Make |
|---|---|---|---|---|---|---|---|---|
| 1 | Frame Hardboard | Composition Shingle | Drywall | Central Air to Air | 145 | 1 | NA | NA |
| ID | Square Ft | Condo SF | Total Basement SF | Finished Basement SF | Garage SF | Carport SF | Balcony SF | Porch SF |
|---|---|---|---|---|---|---|---|---|
| 1 | 1,097 | 0 | 1,097 | 0 | 460 | 0 | 0 | 65 |
| ID | Built As | Square Ft | Year Built | Stories | Length | Width |
|---|---|---|---|---|---|---|
| 1.00 | Ranch 1 Story | 1,097 | 2002 | 1 | 0 | 0 |
| ID | Detail Type | Description | Units |
|---|---|---|---|
| 1 | Add On | Fireplace Gas | 1.00 |
| 1 | Basement | Total Basement SF | 1097.00 |
| 1 | Fixture | Full Bath | 2.00 |
| 1 | Garage | Attached | 460.00 |
| 1 | Porch | Open Slab | 96.00 |
| 1 | Porch | Slab Roof Ceil | 65.00 |
| 1 | Porch | Slab w/Steps | 48.00 |
| 1 | Rough In | Rough In | 1.00 |
| Account | Parcel | Account Type | Tax Year | Buildings | Actual Value | Local Govt Assessed Value | School Assessed Value |
|---|---|---|---|---|---|---|---|
| R0282601 | 080728117018 | Residential | 2026 | 1 | 412,025 | 25,750 | 29,050 |
| Type | Code | Description | Actual Value | Local Govt Assessed Value | School Assessed Value | Acres | Land SqFt |
|---|---|---|---|---|---|---|---|
| Improvement | 1212 | SINGLE FAMILY RESIDENTIAL IMPROVEMENTS | 317,025 | 19,810 | 22,350 | 0.000 | 0 |
| Land | 1112 | SINGLE FAMILY RESIDENTIAL-LAND | 95,000 | 5,940 | 6,700 | 0.124 | 5,399 |
| Totals | - | - | 412,025 | 25,750 | 29,050 | 0.124 | 5,399 |
Comparable sales for your Residential or Commercial property may be found using our SALES SEARCH TOOL
Values are updated annually on May 1st for Real Property and June 15th for Personal Property and Oil and Gas.
| Account | Parcel | Account Type | Tax Year | Buildings | Actual Value | Local Govt Assessed Value | School Assessed Value |
|---|---|---|---|---|---|---|---|
| R0282601 | 080728117018 | Residential | 2026 | 1 | 412,025 | 25,750 | 29,050 |
| Tax Area | District ID | District Name | Local Govt Mill Levy |
School Mill Levy |
Estimated Taxes |
|---|---|---|---|---|---|
| 0451 | 0700 | AIMS JUNIOR COLLEGE | 6.313 | 0.000 | $162.56 |
| 0451 | 1051 | CLEARVIEW LIBRARY | 3.546 | 0.000 | $91.31 |
| 0451 | 0301 | NORTHERN COLORADO WATER (NCW) | 1.000 | 0.000 | $25.75 |
| 0451 | 0204 | SCHOOL DIST RE4-WINDSOR | 0.000 | 46.646 | $1,355.07 |
| 0451 | 1303 | WATER VALLEY METRO 1 | 37.911 | 0.000 | $976.21 |
| 0451 | 0100 | WELD COUNTY | 15.956 | 0.000 | $410.87 |
| 0451 | 1200 | WEST GREELEY CONSERVATION | 0.414 | 0.000 | $10.66 |
| 0451 | 0428 | WINDSOR TOWN | 12.030 | 0.000 | $309.77 |
| 0451 | 0521 | WINDSOR-SEVERANCE FIRE | 8.535 | 0.000 | $219.78 |
| Total | - | - | 85.705 | 46.646 | $3,561.97 |
The estimate of tax is based on the prior year mill levy and the 2025 projected assessment rates. Mill levies and tax estimates will be updated yearly on December 22nd for the current year. Additional information can be found at https://assessor.weld.gov


