Account: R0306401
April 1, 2026
| Account | Parcel | Account Type | Tax Year | Buildings | Actual Value | Local Govt Assessed Value | School Assessed Value |
|---|---|---|---|---|---|---|---|
| R0306401 | 147135308005 | Residential | 2026 | 1 | 485,962 | 30,370 | 34,260 |
| Legal |
|---|
| LOC 1SP L5 BLK105 SILVER PEAKS FG 1 |
| Subdivision | Block | Lot | Land Economic Area |
|---|---|---|---|
| SILVER PEAKS FG#1 | 105 | 5 | SILVERPEAKS |
| Property Address | Property City | Section | Township | Range |
|---|---|---|---|---|
| 858 DRAW ST | LOCHBUIE | 35 | 01 | 66 |
| Account | Parcel | Account Type | Tax Year | Buildings | Actual Value | Local Govt Assessed Value | School Assessed Value |
|---|---|---|---|---|---|---|---|
| R0306401 | 147135308005 | Residential | 2026 | 1 | 485,962 | 30,370 | 34,260 |
| Account | Owner Name | Address |
|---|---|---|
| R0306401 | LIMAS JUAN M MEDRANO | 858 DRAW ST LOCHBUIE, CO 806037788 |
| Account | Parcel | Account Type | Tax Year | Buildings | Actual Value | Local Govt Assessed Value | School Assessed Value |
|---|---|---|---|---|---|---|---|
| R0306401 | 147135308005 | Residential | 2026 | 1 | 485,962 | 30,370 | 34,260 |
| Reception | Rec Date | Type | Grantor | Grantee | Doc Fee | Sale Date | Sale Price |
|---|---|---|---|---|---|---|---|
| 2805360 | NA | SUB | SUBDIVISION | SILVER PEAKS FG 1 | 0.00 | NA | 0 |
| 4121148 | 07-02-2015 | SWD | SP LOCHBUIE LLC | WM SUB SILP LLC | 785.03 | 07-13-2015 | 7,850,300 |
| 4299593 | 05-04-2017 | SWD | WM SUB SILP LLC | MELODY HOMES INC | 496.76 | 05-01-2017 | 4,967,600 |
| 4417421 | 07-24-2018 | SWD | MELODY HOMES INC | LIMAS JUAN M MEDRANO | 35.25 | 07-23-2018 | 352,500 |
*If the hyperlink for the reception number does not work, try a manual search in the Clerk and Recorder records. Use the Grantor or Grantee in your search.
| Account | Parcel | Account Type | Tax Year | Buildings | Actual Value | Local Govt Assessed Value | School Assessed Value |
|---|---|---|---|---|---|---|---|
| R0306401 | 147135308005 | Residential | 2026 | 1 | 485,962 | 30,370 | 34,260 |
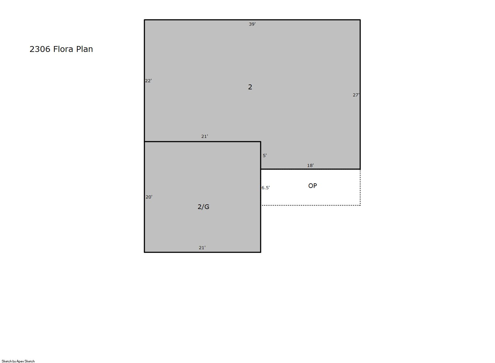
Building 1
| AccountNo | Building ID | Occupancy |
|---|---|---|
| R0306401 | 1 | Single Family Residential |
| ID | Type | NBHD | Occupancy | % Complete | Bedrooms | Baths |
|---|---|---|---|---|---|---|
| 1 | Residential | 4L0000 | Single Family Residential | 100 | 4 | 3.00 |
| ID | Exterior | Roof Cover | Interior | HVAC | Perimeter | Units | Unit Type | Make |
|---|---|---|---|---|---|---|---|---|
| 1 | Frame Siding | Composition Shingle | Drywall | Central Air to Air | 294 | 0 | NA | NA |
| ID | Square Ft | Condo SF | Total Basement SF | Finished Basement SF | Garage SF | Carport SF | Balcony SF | Porch SF |
|---|---|---|---|---|---|---|---|---|
| 1 | 2,316 | 0 | 0 | 0 | 420 | 0 | 0 | 117 |
| ID | Built As | Square Ft | Year Built | Stories | Length | Width |
|---|---|---|---|---|---|---|
| 1.00 | 2 Story | 2,316 | 2018 | 2 | 0 | 0 |
| ID | Detail Type | Description | Units |
|---|---|---|---|
| 1 | Fixture | Full Bath | 2.00 |
| 1 | Fixture | Half Bath | 1.00 |
| 1 | Garage | Attached | 420.00 |
| 1 | Porch | Slab Roof Ceil | 117.00 |
| Account | Parcel | Account Type | Tax Year | Buildings | Actual Value | Local Govt Assessed Value | School Assessed Value |
|---|---|---|---|---|---|---|---|
| R0306401 | 147135308005 | Residential | 2026 | 1 | 485,962 | 30,370 | 34,260 |
| Type | Code | Description | Actual Value | Local Govt Assessed Value | School Assessed Value | Acres | Land SqFt |
|---|---|---|---|---|---|---|---|
| Improvement | 1212 | SINGLE FAMILY RESIDENTIAL IMPROVEMENTS | 360,962 | 22,560 | 25,450 | 0.000 | 0 |
| Land | 1112 | SINGLE FAMILY RESIDENTIAL-LAND | 125,000 | 7,810 | 8,810 | 0.124 | 5,403 |
| Totals | - | - | 485,962 | 30,370 | 34,260 | 0.124 | 5,403 |
Comparable sales for your Residential or Commercial property may be found using our SALES SEARCH TOOL
Values are updated annually on May 1st for Real Property and June 15th for Personal Property and Oil and Gas.
| Account | Parcel | Account Type | Tax Year | Buildings | Actual Value | Local Govt Assessed Value | School Assessed Value |
|---|---|---|---|---|---|---|---|
| R0306401 | 147135308005 | Residential | 2026 | 1 | 485,962 | 30,370 | 34,260 |
| Tax Area | District ID | District Name | Local Govt Mill Levy |
School Mill Levy |
Estimated Taxes |
|---|---|---|---|---|---|
| 6034 | 0700 | AIMS JUNIOR COLLEGE | 6.313 | 0.000 | $191.73 |
| 6034 | 0302 | CENTRAL COLORADO WATER (CCW) | 0.980 | 0.000 | $29.76 |
| 6034 | 0503 | GREATER BRIGHTON FIRE | 17.504 | 0.000 | $531.60 |
| 6034 | 1050 | HIGH PLAINS LIBRARY | 3.044 | 0.000 | $92.45 |
| 6034 | 0419 | LOCHBUIE TOWN | 6.443 | 0.000 | $195.67 |
| 6034 | 0203 | SCHOOL DIST RE3J-KEENESBURG | 0.000 | 15.822 | $542.06 |
| 6034 | 1326 | SILVER PEAKS METRO DIST 3 | 76.201 | 0.000 | $2,314.22 |
| 6034 | 0100 | WELD COUNTY | 15.956 | 0.000 | $484.58 |
| Total | - | - | 126.441 | 15.822 | $4,382.07 |
The estimate of tax is based on the prior year mill levy and the 2025 projected assessment rates. Mill levies and tax estimates will be updated yearly on December 22nd for the current year. Additional information can be found at https://assessor.weld.gov


