Account: R0308401

April 1, 2026

Account Parcel Account Type Tax Year Buildings Actual Value Local Govt Assessed Value School Assessed Value
R0308401 147135309010 Residential 2026 1 462,920 28,930 32,630

Legal
LOC 1SP L10 BLK106 SILVER PEAKS FG 1

Subdivision Block Lot Land Economic Area
SILVER PEAKS FG#1 106 10 SILVERPEAKS

Property Address Property City Section Township Range
879 DRAW ST LOCHBUIE 35 01 66




Account Parcel Account Type Tax Year Buildings Actual Value Local Govt Assessed Value School Assessed Value
R0308401 147135309010 Residential 2026 1 462,920 28,930 32,630

Account Owner Name Address
R0308401 GORSKI MICHAEL S 879 DRAW ST BRIGHTON, CO 806035915
R0308401 SAWA-GORSKI JACQUELYN


Account Parcel Account Type Tax Year Buildings Actual Value Local Govt Assessed Value School Assessed Value
R0308401 147135309010 Residential 2026 1 462,920 28,930 32,630

Reception Rec Date Type Grantor Grantee Doc Fee Sale Date Sale Price
2805360 NA SUB SUBDIVISION SILVER PEAKS FG 1 0.00 NA 0
4121148 07-02-2015 SWD SP LOCHBUIE LLC WM SUB SILP LLC 785.03 07-13-2015 7,850,300
4388711 04-05-2018 SWD WM SUB SILP LLC MELODY HOMES INC 300.68 04-03-2018 3,006,800
4444769 11-07-2018 SWD MELODY HOMES INC REYNOLDS FAMILY TRUST 34.30 11-06-2018 343,000
4981217 09-09-2024 WD REYNOLDS FAMILY TRUST GORSKI MICHAEL S; SAWA-GORSKI JACQUELYN 46.90 08-29-2024 469,000



Account Parcel Account Type Tax Year Buildings Actual Value Local Govt Assessed Value School Assessed Value
R0308401 147135309010 Residential 2026 1 462,920 28,930 32,630

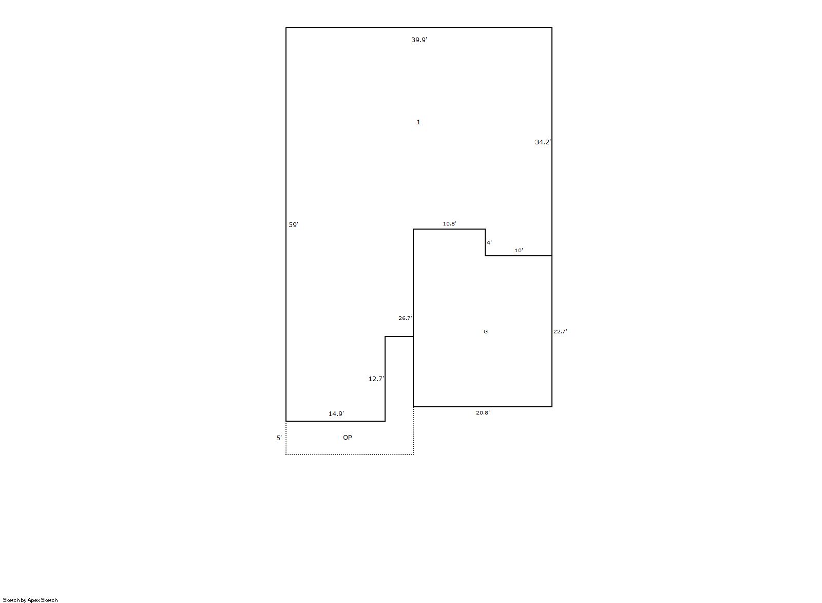
Building 1

AccountNo Building ID Occupancy
R0308401 1 Single Family Residential


ID Type NBHD Occupancy % Complete Bedrooms Baths
1 Residential 4L0000 Single Family Residential 100 3 3.00


ID Exterior Roof Cover Interior HVAC Perimeter Units Unit Type Make
1 Frame Siding Composition Shingle Drywall Central Air to Air 206 0 NA NA


ID Square Ft Condo SF Total Basement SF Finished Basement SF Garage SF Carport SF Balcony SF Porch SF
1 1,742 0 0 0 515 0 0 149


Built As Details for Building 1
ID Built As Square Ft Year Built Stories Length Width
1.00 Ranch 1 Story 1,742 2018 1 0 0


Additional Details for Building 1
ID Detail Type Description Units
1 Fixture Full Bath 2.00
1 Fixture Half Bath 1.00
1 Garage Attached 515.00
1 Porch Slab Roof Ceil 149.00





Account Parcel Account Type Tax Year Buildings Actual Value Local Govt Assessed Value School Assessed Value
R0308401 147135309010 Residential 2026 1 462,920 28,930 32,630

Type Code Description Actual Value Local Govt Assessed Value School Assessed Value Acres Land SqFt
Improvement 1212 SINGLE FAMILY RESIDENTIAL IMPROVEMENTS 337,920 21,120 23,820 0.000 0
Land 1112 SINGLE FAMILY RESIDENTIAL-LAND 125,000 7,810 8,810 0.157 6,851
Totals - - 462,920 28,930 32,630 0.157 6,851


Account Parcel Account Type Tax Year Buildings Actual Value Local Govt Assessed Value School Assessed Value
R0308401 147135309010 Residential 2026 1 462,920 28,930 32,630

Tax Area District ID District Name Local Govt
Mill Levy
School
Mill Levy
Estimated
Taxes
6034 0700 AIMS JUNIOR COLLEGE 6.313 0.000 $182.64
6034 0302 CENTRAL COLORADO WATER (CCW) 0.980 0.000 $28.35
6034 0503 GREATER BRIGHTON FIRE 17.504 0.000 $506.39
6034 1050 HIGH PLAINS LIBRARY 3.044 0.000 $88.06
6034 0419 LOCHBUIE TOWN 6.443 0.000 $186.40
6034 0203 SCHOOL DIST RE3J-KEENESBURG 0.000 15.822 $516.27
6034 1326 SILVER PEAKS METRO DIST 3 76.201 0.000 $2,204.49
6034 0100 WELD COUNTY 15.956 0.000 $461.61
Total - - 126.441 15.822 $4,174.21


The estimate of tax is based on the prior year mill levy and the 2025 projected assessment rates. Mill levies and tax estimates will be updated yearly on December 22nd for the current year. Additional information can be found at https://assessor.weld.gov










Select Reports to Print: