Account: R0310401
April 5, 2026
| Account | Parcel | Account Type | Tax Year | Buildings | Actual Value | Local Govt Assessed Value | School Assessed Value |
|---|---|---|---|---|---|---|---|
| R0310401 | 147135311003 | Residential | 2026 | 1 | 456,763 | 28,550 | 32,200 |
| Legal |
|---|
| LOC 1SP L3 BLK109 SILVER PEAKS FG 1 |
| Subdivision | Block | Lot | Land Economic Area |
|---|---|---|---|
| SILVER PEAKS FG#1 | 109 | 3 | SILVERPEAKS |
| Property Address | Property City | Section | Township | Range |
|---|---|---|---|---|
| 2244 JADE AVE | LOCHBUIE | 35 | 01 | 66 |
| Account | Parcel | Account Type | Tax Year | Buildings | Actual Value | Local Govt Assessed Value | School Assessed Value |
|---|---|---|---|---|---|---|---|
| R0310401 | 147135311003 | Residential | 2026 | 1 | 456,763 | 28,550 | 32,200 |
| Account | Owner Name | Address |
|---|---|---|
| R0310401 | ZEPEDA JUAN CARLOS GOMEZ | 2244 JADE AVE LOCHBUIE, CO 806035867 |
| Account | Parcel | Account Type | Tax Year | Buildings | Actual Value | Local Govt Assessed Value | School Assessed Value |
|---|---|---|---|---|---|---|---|
| R0310401 | 147135311003 | Residential | 2026 | 1 | 456,763 | 28,550 | 32,200 |
| Reception | Rec Date | Type | Grantor | Grantee | Doc Fee | Sale Date | Sale Price |
|---|---|---|---|---|---|---|---|
| 2805360 | NA | SUB | SUBDIVISION | SILVER PEAKS FG 1 | 0.00 | NA | 0 |
| 3511369 | 10-16-2007 | SWD | SP LOCHBUIE LLC | SILVER PEAKS INVESTMENTS LLC | 97.60 | 10-01-2007 | 976,000 |
| 3697672 | 06-07-2010 | SWD | SILVER PEAKS INVESTMENTS LLC | JOURNEY HOMES LLC | 8.00 | 06-02-2010 | 80,000 |
| 3772763 | 06-07-2011 | SWD | JOURNEY HOMES LLC | MUNGUIA ABRAHAM D SOTO | 15.99 | 06-03-2011 | 159,900 |
| 4184662 | 03-01-2016 | QCN | ESCAMILLA CESAR SOTO | MUNGUIA ABRAHAM D SOTO | 0.00 | 02-22-2016 | 0 |
| 4267404 | 01-04-2017 | WD | MUNGUIA ABRAHAM D SOTO | ZHANG YUN | 31.00 | 12-28-2016 | 310,000 |
| 4429740 | 09-10-2018 | WD | ZHANG YUN | ZEPEDA JUAN CARLOS GOMEZ | 34.95 | 09-06-2018 | 349,500 |
*If the hyperlink for the reception number does not work, try a manual search in the Clerk and Recorder records. Use the Grantor or Grantee in your search.
| Account | Parcel | Account Type | Tax Year | Buildings | Actual Value | Local Govt Assessed Value | School Assessed Value |
|---|---|---|---|---|---|---|---|
| R0310401 | 147135311003 | Residential | 2026 | 1 | 456,763 | 28,550 | 32,200 |
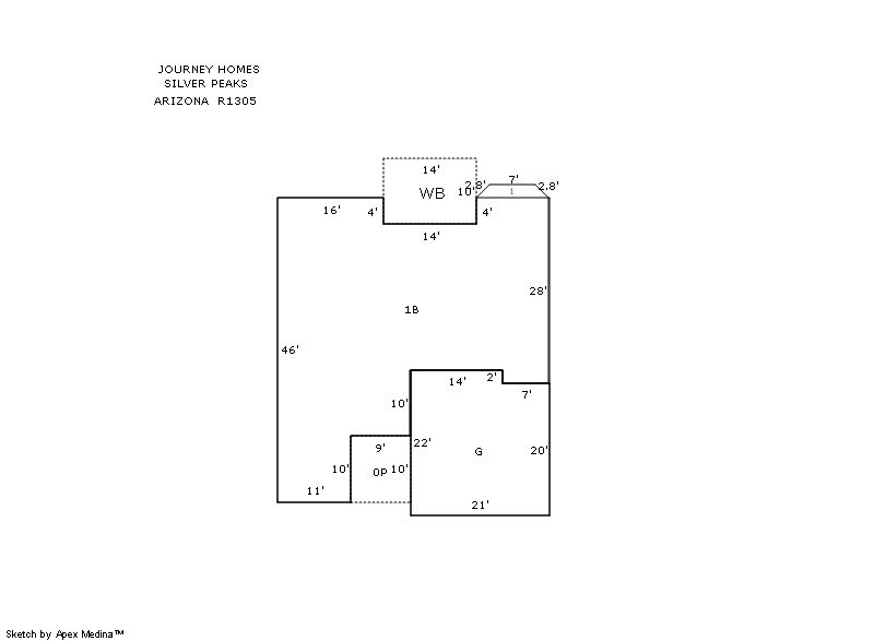
Building 1
| AccountNo | Building ID | Occupancy |
|---|---|---|
| R0310401 | 1 | Single Family Residential |
| ID | Type | NBHD | Occupancy | % Complete | Bedrooms | Baths |
|---|---|---|---|---|---|---|
| 1 | Residential | 4L0000 | Single Family Residential | 100 | 3 | 2.00 |
| ID | Exterior | Roof Cover | Interior | HVAC | Perimeter | Units | Unit Type | Make |
|---|---|---|---|---|---|---|---|---|
| 1 | Frame Hardboard | Composition Shingle | Drywall | Forced Air | 188 | 0 | NA | NA |
| ID | Square Ft | Condo SF | Total Basement SF | Finished Basement SF | Garage SF | Carport SF | Balcony SF | Porch SF |
|---|---|---|---|---|---|---|---|---|
| 1 | 1,350 | 0 | 1,334 | 0 | 448 | 0 | 140 | 90 |
| ID | Built As | Square Ft | Year Built | Stories | Length | Width |
|---|---|---|---|---|---|---|
| 1.00 | Ranch 1 Story | 1,350 | 2010 | 1 | 0 | 0 |
| ID | Detail Type | Description | Units |
|---|---|---|---|
| 1 | Balcony | Wood Wood Fin | 140.00 |
| 1 | Basement | Total Basement SF | 1334.00 |
| 1 | Fixture | Full Bath | 2.00 |
| 1 | Garage | Attached | 448.00 |
| 1 | Porch | Open Slab | 712.00 |
| 1 | Porch | Slab Roof Ceil | 90.00 |
| 1 | Rough In | Rough In | 1.00 |
| Account | Parcel | Account Type | Tax Year | Buildings | Actual Value | Local Govt Assessed Value | School Assessed Value |
|---|---|---|---|---|---|---|---|
| R0310401 | 147135311003 | Residential | 2026 | 1 | 456,763 | 28,550 | 32,200 |
| Type | Code | Description | Actual Value | Local Govt Assessed Value | School Assessed Value | Acres | Land SqFt |
|---|---|---|---|---|---|---|---|
| Improvement | 1212 | SINGLE FAMILY RESIDENTIAL IMPROVEMENTS | 331,763 | 20,740 | 23,390 | 0.000 | 0 |
| Land | 1112 | SINGLE FAMILY RESIDENTIAL-LAND | 125,000 | 7,810 | 8,810 | 0.132 | 5,750 |
| Totals | - | - | 456,763 | 28,550 | 32,200 | 0.132 | 5,750 |
Comparable sales for your Residential or Commercial property may be found using our SALES SEARCH TOOL
Values are updated annually on May 1st for Real Property and June 15th for Personal Property and Oil and Gas.
| Account | Parcel | Account Type | Tax Year | Buildings | Actual Value | Local Govt Assessed Value | School Assessed Value |
|---|---|---|---|---|---|---|---|
| R0310401 | 147135311003 | Residential | 2026 | 1 | 456,763 | 28,550 | 32,200 |
| Tax Area | District ID | District Name | Local Govt Mill Levy |
School Mill Levy |
Estimated Taxes |
|---|---|---|---|---|---|
| 3485 | 0700 | AIMS JUNIOR COLLEGE | 6.313 | 0.000 | $180.24 |
| 3485 | 0302 | CENTRAL COLORADO WATER (CCW) | 0.980 | 0.000 | $27.98 |
| 3485 | 0503 | GREATER BRIGHTON FIRE | 17.504 | 0.000 | $499.74 |
| 3485 | 1050 | HIGH PLAINS LIBRARY | 3.044 | 0.000 | $86.91 |
| 3485 | 0419 | LOCHBUIE TOWN | 6.443 | 0.000 | $183.95 |
| 3485 | 0203 | SCHOOL DIST RE3J-KEENESBURG | 0.000 | 15.822 | $509.47 |
| 3485 | 1325 | SILVER PEAKS METRO DIST 2 | 76.698 | 0.000 | $2,189.73 |
| 3485 | 0100 | WELD COUNTY | 15.956 | 0.000 | $455.54 |
| Total | - | - | 126.938 | 15.822 | $4,133.55 |
The estimate of tax is based on the prior year mill levy and the 2025 projected assessment rates. Mill levies and tax estimates will be updated yearly on December 22nd for the current year. Additional information can be found at https://assessor.weld.gov



