Account: R0333494
January 16, 2026
| Account | Parcel | Account Type | Tax Year | Buildings | Actual Value | Local Govt Assessed Value | School Assessed Value |
|---|---|---|---|---|---|---|---|
| R0333494 | 131309000075 | Agricultural | 2026 | 5 | 752,990 | 72,310 | 77,360 |
| Legal |
|---|
| PT E2SE4 9-2-68 LOT B REC EXEMPT RE-1476 |
| Subdivision | Block | Lot | Land Economic Area |
|---|---|---|---|
| FIRESTONE RURAL |
| Property Address | Property City | Section | Township | Range |
|---|---|---|---|---|
| 10473 COUNTY ROAD 7 | WELD | 09 | 02 | 68 |
| Account | Parcel | Account Type | Tax Year | Buildings | Actual Value | Local Govt Assessed Value | School Assessed Value |
|---|---|---|---|---|---|---|---|
| R0333494 | 131309000075 | Agricultural | 2026 | 5 | 752,990 | 72,310 | 77,360 |
| Account | Owner Name | Address |
|---|---|---|
| R0333494 | JJL&M LLC | 10473 COUNTY ROAD 7 LONGMONT, CO 805045442 |
| Account | Parcel | Account Type | Tax Year | Buildings | Actual Value | Local Govt Assessed Value | School Assessed Value |
|---|---|---|---|---|---|---|---|
| R0333494 | 131309000075 | Agricultural | 2026 | 5 | 752,990 | 72,310 | 77,360 |
| Reception | Rec Date | Type | Grantor | Grantee | Doc Fee | Sale Date | Sale Price |
|---|---|---|---|---|---|---|---|
| 2372870 | 02-08-1994 | RE | RECORDED EXEMPTION | RE-1476 | 0.00 | NA | 0 |
| 2372870 | 02-08-1994 | RE | RE-1476 | RE-1476 | 0.00 | 02-08-1994 | 0 |
| 2382341 | 04-07-1994 | WD | PALERMO TIMOTHY F | GOMEZ WAYNE W | 5.45 | 04-05-1994 | 54,500 |
| 3068705 | 06-03-2003 | PTD | GOMEZ WAYNE | SCHIBLI PETER A & YALILE CHAVARRIA SCHIB | 0.00 | 02-19-2003 | 0 |
| 3195397 | 07-02-2004 | WD | SCHIBLI PETER A & | HUENING KENNETH J | 130.00 | 06-28-2004 | 1,300,000 |
| 3819341 | 01-20-2012 | QCN | HUENING KENNETH J | HUENING FAMILY TRUST | 0.00 | 12-07-2011 | 0 |
| 4867439 | 11-17-2022 | SWD | HUENING FAMILY TRUST | JJL&M LLC | 197.15 | 11-08-2022 | 1,971,500 |
*If the hyperlink for the reception number does not work, try a manual search in the Clerk and Recorder records. Use the Grantor or Grantee in your search.
| Account | Parcel | Account Type | Tax Year | Buildings | Actual Value | Local Govt Assessed Value | School Assessed Value |
|---|---|---|---|---|---|---|---|
| R0333494 | 131309000075 | Agricultural | 2026 | 5 | 752,990 | 72,310 | 77,360 |
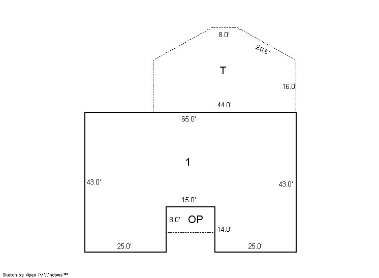
Building 1
| AccountNo | Building ID | Occupancy |
|---|---|---|
| R0333494 | 1 | Single Family Residential on Ag |
| ID | Type | NBHD | Occupancy | % Complete | Bedrooms | Baths |
|---|---|---|---|---|---|---|
| 1 | Residential | 3R2031 | Single Family Residential on Ag | 100 | 4 | 2.00 |
| ID | Exterior | Roof Cover | Interior | HVAC | Perimeter | Units | Unit Type | Make |
|---|---|---|---|---|---|---|---|---|
| 1 | Frame Masonry Veneer | Composition Shingle | Drywall | Hot Water Baseboard | 244 | 0 | NA | NA |
| ID | Square Ft | Condo SF | Total Basement SF | Finished Basement SF | Garage SF | Carport SF | Balcony SF | Porch SF |
|---|---|---|---|---|---|---|---|---|
| 1 | 2,585 | 0 | 0 | 0 | 0 | 0 | 0 | 120 |
| ID | Built As | Square Ft | Year Built | Stories | Length | Width |
|---|---|---|---|---|---|---|
| 1.00 | Ranch 1 Story | 2,585 | 1993 | 1 | 0 | 0 |
| ID | Detail Type | Description | Units |
|---|---|---|---|
| 1 | Add On | Fireplace Gas | 1.00 |
| 1 | Add On | Heat Evaporative Coolers | 1.00 |
| 1 | Fixture | Full Bath | 2.00 |
| 1 | Porch | Open Slab | 964.00 |
| 1 | Porch | Slab Roof Ceil | 120.00 |
Building 2
| AccountNo | Building ID | Occupancy |
|---|---|---|
| R0333494 | 2 | Secondary Single Family Res on Ag |
| ID | Type | NBHD | Occupancy | % Complete | Bedrooms | Baths |
|---|---|---|---|---|---|---|
| 2 | Residential | 3R2031 | Secondary Single Family Res on Ag | 100 | 1 | 1.00 |
| ID | Exterior | Roof Cover | Interior | HVAC | Perimeter | Units | Unit Type | Make |
|---|---|---|---|---|---|---|---|---|
| 2 | Frame Brick Veneer | Composition Shingle | Drywall | Forced Air | 118 | 0 | NA | NA |
| ID | Square Ft | Condo SF | Total Basement SF | Finished Basement SF | Garage SF | Carport SF | Balcony SF | Porch SF |
|---|---|---|---|---|---|---|---|---|
| 2 | 814 | 0 | 0 | 0 | 550 | 0 | 0 | 0 |
| ID | Built As | Square Ft | Year Built | Stories | Length | Width |
|---|---|---|---|---|---|---|
| 2.00 | Ranch 1 Story | 814 | 1994 | 1 | 62 | 22 |
| ID | Detail Type | Description | Units |
|---|---|---|---|
| 2 | Fixture | Full Bath | 1.00 |
| 2 | Garage | Attached | 550.00 |
Building 3
| AccountNo | Building ID | Occupancy |
|---|---|---|
| R0333494 | 3 | Equipment Building |
| ID | Type | NBHD | Occupancy | % Complete | Bedrooms | Baths |
|---|---|---|---|---|---|---|
| 3 | Out Building | NA | Equipment Building | 100 | 0 | 0.00 |
| ID | Exterior | Roof Cover | Interior | HVAC | Perimeter | Units | Unit Type | Make |
|---|---|---|---|---|---|---|---|---|
| 3 | NA | NA | NA | None | 280 | 0 | NA | NA |
| ID | Square Ft | Condo SF | Total Basement SF | Finished Basement SF | Garage SF | Carport SF | Balcony SF | Porch SF |
|---|---|---|---|---|---|---|---|---|
| 3 | 2,400 | 0 | 0 | 0 | 0 | 0 | 0 | 0 |
| ID | Built As | Square Ft | Year Built | Stories | Length | Width |
|---|---|---|---|---|---|---|
| 3.00 | Equipment Building | 2,400 | 1995 | 1 | 86 | 30 |
| ID | Detail Type | Description | Units |
|---|---|---|---|
| 3 | Add On | OB Concrete Floor Slab | 720.00 |
Building 4
| AccountNo | Building ID | Occupancy |
|---|---|---|
| R0333494 | 4 | Barn |
| ID | Type | NBHD | Occupancy | % Complete | Bedrooms | Baths |
|---|---|---|---|---|---|---|
| 4 | Out Building | NA | Barn | 100 | 0 | 0.00 |
| ID | Exterior | Roof Cover | Interior | HVAC | Perimeter | Units | Unit Type | Make |
|---|---|---|---|---|---|---|---|---|
| 4 | NA | NA | NA | None | 232 | 0 | NA | NA |
| ID | Square Ft | Condo SF | Total Basement SF | Finished Basement SF | Garage SF | Carport SF | Balcony SF | Porch SF |
|---|---|---|---|---|---|---|---|---|
| 4 | 3,040 | 0 | 0 | 0 | 0 | 0 | 0 | 0 |
| ID | Built As | Square Ft | Year Built | Stories | Length | Width |
|---|---|---|---|---|---|---|
| 4.00 | Barn | 3,040 | 1995 | 1 | 76 | 40 |
| ID | Detail Type | Description | Units |
|---|---|---|---|
| 4 | Add On | Finished Space in OutBldg | 2376.00 |
| 4 | Add On | OB Loft | 3040.00 |
| 4 | Add On | OB Open Shelter Lean To Steel | 1000.00 |
| 4 | Add On | Suspended Heaters | 1.00 |
Building 5
| AccountNo | Building ID | Occupancy |
|---|---|---|
| R0333494 | 5 | Shed - Cattle |
| ID | Type | NBHD | Occupancy | % Complete | Bedrooms | Baths |
|---|---|---|---|---|---|---|
| 5 | Out Building | NA | Shed - Cattle | 100 | 0 | 0.00 |
| ID | Exterior | Roof Cover | Interior | HVAC | Perimeter | Units | Unit Type | Make |
|---|---|---|---|---|---|---|---|---|
| 5 | NA | NA | NA | None | 64 | 0 | NA | NA |
| ID | Square Ft | Condo SF | Total Basement SF | Finished Basement SF | Garage SF | Carport SF | Balcony SF | Porch SF |
|---|---|---|---|---|---|---|---|---|
| 5 | 480 | 0 | 0 | 0 | 0 | 0 | 0 | 0 |
| ID | Built As | Square Ft | Year Built | Stories | Length | Width |
|---|---|---|---|---|---|---|
| 5.00 | Shed - Cattle | 480 | 1995 | 1 | 40 | 12 |
No Additional Details for Building 5
| Account | Parcel | Account Type | Tax Year | Buildings | Actual Value | Local Govt Assessed Value | School Assessed Value |
|---|---|---|---|---|---|---|---|
| R0333494 | 131309000075 | Agricultural | 2026 | 5 | 752,990 | 72,310 | 77,360 |
| Type | Code | Description | Actual Value | Local Govt Assessed Value | School Assessed Value | Acres | Land SqFt |
|---|---|---|---|---|---|---|---|
| Improvement | 4277 | FARM/RANCH RESIDENCE-IMPS | 631,291 | 39,460 | 44,510 | 0.000 | 0 |
| Improvement | 4279 | FARM RANCH SUPPORT BLDGS | 121,017 | 32,670 | 32,670 | 0.000 | 0 |
| Land | 4147 | GRAZING LAND-AGRICULTURAL | 573 | 150 | 150 | 18.550 | 808,038 |
| Land | 4167 | WASTE LAND | 109 | 30 | 30 | 16.500 | 718,740 |
| Totals | - | - | 752,990 | 72,310 | 77,360 | 35.050 | 1,526,778 |
Comparable sales for your Residential or Commercial property may be found using our SALES SEARCH TOOL
Values are updated annually on May 1st for Real Property and June 15th for Personal Property and Oil and Gas.
| Account | Parcel | Account Type | Tax Year | Buildings | Actual Value | Local Govt Assessed Value | School Assessed Value |
|---|---|---|---|---|---|---|---|
| R0333494 | 131309000075 | Agricultural | 2026 | 5 | 752,990 | 72,310 | 77,360 |
| Tax Area | District ID | District Name | Local Govt Mill Levy |
School Mill Levy |
Estimated Taxes |
|---|---|---|---|---|---|
| 2306 | 1050 | HIGH PLAINS LIBRARY | 3.044 | 0.000 | $220.11 |
| 2306 | 0311 | LEFT HAND WATER | 0.000 | 0.000 | $0.00 |
| 2306 | 1202 | LONGMONT CONSERVATION | 0.000 | 0.000 | $0.00 |
| 2306 | 0512 | MOUNTAIN VIEW FIRE PROTECTION DISTRICT | 16.342 | 0.000 | $1,181.69 |
| 2306 | 0301 | NORTHERN COLORADO WATER (NCW) | 1.000 | 0.000 | $72.31 |
| 2306 | 0213 | SCHOOL DIST RE1J-LONGMONT | 0.000 | 57.717 | $4,464.99 |
| 2306 | 0100 | WELD COUNTY | 15.956 | 0.000 | $1,153.78 |
| Total | - | - | 36.342 | 57.717 | $7,092.88 |
The estimate of tax is based on the prior year mill levy and the 2025 assessment rates. Mill levies and tax estimates will be updated yearly on December 22nd for the current year. Additional information can be found at https://assessor.weld.gov





