Account: R0349701

April 1, 2026

Account Parcel Account Type Tax Year Buildings Actual Value Local Govt Assessed Value School Assessed Value
R0349701 131107035001 Residential 2026 1 510,120 31,890 35,960

Legal
FIR 3SVR L1 BLK2 ST VRAIN RANCH FG III

Subdivision Block Lot Land Economic Area
ST VRAIN RANCH SUB FG#3 2 1 ST VRAIN

Property Address Property City Section Township Range
6465 SILVERLEAF AVE FIRESTONE 07 02 67




Account Parcel Account Type Tax Year Buildings Actual Value Local Govt Assessed Value School Assessed Value
R0349701 131107035001 Residential 2026 1 510,120 31,890 35,960

Account Owner Name Address
R0349701 6465 SILVERLEAF AVE LLC 2414 COREY ST LONGMONT, CO 805011217


Account Parcel Account Type Tax Year Buildings Actual Value Local Govt Assessed Value School Assessed Value
R0349701 131107035001 Residential 2026 1 510,120 31,890 35,960

Reception Rec Date Type Grantor Grantee Doc Fee Sale Date Sale Price
2814788 NA SUB SUBDIVISION ST VRAIN RANCH FG #3 0.00 NA 0
2858975 06-20-2001 WD ST VRAIN PARTNERS LLC THE RYLAND GROUP INC 328.08 06-18-2001 3,280,800
2985736 09-09-2002 WD THE RYLAND GROUP INC ORLANDINO FRANCIS & WAHL KIRSTEN 23.91 09-06-2002 239,100
3274944 04-06-2005 QCN ORLANDINO FRANCIS & ORLANDINO FRANCIS & 0.00 03-31-2005 0
4058096 10-30-2014 WD ORLANDINO KIRSTEN; ORLANDINO FRANCIS KINZLE TODD; KINZIE JAIME 27.70 10-30-2014 277,000
4387766 04-03-2018 SURV SURVEY SURVEY 0.00 03-27-2018 0
4944182 02-13-2024 QCN KINZIE JAIME; KINZLE TODD 6465 SILVERLEAF AVE LLC 0.00 01-31-2024 0



Account Parcel Account Type Tax Year Buildings Actual Value Local Govt Assessed Value School Assessed Value
R0349701 131107035001 Residential 2026 1 510,120 31,890 35,960

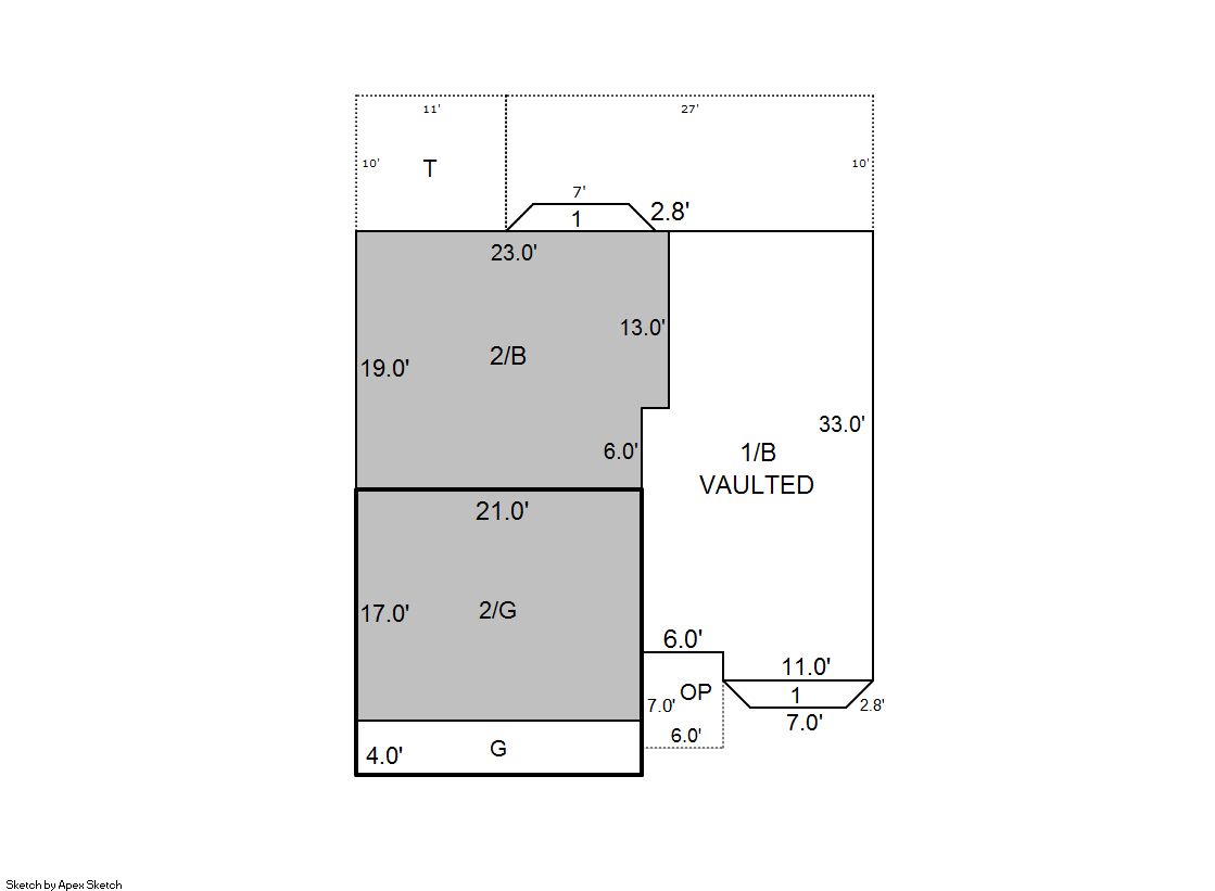
Building 1

AccountNo Building ID Occupancy
R0349701 1 Single Family Residential


ID Type NBHD Occupancy % Complete Bedrooms Baths
1 Residential 3F0038 Single Family Residential 100 3 3.00


ID Exterior Roof Cover Interior HVAC Perimeter Units Unit Type Make
1 Frame Hardboard Composition Shingle Drywall Central Air to Air 307 0 NA NA


ID Square Ft Condo SF Total Basement SF Finished Basement SF Garage SF Carport SF Balcony SF Porch SF
1 1,766 0 948 0 441 0 0 42


Built As Details for Building 1
ID Built As Square Ft Year Built Stories Length Width
1.00 2 Story 1,766 2002 2 0 0


Additional Details for Building 1
ID Detail Type Description Units
1 Add On Fireplace Gas 1.00
1 Basement Total Basement SF 948.00
1 Fixture Full Bath 2.00
1 Fixture Half Bath 1.00
1 Garage Attached 441.00
1 Porch Open Slab 110.00
1 Porch Slab Roof Ceil 42.00
1 Porch Wood Deck 252.00
1 Rough In Rough In 1.00





Account Parcel Account Type Tax Year Buildings Actual Value Local Govt Assessed Value School Assessed Value
R0349701 131107035001 Residential 2026 1 510,120 31,890 35,960

Type Code Description Actual Value Local Govt Assessed Value School Assessed Value Acres Land SqFt
Improvement 1212 SINGLE FAMILY RESIDENTIAL IMPROVEMENTS 392,120 24,510 27,640 0.000 0
Land 1112 SINGLE FAMILY RESIDENTIAL-LAND 118,000 7,380 8,320 0.176 7,649
Totals - - 510,120 31,890 35,960 0.176 7,649


Account Parcel Account Type Tax Year Buildings Actual Value Local Govt Assessed Value School Assessed Value
R0349701 131107035001 Residential 2026 1 510,120 31,890 35,960

Tax Area District ID District Name Local Govt
Mill Levy
School
Mill Levy
Estimated
Taxes
2556 0900 CARBON VALLEY REC 4.427 0.000 $141.18
2556 0406 FIRESTONE TOWN 6.805 0.000 $217.01
2556 0507 FREDERICK-FIRESTONE FIRE 15.559 0.000 $496.18
2556 1050 HIGH PLAINS LIBRARY 3.044 0.000 $97.07
2556 0301 NORTHERN COLORADO WATER (NCW) 1.000 0.000 $31.89
2556 0213 SCHOOL DIST RE1J-LONGMONT 0.000 57.717 $2,075.50
2556 0620 ST VRAIN SANITATION 0.316 0.000 $10.08
2556 0100 WELD COUNTY 15.956 0.000 $508.84
Total - - 47.107 57.717 $3,577.75


The estimate of tax is based on the prior year mill levy and the 2025 projected assessment rates. Mill levies and tax estimates will be updated yearly on December 22nd for the current year. Additional information can be found at https://assessor.weld.gov










Select Reports to Print: