Account: R0442001

April 5, 2026

Account Parcel Account Type Tax Year Buildings Actual Value Local Govt Assessed Value School Assessed Value
R0442001 131107049032 Residential 2026 1 470,959 29,440 33,200

Legal
FIR 3RC L32 BLK11 RIDGE CREST PUD FG #3

Subdivision Block Lot Land Economic Area
RIDGE CREST PUD FG#3 11 32 RIDGE CREST

Property Address Property City Section Township Range
6253 SPARROW CIR FIRESTONE 07 02 67




Account Parcel Account Type Tax Year Buildings Actual Value Local Govt Assessed Value School Assessed Value
R0442001 131107049032 Residential 2026 1 470,959 29,440 33,200

Account Owner Name Address
R0442001 PEREZ LIDIA 6253 SPARROW CIR FIRESTONE, CO 805045668
R0442001 SIERRA DANIEL


Account Parcel Account Type Tax Year Buildings Actual Value Local Govt Assessed Value School Assessed Value
R0442001 131107049032 Residential 2026 1 470,959 29,440 33,200

Reception Rec Date Type Grantor Grantee Doc Fee Sale Date Sale Price
2793403 NA SUB SUBDIVISION RIDGE CREST PUD FG #3 0.00 NA 0
3100878 08-28-2003 SWD US HOME CORPORATION MORRIS HEATHER S & 20.40 08-22-2003 204,000
4228167 08-16-2016 WD MORRIS JEREMIAH T; MORRIS HEATHER S PEREZ LIDIA ; SIERRA DANIEL 30.00 08-12-2016 300,000



Account Parcel Account Type Tax Year Buildings Actual Value Local Govt Assessed Value School Assessed Value
R0442001 131107049032 Residential 2026 1 470,959 29,440 33,200

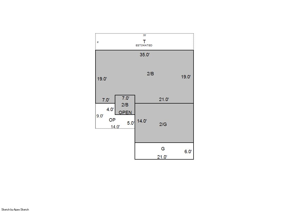
Building 1

AccountNo Building ID Occupancy
R0442001 1 Single Family Residential


ID Type NBHD Occupancy % Complete Bedrooms Baths
1 Residential 3F0038 Single Family Residential 100 4 3.00


ID Exterior Roof Cover Interior HVAC Perimeter Units Unit Type Make
1 Frame Hardboard Composition Shingle Drywall Central Air to Air 280 0 NA NA


ID Square Ft Condo SF Total Basement SF Finished Basement SF Garage SF Carport SF Balcony SF Porch SF
1 1,631 0 693 0 420 0 0 98


Built As Details for Building 1
ID Built As Square Ft Year Built Stories Length Width
1.00 2 Story 1,631 2003 2 0 0


Additional Details for Building 1
ID Detail Type Description Units
1 Basement Total Basement SF 693.00
1 Fixture Full Bath 2.00
1 Fixture Half Bath 1.00
1 Garage Attached 420.00
1 Porch Open Slab 210.00
1 Porch Slab Roof Ceil 98.00
1 Rough In Rough In 1.00





Account Parcel Account Type Tax Year Buildings Actual Value Local Govt Assessed Value School Assessed Value
R0442001 131107049032 Residential 2026 1 470,959 29,440 33,200

Type Code Description Actual Value Local Govt Assessed Value School Assessed Value Acres Land SqFt
Improvement 1212 SINGLE FAMILY RESIDENTIAL IMPROVEMENTS 368,959 23,060 26,010 0.000 0
Land 1112 SINGLE FAMILY RESIDENTIAL-LAND 102,000 6,380 7,190 0.109 4,742
Totals - - 470,959 29,440 33,200 0.109 4,742


Account Parcel Account Type Tax Year Buildings Actual Value Local Govt Assessed Value School Assessed Value
R0442001 131107049032 Residential 2026 1 470,959 29,440 33,200

Tax Area District ID District Name Local Govt
Mill Levy
School
Mill Levy
Estimated
Taxes
2556 0900 CARBON VALLEY REC 4.427 0.000 $130.33
2556 0406 FIRESTONE TOWN 6.805 0.000 $200.34
2556 0507 FREDERICK-FIRESTONE FIRE 15.559 0.000 $458.06
2556 1050 HIGH PLAINS LIBRARY 3.044 0.000 $89.62
2556 0301 NORTHERN COLORADO WATER (NCW) 1.000 0.000 $29.44
2556 0213 SCHOOL DIST RE1J-LONGMONT 0.000 57.717 $1,916.20
2556 0620 ST VRAIN SANITATION 0.316 0.000 $9.30
2556 0100 WELD COUNTY 15.956 0.000 $469.74
Total - - 47.107 57.717 $3,303.03


The estimate of tax is based on the prior year mill levy and the 2025 projected assessment rates. Mill levies and tax estimates will be updated yearly on December 22nd for the current year. Additional information can be found at https://assessor.weld.gov










Select Reports to Print: