Account: R0448301

April 5, 2026

Account Parcel Account Type Tax Year Buildings Actual Value Local Govt Assessed Value School Assessed Value
R0448301 131107052012 Residential 2026 1 536,498 33,540 37,820

Legal
FIR 3RC L12 BLK14 RIDGE CREST PUD FG #3

Subdivision Block Lot Land Economic Area
RIDGE CREST PUD FG#3 14 12 RIDGE CREST

Property Address Property City Section Township Range
6160 SPARROW AVE FIRESTONE 07 02 67




Account Parcel Account Type Tax Year Buildings Actual Value Local Govt Assessed Value School Assessed Value
R0448301 131107052012 Residential 2026 1 536,498 33,540 37,820

Account Owner Name Address
R0448301 PHILLIPS JORDAN R 6160 SPARROW AVE FIRESTONE, CO 805046538
R0448301 JONES MELINDA J


Account Parcel Account Type Tax Year Buildings Actual Value Local Govt Assessed Value School Assessed Value
R0448301 131107052012 Residential 2026 1 536,498 33,540 37,820

Reception Rec Date Type Grantor Grantee Doc Fee Sale Date Sale Price
2793403 NA SUB SUBDIVISION RIDGE CREST PUD FG #3 0.00 NA 0
3123388 11-04-2003 SWD US HOME CORPORATION ESPINDOLA JOSE B & 23.83 10-30-2003 238,300
3123390 11-04-2003 QCN ESPINDOLA JOSE B & ESPINDOLA JOSE B JR & 0.00 10-30-2003 0
3330459 10-11-2005 WD ESPINDOLA JOSE B JR & PENA OSCAR J & 26.78 09-27-2005 267,800
3433257 11-07-2006 QCN PENA OSCAR J & PENA OSCAR J & 0.00 10-27-2006 0
3546891 04-11-2008 PTD PENA OSCAR J & DEUTSCHE BANK NATIONAL TRUST COMPANY 0.00 04-10-2008 0
3589207 11-12-2008 SWD DEUTSCHE BANK NATIONAL TRUST COMPANY MONTELONGO DARIO JR 20.56 10-28-2008 205,600
4545021 11-27-2019 WD MONTELONGO DARIO JR JONES MELINDA J; PHILLIPS JORDAN R 35.50 11-22-2019 355,000



Account Parcel Account Type Tax Year Buildings Actual Value Local Govt Assessed Value School Assessed Value
R0448301 131107052012 Residential 2026 1 536,498 33,540 37,820

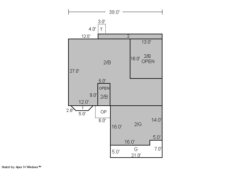
Building 1

AccountNo Building ID Occupancy
R0448301 1 Single Family Residential


ID Type NBHD Occupancy % Complete Bedrooms Baths
1 Residential 3F0038 Single Family Residential 100 3 3.00


ID Exterior Roof Cover Interior HVAC Perimeter Units Unit Type Make
1 Frame Hardboard Composition Shingle Drywall Central Air to Air 0 0 NA NA


ID Square Ft Condo SF Total Basement SF Finished Basement SF Garage SF Carport SF Balcony SF Porch SF
1 2,243 0 1,026 0 441 0 0 30


Built As Details for Building 1
ID Built As Square Ft Year Built Stories Length Width
1.00 2 Story 2,243 2003 2 0 0


Additional Details for Building 1
ID Detail Type Description Units
1 Add On Fireplace Gas 1.00
1 Basement Total Basement SF 1026.00
1 Fixture Full Bath 2.00
1 Fixture Half Bath 1.00
1 Garage Attached 441.00
1 Porch Open Slab 12.00
1 Porch Slab Roof Ceil 30.00
1 Rough In Rough In 1.00





Account Parcel Account Type Tax Year Buildings Actual Value Local Govt Assessed Value School Assessed Value
R0448301 131107052012 Residential 2026 1 536,498 33,540 37,820

Type Code Description Actual Value Local Govt Assessed Value School Assessed Value Acres Land SqFt
Improvement 1212 SINGLE FAMILY RESIDENTIAL IMPROVEMENTS 434,498 27,160 30,630 0.000 0
Land 1112 SINGLE FAMILY RESIDENTIAL-LAND 102,000 6,380 7,190 0.115 5,000
Totals - - 536,498 33,540 37,820 0.115 5,000


Account Parcel Account Type Tax Year Buildings Actual Value Local Govt Assessed Value School Assessed Value
R0448301 131107052012 Residential 2026 1 536,498 33,540 37,820

Tax Area District ID District Name Local Govt
Mill Levy
School
Mill Levy
Estimated
Taxes
2556 0900 CARBON VALLEY REC 4.427 0.000 $148.48
2556 0406 FIRESTONE TOWN 6.805 0.000 $228.24
2556 0507 FREDERICK-FIRESTONE FIRE 15.559 0.000 $521.85
2556 1050 HIGH PLAINS LIBRARY 3.044 0.000 $102.10
2556 0301 NORTHERN COLORADO WATER (NCW) 1.000 0.000 $33.54
2556 0213 SCHOOL DIST RE1J-LONGMONT 0.000 57.717 $2,182.86
2556 0620 ST VRAIN SANITATION 0.316 0.000 $10.60
2556 0100 WELD COUNTY 15.956 0.000 $535.16
Total - - 47.107 57.717 $3,762.83


The estimate of tax is based on the prior year mill levy and the 2025 projected assessment rates. Mill levies and tax estimates will be updated yearly on December 22nd for the current year. Additional information can be found at https://assessor.weld.gov










Select Reports to Print: