Account: R0462901

April 5, 2026

Account Parcel Account Type Tax Year Buildings Actual Value Local Govt Assessed Value School Assessed Value
R0462901 147136010032 Residential 2026 1 410,910 25,680 28,970

Legal
LOC 3HP L32 BLK8 HIGHPLAINS FG #3

Subdivision Block Lot Land Economic Area
HIGHPLAINS FG#3 8 32 HIGHPLAINS

Property Address Property City Section Township Range
750 PRAIRIE AVE LOCHBUIE 36 01 66




Account Parcel Account Type Tax Year Buildings Actual Value Local Govt Assessed Value School Assessed Value
R0462901 147136010032 Residential 2026 1 410,910 25,680 28,970

Account Owner Name Address
R0462901 MOON WADE C/O CASCADE FINANCIAL SERVICES 3345 S VAL VISTA DR STE 300 GILBERT, AZ 852977340
R0462901 MOON MARIE


Account Parcel Account Type Tax Year Buildings Actual Value Local Govt Assessed Value School Assessed Value
R0462901 147136010032 Residential 2026 1 410,910 25,680 28,970

Reception Rec Date Type Grantor Grantee Doc Fee Sale Date Sale Price
2805351 NA SUB SUBDIVISION HIGHPLAINS FG #3 0.00 NA 0
2847549 05-10-2001 SWD WELD AND THIRD ASSOCIATES, LLP GALAXY LAND COMPANY, LLC 154.46 05-01-2001 1,544,544
3140256 12-30-2003 SWD GALAXY LAND CO LLC LAMBERT ESTATES LLC 66.30 12-01-2003 663,000
3226513 10-11-2004 SWD ZUMSTEIN KARL G & ZUMSTEIN KARL G & 17.68 10-01-2004 176,800
3811009 12-09-2011 WD ZUMSTEIN KARL G MOON WADE 8.30 11-15-2011 83,000
4328656 08-21-2017 QCN MOON WADE MOON WADE; MOON MARIE 0.00 08-17-2017 0



Account Parcel Account Type Tax Year Buildings Actual Value Local Govt Assessed Value School Assessed Value
R0462901 147136010032 Residential 2026 1 410,910 25,680 28,970

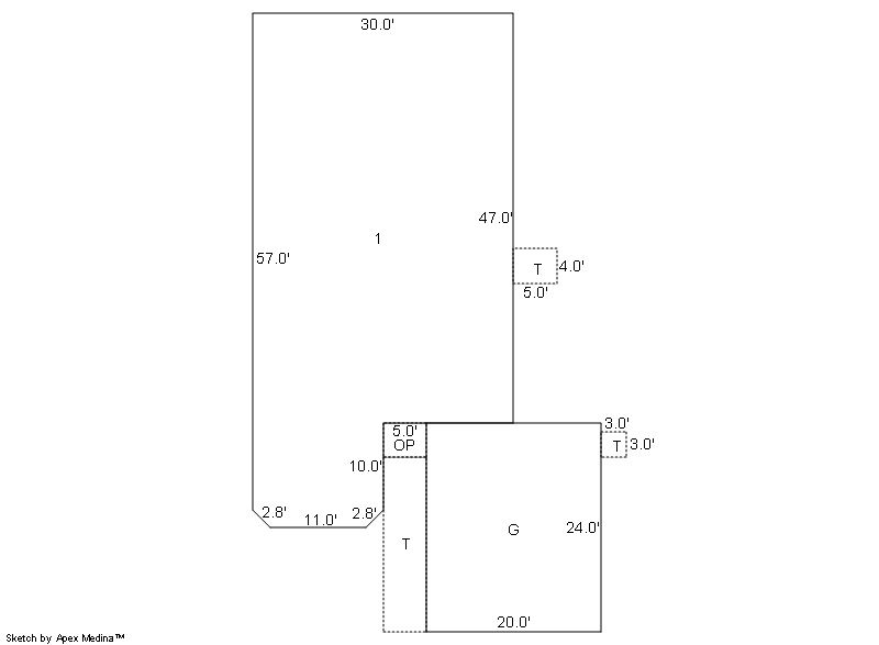
Building 1

AccountNo Building ID Occupancy
R0462901 1 Single Family Residential


ID Type NBHD Occupancy % Complete Bedrooms Baths
1 Manufactured Hm 4L0001 Single Family Residential 100 3 2.00


ID Exterior Roof Cover Interior HVAC Perimeter Units Unit Type Make
1 Hardboard Sheet Shingle Comp Drywall Forced Air 0 0 NA NA


ID Square Ft Condo SF Total Basement SF Finished Basement SF Garage SF Carport SF Balcony SF Porch SF
1 1,586 0 0 0 480 0 0 129


Built As Details for Building 1
ID Built As Square Ft Year Built Stories Length Width
1.00 Mnfctrd Home 1 Story 1,586 2004 1 57 30


Additional Details for Building 1
ID Detail Type Description Units
1 Fixture Full Bath 2.00
1 Garage Attached 480.00
1 Porch Open Slab 129.00
1 Porch Slab Roof Ceil 20.00





Account Parcel Account Type Tax Year Buildings Actual Value Local Govt Assessed Value School Assessed Value
R0462901 147136010032 Residential 2026 1 410,910 25,680 28,970

Type Code Description Actual Value Local Govt Assessed Value School Assessed Value Acres Land SqFt
Improvement 1212 SINGLE FAMILY RESIDENTIAL IMPROVEMENTS 310,910 19,430 21,920 0.000 0
Land 1112 SINGLE FAMILY RESIDENTIAL-LAND 100,000 6,250 7,050 0.182 7,931
Totals - - 410,910 25,680 28,970 0.182 7,931


Account Parcel Account Type Tax Year Buildings Actual Value Local Govt Assessed Value School Assessed Value
R0462901 147136010032 Residential 2026 1 410,910 25,680 28,970

Tax Area District ID District Name Local Govt
Mill Levy
School
Mill Levy
Estimated
Taxes
0318 0700 AIMS JUNIOR COLLEGE 6.313 0.000 $162.12
0318 0302 CENTRAL COLORADO WATER (CCW) 0.980 0.000 $25.17
0318 0309 CENTRAL COLORADO WATER SUBDISTRICT (CCS) 1.462 0.000 $37.54
0318 1050 HIGH PLAINS LIBRARY 3.044 0.000 $78.17
0318 0509 HUDSON FIRE 12.237 0.000 $314.25
0318 0419 LOCHBUIE TOWN 6.443 0.000 $165.46
0318 0203 SCHOOL DIST RE3J-KEENESBURG 0.000 15.822 $458.36
0318 0100 WELD COUNTY 15.956 0.000 $409.75
Total - - 46.435 15.822 $1,650.81


The estimate of tax is based on the prior year mill levy and the 2025 projected assessment rates. Mill levies and tax estimates will be updated yearly on December 22nd for the current year. Additional information can be found at https://assessor.weld.gov










Select Reports to Print: