Account: R0496001

April 1, 2026

Account Parcel Account Type Tax Year Buildings Actual Value Local Govt Assessed Value School Assessed Value
R0496001 147136026018 Residential 2026 1 441,486 27,590 31,120

Legal
LOC 3HP L18 BLK24 HIGHPLAINS FG #3

Subdivision Block Lot Land Economic Area
HIGHPLAINS FG#3 24 18 HIGHPLAINS

Property Address Property City Section Township Range
896 SAGEBRUSH DR LOCHBUIE 36 01 66




Account Parcel Account Type Tax Year Buildings Actual Value Local Govt Assessed Value School Assessed Value
R0496001 147136026018 Residential 2026 1 441,486 27,590 31,120

Account Owner Name Address
R0496001 NICELY PAULETTE LEE 896 SAGEBRUSH DR LOCHBUIE, CO 806037765


Account Parcel Account Type Tax Year Buildings Actual Value Local Govt Assessed Value School Assessed Value
R0496001 147136026018 Residential 2026 1 441,486 27,590 31,120

Reception Rec Date Type Grantor Grantee Doc Fee Sale Date Sale Price
2805351 NA SUB SUBDIVISION HIGHPLAINS FG #3 0.00 NA 0
2847549 05-10-2001 SWD WELD AND THIRD ASSOCIATES, LLP GALAXY LAND COMPANY, LLC 154.46 05-01-2001 1,544,544
3045566 03-26-2003 SWD GALAXY LAND COMPANY LLC KB HOME COLORADO INC 1,117.20 03-03-2003 11,172,000
3520846 12-03-2007 WD KB HOME COLORADO INC KOEHN STEVEN J 17.80 10-12-2007 178,000
3641324 08-07-2009 PTD KOEHN STEVEN J COLORADO HOUSING FINANCE AUTHORITY 0.00 08-06-2009 0
3649881 09-21-2009 SWDN COLORADO HOUSING FINANCE AUTHORITY USA HUD 0.00 09-17-2009 0
3684256 03-31-2010 SWD USA HUD JOHNSON FRANK R 0.00 03-30-2010 135,000
4136430 08-25-2015 DTHC 0.00 04-30-2011 0
4136432 08-25-2015 PRD JOHNSON FRANK R NICELY PAULETTE LEE 23.98 08-13-2015 239,800



Account Parcel Account Type Tax Year Buildings Actual Value Local Govt Assessed Value School Assessed Value
R0496001 147136026018 Residential 2026 1 441,486 27,590 31,120

Building 1

AccountNo Building ID Occupancy
R0496001 1 Single Family Residential


ID Type NBHD Occupancy % Complete Bedrooms Baths
1 Residential 4L0002 Single Family Residential 100 2 2.00


ID Exterior Roof Cover Interior HVAC Perimeter Units Unit Type Make
1 Frame Siding Composition Shingle Drywall Central Air to Air 178 0 NA NA


ID Square Ft Condo SF Total Basement SF Finished Basement SF Garage SF Carport SF Balcony SF Porch SF
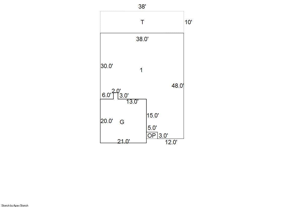
1 1,425 0 0 0 426 0 0 15


Built As Details for Building 1
ID Built As Square Ft Year Built Stories Length Width
1.00 Ranch 1 Story 1,425 2007 1 0 0


Additional Details for Building 1
ID Detail Type Description Units
1 Add On Fireplace Gas 1.00
1 Fixture Full Bath 2.00
1 Garage Attached 426.00
1 Porch Open Slab 380.00
1 Porch Slab Roof Ceil 15.00





Account Parcel Account Type Tax Year Buildings Actual Value Local Govt Assessed Value School Assessed Value
R0496001 147136026018 Residential 2026 1 441,486 27,590 31,120

Type Code Description Actual Value Local Govt Assessed Value School Assessed Value Acres Land SqFt
Improvement 1212 SINGLE FAMILY RESIDENTIAL IMPROVEMENTS 341,486 21,340 24,070 0.000 0
Land 1112 SINGLE FAMILY RESIDENTIAL-LAND 100,000 6,250 7,050 0.193 8,425
Totals - - 441,486 27,590 31,120 0.193 8,425


Account Parcel Account Type Tax Year Buildings Actual Value Local Govt Assessed Value School Assessed Value
R0496001 147136026018 Residential 2026 1 441,486 27,590 31,120

Tax Area District ID District Name Local Govt
Mill Levy
School
Mill Levy
Estimated
Taxes
0318 0700 AIMS JUNIOR COLLEGE 6.313 0.000 $174.18
0318 0302 CENTRAL COLORADO WATER (CCW) 0.980 0.000 $27.04
0318 0309 CENTRAL COLORADO WATER SUBDISTRICT (CCS) 1.462 0.000 $40.34
0318 1050 HIGH PLAINS LIBRARY 3.044 0.000 $83.98
0318 0509 HUDSON FIRE 12.237 0.000 $337.62
0318 0419 LOCHBUIE TOWN 6.443 0.000 $177.76
0318 0203 SCHOOL DIST RE3J-KEENESBURG 0.000 15.822 $492.38
0318 0100 WELD COUNTY 15.956 0.000 $440.23
Total - - 46.435 15.822 $1,773.52


The estimate of tax is based on the prior year mill levy and the 2025 projected assessment rates. Mill levies and tax estimates will be updated yearly on December 22nd for the current year. Additional information can be found at https://assessor.weld.gov










Select Reports to Print: