Account: R0501501

April 1, 2026

Account Parcel Account Type Tax Year Buildings Actual Value Local Govt Assessed Value School Assessed Value
R0501501 147136030010 Residential 2026 1 488,199 30,510 34,420

Legal
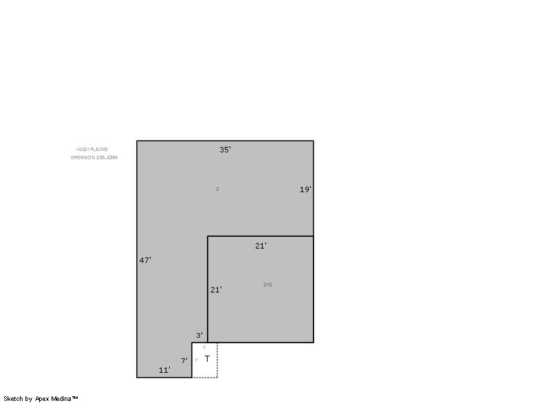
LOC 3HP L10 BLK28 HIGHPLAINS FG #3

Subdivision Block Lot Land Economic Area
HIGHPLAINS FG#3 28 10 HIGHPLAINS

Property Address Property City Section Township Range
898 SUNRISE DR LOCHBUIE 36 01 66




Account Parcel Account Type Tax Year Buildings Actual Value Local Govt Assessed Value School Assessed Value
R0501501 147136030010 Residential 2026 1 488,199 30,510 34,420

Account Owner Name Address
R0501501 TENDILLA OCTAVIO R 898 SUNRISE DR LOCHBUIE, CO 806037756
R0501501 TENDILLA DORA J


Account Parcel Account Type Tax Year Buildings Actual Value Local Govt Assessed Value School Assessed Value
R0501501 147136030010 Residential 2026 1 488,199 30,510 34,420

Reception Rec Date Type Grantor Grantee Doc Fee Sale Date Sale Price
2805351 NA SUB SUBDIVISION HIGHPLAINS FG #3 0.00 NA 0
2847549 05-10-2001 SWD WELD AND THIRD ASSOCIATES, LLP GALAXY LAND COMPANY, LLC 154.46 05-01-2001 1,544,544
3045566 03-26-2003 SWD GALAXY LAND COMPANY LLC KB HOME COLORADO INC 1,117.20 03-03-2003 11,172,000
3752200 02-23-2011 WD KB HOME COLORADO INC CARNES WILLIAM A 17.33 02-22-2011 173,300
4124311 07-14-2015 WD CARNES WILLIAM A; CARNES COURTNEY L TENDILLA OCTAVIO R 26.50 07-10-2015 265,000
4697975 03-29-2021 WDN TENDILLA OCTAVIO R TENDILLA DORA J; TENDILLA OCTAVIO R 0.00 03-11-2021 0



Account Parcel Account Type Tax Year Buildings Actual Value Local Govt Assessed Value School Assessed Value
R0501501 147136030010 Residential 2026 1 488,199 30,510 34,420

Building 1

AccountNo Building ID Occupancy
R0501501 1 Single Family Residential


ID Type NBHD Occupancy % Complete Bedrooms Baths
1 Residential 4L0002 Single Family Residential 100 4 3.00


ID Exterior Roof Cover Interior HVAC Perimeter Units Unit Type Make
1 Frame Hardboard Composition Shingle Drywall Central Air to Air 0 0 NA NA


ID Square Ft Condo SF Total Basement SF Finished Basement SF Garage SF Carport SF Balcony SF Porch SF
1 2,513 0 0 0 441 0 0 35


Built As Details for Building 1
ID Built As Square Ft Year Built Stories Length Width
1.00 2 Story 2,513 2010 2 0 0


Additional Details for Building 1
ID Detail Type Description Units
1 Fixture Full Bath 2.00
1 Fixture Half Bath 1.00
1 Garage Attached 441.00
1 Porch Open Slab 35.00





Account Parcel Account Type Tax Year Buildings Actual Value Local Govt Assessed Value School Assessed Value
R0501501 147136030010 Residential 2026 1 488,199 30,510 34,420

Type Code Description Actual Value Local Govt Assessed Value School Assessed Value Acres Land SqFt
Improvement 1212 SINGLE FAMILY RESIDENTIAL IMPROVEMENTS 388,199 24,260 27,370 0.000 0
Land 1112 SINGLE FAMILY RESIDENTIAL-LAND 100,000 6,250 7,050 0.159 6,914
Totals - - 488,199 30,510 34,420 0.159 6,914


Account Parcel Account Type Tax Year Buildings Actual Value Local Govt Assessed Value School Assessed Value
R0501501 147136030010 Residential 2026 1 488,199 30,510 34,420

Tax Area District ID District Name Local Govt
Mill Levy
School
Mill Levy
Estimated
Taxes
0318 0700 AIMS JUNIOR COLLEGE 6.313 0.000 $192.61
0318 0302 CENTRAL COLORADO WATER (CCW) 0.980 0.000 $29.90
0318 0309 CENTRAL COLORADO WATER SUBDISTRICT (CCS) 1.462 0.000 $44.61
0318 1050 HIGH PLAINS LIBRARY 3.044 0.000 $92.87
0318 0509 HUDSON FIRE 12.237 0.000 $373.35
0318 0419 LOCHBUIE TOWN 6.443 0.000 $196.58
0318 0203 SCHOOL DIST RE3J-KEENESBURG 0.000 15.822 $544.59
0318 0100 WELD COUNTY 15.956 0.000 $486.82
Total - - 46.435 15.822 $1,961.33


The estimate of tax is based on the prior year mill levy and the 2025 projected assessment rates. Mill levies and tax estimates will be updated yearly on December 22nd for the current year. Additional information can be found at https://assessor.weld.gov










Select Reports to Print: